查看完整案例

收藏

下载
设计师在空间内置入了两面叠放的墙体,卧室区和活动区在空间上就被区分出来了,卧室区保留了一定的隐私,同时也提高了空间的开放感和流动性。阳光透过百叶帘洒进房间,洒到书桌上,房间的主人可以在这里看书、制作音乐和抚琴,不受外界干扰,拥有专属的音乐创作空间。
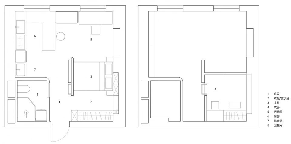
该住宅位于上海陆家嘴,是一个公寓房改造项目,建筑套内面积42㎡。设计的主要目的是在有限的空间里解决委托人对居住、音乐和办公的需求等。在空间设计上,去除多余的装饰,专注在空间的功能上,最大化地提升动线和增加采光。材质上主要用胡桃木,结合自然的光线打造自由舒适的空间体验。利用极简而又具有秩序感的设计手法,满足功能的同时更突出空间的美感。
© 立明
界定空间的墙
设计师在空间内置入了两面叠放的墙体,卧室区和活动区在空间上就被区分出来了,卧室区保留了一定的隐私,同时也提高了空间的开放感和流动性。
© 立明
© 立明
© 立明
阳光透过百叶帘洒进房间,洒到书桌上,房间的主人可以在这里看书、制作音乐和抚琴,不受外界干扰,拥有专属的音乐创作空间。
© 立明
© 立明
© 立明
© 立明
© 立明
开放式厨房、餐桌和卡座式沙发的一体化设计,更加节省空间,也让整体空间更加和谐。
© 立明
© 立明
© 立明
© 立明
项目图纸
© 辰时空间
© 辰时空间
项目名称:古琴之家
项目设计:申成
项目地址:上海陆家嘴
建筑面积:42㎡
项目设计:2022.12-2023.1
项目施工:2023.2-2023.7
项目摄影:立明
施工单位:上海赞歌建筑工程有限公司
客服
消息
收藏
下载
最近
























