查看完整案例

收藏

下载
繁茂成荫,如果曝晒在阳光下就会失去她原有的魅力,有时我们向往阳光明媚,有时阴翳沉稳又让人自在放松。
Lush and shaded, it will lose its original charm if exposed to the sun. Sometimes we yearn for bright sunshine, and sometimes the shade is calm and relaxing.
△设计草图
设计完成于2021年,甲方喜好宋代古典文化,家具,陶瓷,文玩,但是现实高层住宅的环境,以及考虑到当下日常生活又必须融合现代的整体基调。以及考虑木材的温润性,应和了文雅从容、且含而不露的状态又深得文人的喜欢,所以在设计之前,就确定了使用什么样的材质、家具色调等。渐渐推导出什么样的整体可以承载这些个人私有的状态。
The design was completed in 2021, and the first party enjoys classical culture, furniture, ceramics, and cultural toys from the Song Dynasty. However, considering the realistic environment of high-rise residential buildings and the need to integrate modern overall tone into current daily life. And considering the warmth of the wood, it should be in an elegant and calm state that is deeply loved by literati. Therefore, before designing, it is determined what kind of material and furniture color tone to use. Gradually deduce what kind of whole can carry these personal private states.
微水泥的墙面顶面,塑造小众风格的斑驳,粗犷又有丰富细节的质感。可考虑到儿童的磕碰以及易打理,地面选择了更亲近柔软的实木木地板。
The top surface of the wall is made of microcement, creating a mottled niche style, with a texture that is rough and rich in details. Taking into account childrens bumps and easy care, the floor was made of softer solid wood flooring.
对于木质的喜好总是我们对私宅使用最多的材料,北美胡桃木作为桌面,触感以及它的温度也是频繁使用中体验感最好的选择。浅色的木纹出现在局部的墙面及开架的细节中,作为对居住空间温暖放松的点缀。深色的木纹是在与胡桃木的桌面产生呼应,也更是因为配合深色电器让他们不显得突兀。
Our preference for wood is always the material we use most in private homes. North American walnut is used as a tabletop. Its touch and temperature are also the best choice for frequent use. Light-colored wood grain appears on partial walls and open-shelf details, as a warm and relaxing embellishment to the living space. The dark wood grain echoes the walnut tabletop, and it also makes them less obtrusive when paired with dark electrical appliances.
什么是去同质化的形式,没有纷繁复杂的元素,没有鲜艳的色彩,没有传统意义上让人眼前显得突兀的一切。
What is a de-homogenized form? There are no complicated elements, no bright colors, and nothing that stands out in the traditional sense.
放空的时候,它有层层递进的关系配合灯光和谐共生。
When it is empty, it has a progressive relationship and harmonious symbiosis with the light.
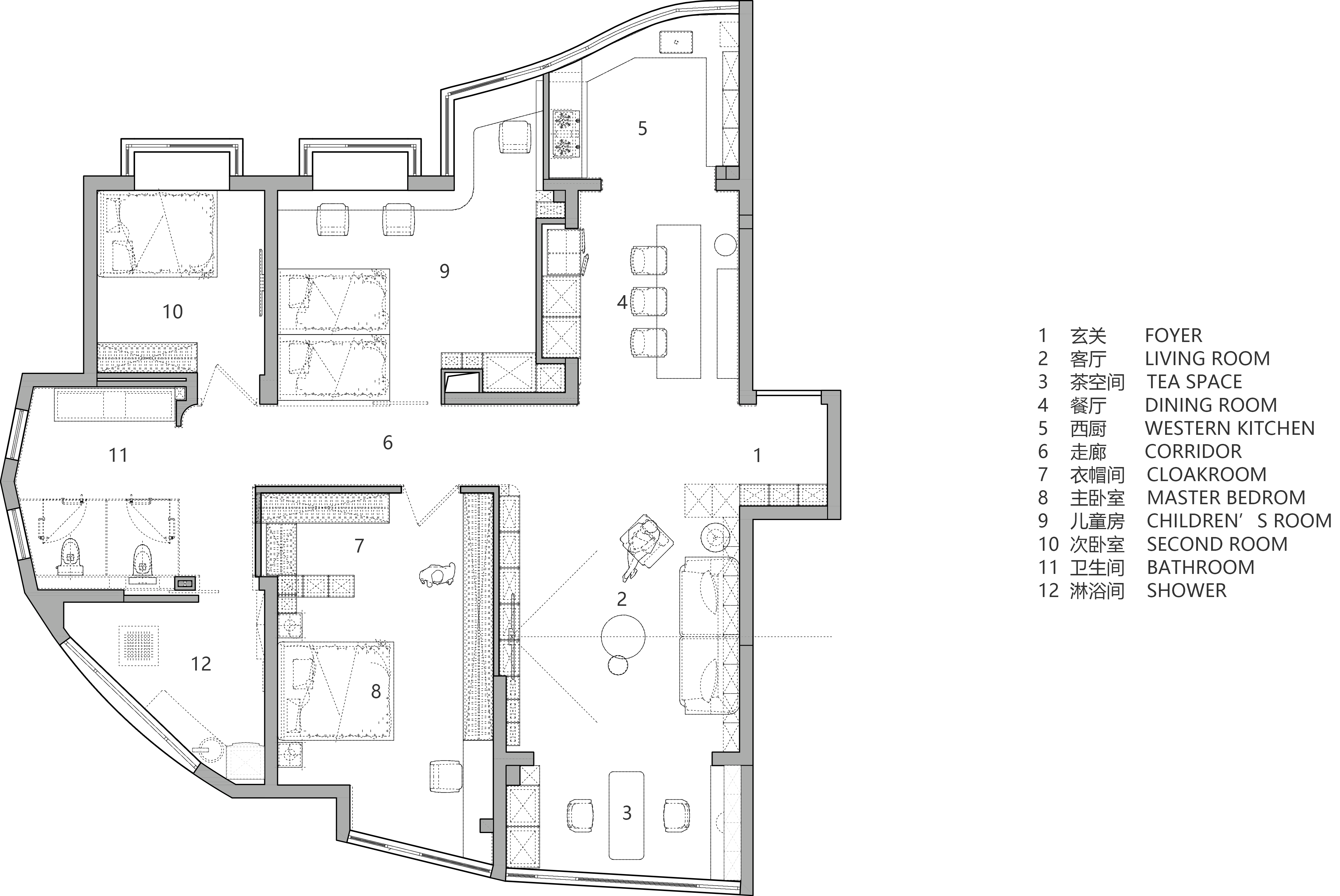
△平面图
INFORMATION
项目信息
项目名称 海明欢的住宅
项目面积 160㎡
项目类型 住宅
设计时间 2021.7
竣工时间 2023.1
主创设计 周航
周航 / ZHOU HANG
M STUDIO创始人,公司2019年创办于南京,致力于商业,办公,教育,私宅等空间环境,公司提倡用最简单的图形,最少的材料,最少的颜色,最简介的形式,达到最纯粹的空间效果,创造出一种新的氛围环境。
客服
消息
收藏
下载
最近


























