查看完整案例

收藏

下载
小宅空间
Ulyanova Architects
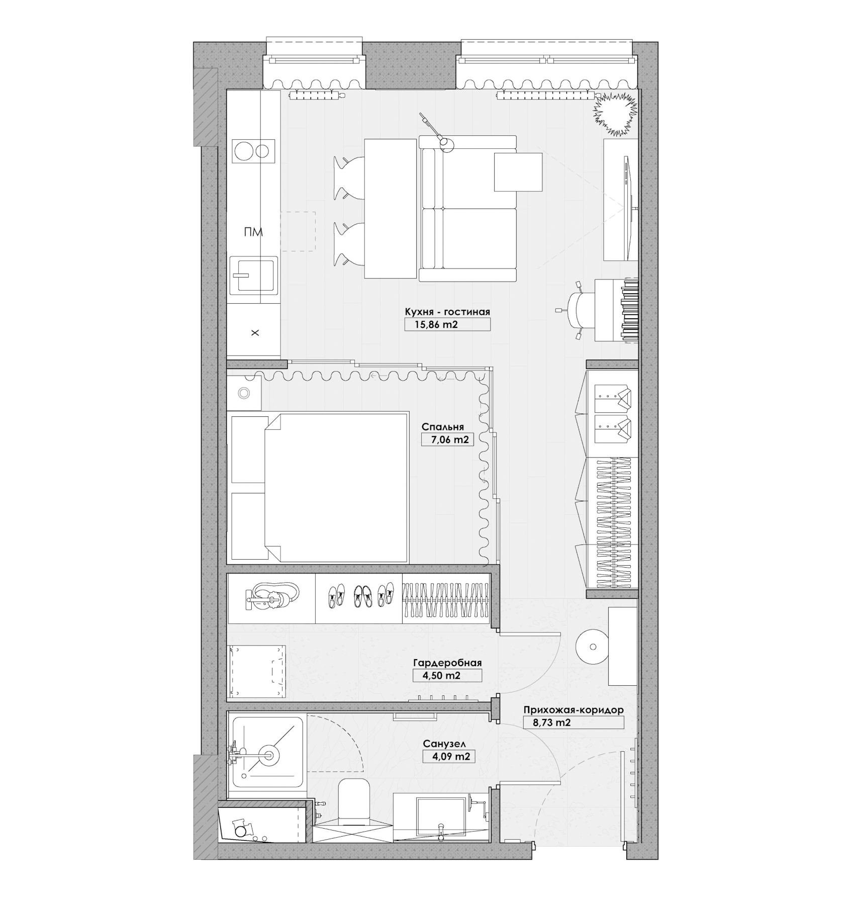
40㎡的
需要一个单独的卧室,保持空间,没有“迷宫”。
还需要组织许多存储空间,一个小型工作场所(有时在家工作)和一个配备最少必要设备的厨房。
空间布局
希望保留最大的空间和空气,因此
沿着窗户放置了一个公共厨房客厅区域,并用滑动隔板将卧室分隔成一个“立方体”。
由于入口门明显向右移动,
将次要房间
——
更衣室和浴室——安排在左侧。
卧室对面放置了一个2.5m长的内置衣柜。
蓝色立方体由走廊上的坐垫凳、加热毛巾架和装饰品支撑。
丰富的蓝色作为点缀,给空间带来振动。
天然橡木贴面的家具元素为室内增添了温暖
公寓面积较小,窗户朝北,因此空间尽可能明亮。调色板基于橱柜家具(厨房和衣柜)的颜色。在厨房和客厅区域使用相同的材料能够保持最大的实用性,统一空间并增加木材的质感和温暖。
客服
消息
收藏
下载
最近






















