查看完整案例

收藏

下载
小宅设计
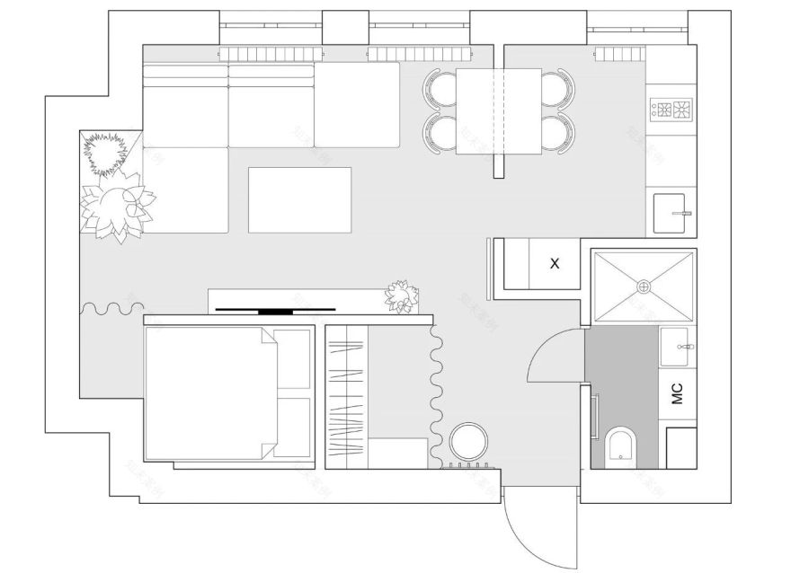
在35
的面积上设置了浴室、厨房、用餐区、带电视区的客厅和一间完整的卧室,
甚至还有足够的空间用于存储系统。
将厨房和客厅结合起来,两个房间之间的墙壁上有一扇带内置餐桌的滑动窗。当门窗关闭时,厨房就变得孤立起来。
一个完整的睡眠空间,并在床下提供储物空间。客厅、更衣室和睡眠区之间的隔断是由未经处理的陶瓷块制成的——看起来非常令人印象深刻。墙壁上安装了金属型材玻璃 - 这些都使自然光渗透到公寓的每个角落。
背景色为白色,墙壁和天花板粗略地抹灰和油漆。灰色用于划分空间,黑色赋予室内图形和对比度。重点是陶瓷块的颜色——赤土色。加上绿意盎然的植物,让室内充满生机。
空间布局
客服
消息
收藏
下载
最近


















