查看完整案例

收藏

下载
位于布拉迪斯拉发的 BEEF ARCHITEKTI 工作室受托在斯洛伐克首都布拉迪斯拉发多瑙河北岸唯一保留下来的阿波罗炼油厂工业遗产建筑内设计一家新餐厅。
该建筑正成为该市市中心(从奥地利和匈牙利进入该国的门户)的核心,这要归功于以原有技术空间为背景的新项目的加入。根据这一动态,WERK 餐厅扩展到了底层的大部分区域,从而成为了一个重要的聚会点和建筑的基本要素。
BEEF ARCHITEKTI 设计了一个多功能空间,以满足用户因时间不同而不断变化的需求。餐厅会根据服务内容的不同而改变,并以不同的方式运作。在白天,它是一个提供早餐、午餐或咖啡的空间,而到了周末和晚上,它就变成了一个有现场音乐表演的夜间空间。
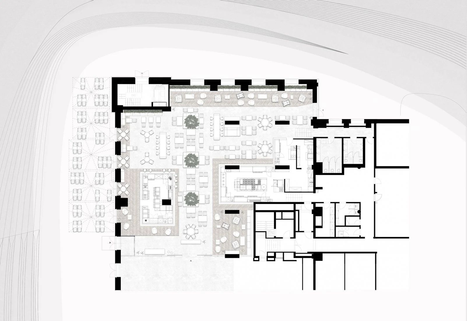
餐厅最显著的特点是开放式厨房,食客可以看到他们是如何烹饪菜肴的。餐厅可容纳 200 名食客,有多种座位可供选择,这取决于你是想体验酒吧还是餐厅。
为了营造独特的美感,他们选择使用大量材料、粗糙的表面和微妙的插入式钢元素。木材和钢材交织在一起,营造出一个充满活力的现代空间。
餐厅内部充分利用了前供热厂的建筑设计,使各楼层的视野更加开阔。其他显著特点还包括与外部的直接接触,以及与下沉广场露台的无障碍连接。晚上,餐厅的灯光招牌吸引着客人,通过外墙上的网格开口可以看到由独立字母组成的招牌。
餐厅可容纳约 200 个座位,开放式厨房和吧台是餐厅的焦点。为满足灵活的经营需要,餐厅提供了多种座位选择,包括传统的桌子和长凳、凳子和吧椅,以及扶手椅和矮吧桌,为客人提供了多种选择。
建筑师使用了大量的材料和粗糙的表面,在室内裸露的工业层和微妙的插入式钢元素的衬托下,营造出一种独特的美感。部分地板采用人字形图案的非传统砖砌结构,酒吧柜台采用可登钢结构,吧台采用木质台面,厨房岛采用实心石材,这些都是餐厅的突出特点。在与顾客的接触中使用了柔软的皮革和纺织品,避免使用人造材料,追求耐磨和古色古香。
照明解决方案也是设计的一个重要方面,织物遮光元件可根据时间的变化,使室内呈现出不同的模式和氛围。
工程名称:Werk 餐厅
坐落地点:捷克斯洛伐克 布拉迪斯拉发
面积:544 ㎡
设计单位:BEEF ARCHITEKT
摄影:Matej Hakár
客服
消息
收藏
下载
最近




















