查看完整案例

收藏

下载
本项目是福井县福井市幼托连贯制园舍的改造项目。守护着EZ托儿所的足羽山从以前开始就是被当地居民所喜爱的地域象征。山间的路不仅可以使人和原本的自然亲近,还包含了很多促使孩子们拓展延伸游戏的要素。本项目的改造目的是促使一直以来统一的保育环境产生变化,从而使得在足羽山的自然环境中所诞生的游戏动作在园舍内也能产生。
▼托儿所外观,exterior view of the kindergarten and nursery ©Toshinari Soga (studio BAUHAUS)
Rebuild kindergarten and nursery project in Fukui, Japan. Mt. Asuwa surrounding this EZ Kindergarten and Nursery was known as the symbol of this town by local people. If children walk around this mountain, they can touch and feel nature itself closer and create plays with such a rich nature. By installing lots of actions which children can take in Mt. Asuwa into playing equipments inside, the normal nursery environment were improved.
▼托儿所街景,street view of the kindergarten and nursery ©Toshinari Soga (studio BAUHAUS)
幼儿设施中经常被栅栏关闭的楼梯被故意设置在了园舍中心。它像足羽山山间道路一样,是能利用高低差进行游戏的空间。这个楼梯不仅创造了一个能够看见幼儿园整体样貌的区域,还延伸出了新的游戏空间,是一个可供不同班级、年级的人交流并获得社交能力的场所。
In addition, stairs are closed with fence in kindergarten generally to avoid children from going down and up freely, but in this kindergarten and nursery the stair is put in the center as the place for different ages of children can meet and communicate each other. Even stairs and steps became a fun playing space for them as they play in the mountain.
▼托儿所室内中庭,the central interior atrium of the kindergarten and nursery ©Toshinari Soga (studio BAUHAUS)
▼将楼梯设置在园舍中心,the stairs are put in the center ©Toshinari Soga (studio BAUHAUS)
▼楼梯是能利用高低差进行游戏的空间,在楼梯下设置能进行「翻」「捡」「投」等动作的木池,the stairs act as the place for children of different ages to play, a wood ball pool under the stairs is for “Roll around”, “Pick” and “Throw” ©Toshinari Soga (studio BAUHAUS)
▼从楼梯上可以看见室内空间的整体样貌,viewing the interior space from the stairs ©Toshinari Soga (studio BAUHAUS)
设计团队选取了在大自然中发生的动作,创造了能够进行「跳」「摇」等动作的网状游戏道具,能够进行「翻」「捡」「投」等动作的楼梯下的木池,以及能够进行「滑」「攀」「躲」等动作、附带绳子的小型秘密基地等,从而在园内设置了能激发孩子们兴趣的游戏场所。
▼能够进行「滑」「攀」「躲」动作、附带绳子的小型秘密基地,the secret playing base with slope for “Slide”, “Climb” and “Hide” ©Toshinari Soga (studio BAUHAUS)
▼抬高的用餐区,the elevated dining space ©Toshinari Soga (studio BAUHAUS)
▼室内活动空间,interior space ©Toshinari Soga (studio BAUHAUS)
There is a climbing net equipment for the action “Jump” and “Swing”. A wood ball pool under the stairs is for “Roll around”, “Pick” and “Throw”. A secret playing base with slope for “Slide”, “Climb” and “Hide”. This is how various actions can be taken and children can create new plays there.
▼通向室外活动平台的室内活动区,the interior playing area connects to the terrace ©Toshinari Soga (studio BAUHAUS)
▼室外活动平台,the terrace of the kindergarten and nursery ©Toshinari Soga (studio BAUHAUS)
▼与室外庭院相连接的室内用餐区,the interior dining area connects to the courtyard ©Toshinari Soga (studio BAUHAUS)
在这样一个既融入足羽山的自然元素又不过度修善的游戏场所内,孩子们能自己创造出大人们意想不到的游戏方式。这是一个能够让孩子们自己去挑战、发现新的事物并能获得成就感的环境。
For such a simple and natural playing spaces as Mt. Asuwa, children can create interesting plays by themselves. This is how this environment became the place where children can challenge, find, explore there.
▼托儿所夜景,night view of the kindergarten and nursery ©Toshinari Soga (studio BAUHAUS)
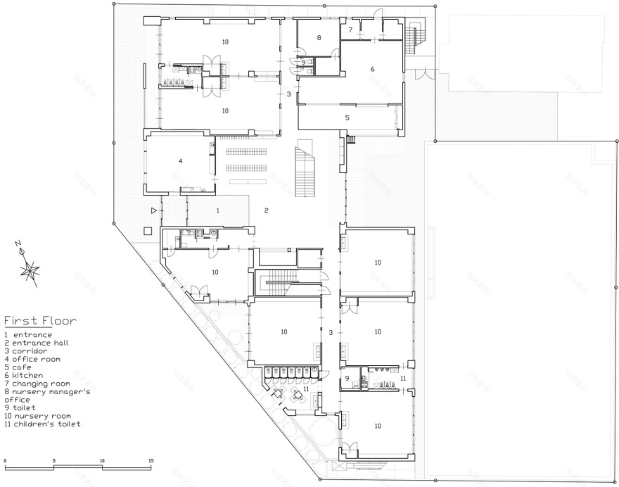
▼一层平面图,1F plan ©HIBINOSEKKEI + Youji no Shiro + KIDS DESIGN LABO
▼二层平面图,2F plan ©HIBINOSEKKEI + Youji no Shiro + KIDS DESIGN LABO
▼三层平面图,3F plan ©HIBINOSEKKEI + Youji no Shiro + KIDS DESIGN LABO
▼立面图,elevations ©HIBINOSEKKEI + Youji no Shiro + KIDS DESIGN LABO
▼剖面图,sections ©HIBINOSEKKEI + Youji no Shiro + KIDS DESIGN LABO
项目名:EZ Kindergarten and Nursery
所在地:福井县福井市
设计监理团队:HIBINOSEKKEI + Youji no Shiro + KIDS DESIGN LABO
占地面积:1,980.67㎡
建筑面积:1,015.59㎡
使用面积:2,081.65㎡
构造规模:钢筋造、地上三层
竣工时间:2019 年 3月
照片摄影:Toshinari Soga (studio BAUHAUS)
Project: EZ Kindergarten and Nursery
Location: Fukui, Japan
Design/Surpervision: HIBINOSEKKEI + Youji no Shiro + KIDS DESIGN LABO
Site area: 1,980.67㎡
Building area : 1,015.59㎡
Total floor area: 2,081.65㎡
Structure/Story: Steel, 3 stories
Completion: 2019 年 3月
Photo: Toshinari Soga (studio BAUHAUS)
客服
消息
收藏
下载
最近























