查看完整案例

收藏

下载
精神生于道,形本生于精,万物以形相生。——《庄子·知北游》
该住宅是一套 300 平米,两户打通的平层居所,业主是一对 80 后夫妇。繁忙的日常工作和生活背景下,设计师希望通过对居住环境的思考,在满足功能需求的基础上,能够使居住者与空间之间产生情绪及情感的互动交流,通过设计为日常生活注入诗一般的美感。回到家中能够通过轻松自然的生活氛围感受到精神的愉悦与自由。
01.FREEDOM-OPENNESS 自由开阔
打破原有结构的布局思维,探索空间的最佳使用状态。通过对生活方式及品质的思考,对空间进行重新布局与规划,基本功能需求的基础上增加了图书吧、西厨区、休闲区等功能空间,大大开阔了空间视线以及日常活动范围,在提升生活品质的同时也使空间更具互动性和体验感。
P. 01
P. 02
灰色墙面模糊了空间的边界,形与意的结合,超越出物质表象,在虚实间将生活与理想表达得恰到好处。
P. 03
P. 04
向空间内部探索,沙发地毯电视等家具不再是固定于空间内的物品,反而与人起到了“主客”之间的微妙变化,在这样开阔的空间内它们是自由的,这种自由也引发着更多的思考,在有限的空间内,表达出无限的可能。
P. 05
P. 06
通过对空间的梳理,设计师在横向与纵向之间取得了平衡,简约的构造表达出了极富张力的语言。
家具的色彩鲜活了空间调性,柔软的材质让空间兼具理性与感性,犹如一颗温暖的内心散发出对生活的热情。
P. 07
P. 08
02BETWEEN
LIGHT-SHADOW
光影之间
开阔的餐厨一体化设计让空间互相联通,西厨空间连接餐厅及中厨,现代化的生活场景在兼容并蓄中不断上演,每一个细节都彰显着品质与情感。
P. 09
P. 10
P. 11 百叶帘将光线自由引入室内,四季不同的光影增加了空间另一种维度,诉说着属于自己的故事,为居住者带来多样化的感官体验。
P. 12
P. 13
P. 14 巧妙利用原本的承墙柱,成为了空间点线面构造其中一处,干净利落没有一丝多余,勾勒出空间独特的美学调性,承载居住者对理想生活的美好向往。
P. 15
P. 16
P. 17
P. 18
• 03 MOVEMENT STILLNESS 动静皆宜
打通后的空间进行精细化的功能布局,使空间相互连通又互不干扰,得以让休憩变得随心舒适,卸下繁杂与焦躁,家成为了治愈人们身心的场所。
低饱和度色彩的运用呈现出有温度的自然感,没有多余的线条,质感在最简单纯粹的设计中得以展现。线性灯光进一步提升卧室的柔和度,给予内心满满的安全感。
P. 19
P. 20 低饱和度色彩的运用呈现出有温度的自然感,没有多余的线条,质感在最简单纯粹的设计中得以展现。线性灯光进一步提升卧室的柔和度,给予内心满满的安全感。
P. 21
P. 22
P. 23
主卧室复合性的空间设计,将衣帽间、起居室、书房、开放式卫生间完美融合在一起,极大地提高了空间使用的便利性及舒适性。至此,居住者拥有了属于自己的一片天地,在这里尽情释放天性,在与家人充分互动的同时也能保持自我的独立性。
P. 24
P. 25
P. 26
P. 27 生活从来不是单调乏味的,家成为了人与空间的精神媒介,沐浴、洗漱,即使是日常生活的一瞬间都可以注入无穷的乐趣。
P. 28
P. 29 空间在“舍”与“得”之间达到关系的平衡,重新梳理后的空间,将原本的卫生间纳入卧室。衣帽间、书房及卧室功能融为一体,让阅读、学习及休息更具舒适性。
P. 30
P. 31
P. 32 恰到好处的装饰以及纯粹的取色,空间显得盈动自在,柔和的自然光洒入室内,引领居住者探索生活的真谛。温暖与爱在无形的涌动中体现,家成为了这份美好时光的见证,记载着属于一家人的永恒记忆。
P. 33
P. 34
P. 35
• 04
ANALYSIS
DIAGRAM
分析图
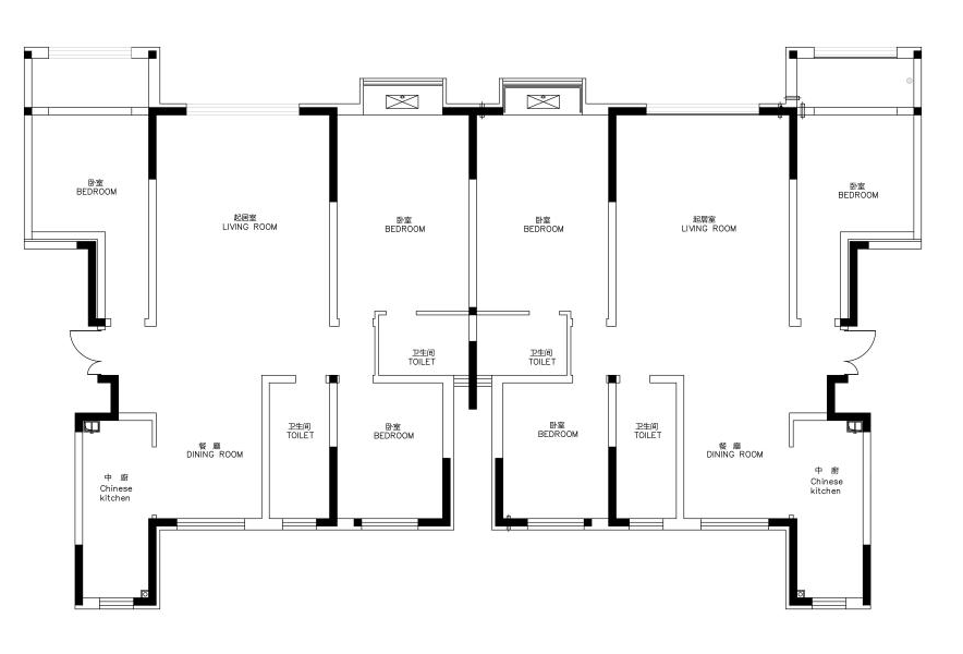
空间规划图 P. 36
原始平面图 P. 37
INFO
- 项目名称 - 以形相生
- 设计机构 - 风向空间设计师事务所
- 设计总监 - 杨达
- 建筑面积 - 300㎡
- 项目地址 - 山东聊城
DESIGNER
杨达
风向空间设计创始人 - 设计总监
风向空间设计师事务所创办于 2019 年初,主要从事私宅设计、商业空间设计、景观设计、软装设计等综合性专业设计服务。从建筑、文化、自然、艺术等各个角度相结合,以人为本寻求空间的最佳解决方案。
源于风向空间对设计的创新理念及出品要求,与众多专业性较高的企业达成紧密合作,共同协作发展,确保为每一位客户提供专业的设计方案及全案配套服务。
客服
消息
收藏
下载
最近










































