知末
知末
创作上传
VIP
收藏下载
登录 | 注册有礼

情侣 35㎡小公寓设计丨Vadim 和 Ekaterina Bychkov

2023/09/17 22:06:00
查看完整案例
微信扫一扫
收藏
下载
情侣 35㎡小公寓设计丨Vadim 和 Ekaterina Bychkov-0
清新明亮
Vadim和Ekaterina Bychkov
㎡小公寓,业主是一对年轻情侣,设置了一间卧室、一间办公室、一间客厅、一间餐厅和一间厨房,创造了一个明亮的室内空间。
情侣 35㎡小公寓设计丨Vadim 和 Ekaterina Bychkov-4
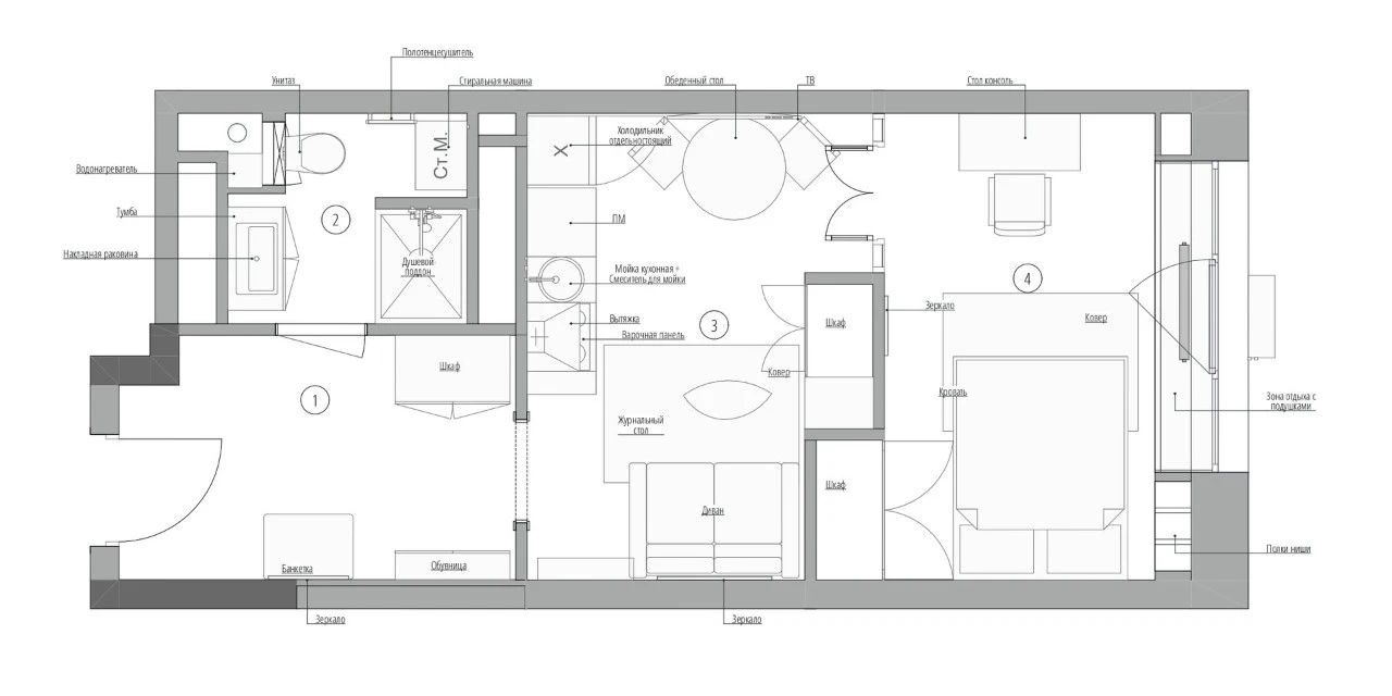
空间布局
情侣 35㎡小公寓设计丨Vadim 和 Ekaterina Bychkov-6
在厨房、客厅和卧室区域,铺设了强化木地板,墙壁上涂有热带主题的油漆和壁纸。厨房客厅和卧室之间的隔断的设计方式是,两侧都有一个存放衣服和家居用品的衣柜,百叶窗门与室内风格相得益彰。
情侣 35㎡小公寓设计丨Vadim 和 Ekaterina Bychkov-8
情侣 35㎡小公寓设计丨Vadim 和 Ekaterina Bychkov-9
情侣 35㎡小公寓设计丨Vadim 和 Ekaterina Bychkov-10
情侣 35㎡小公寓设计丨Vadim 和 Ekaterina Bychkov-11
情侣 35㎡小公寓设计丨Vadim 和 Ekaterina Bychkov-12
情侣 35㎡小公寓设计丨Vadim 和 Ekaterina Bychkov-13
情侣 35㎡小公寓设计丨Vadim 和 Ekaterina Bychkov-14
情侣 35㎡小公寓设计丨Vadim 和 Ekaterina Bychkov-15
情侣 35㎡小公寓设计丨Vadim 和 Ekaterina Bychkov-16
情侣 35㎡小公寓设计丨Vadim 和 Ekaterina Bychkov-17
情侣 35㎡小公寓设计丨Vadim 和 Ekaterina Bychkov-18
情侣 35㎡小公寓设计丨Vadim 和 Ekaterina Bychkov-19
情侣 35㎡小公寓设计丨Vadim 和 Ekaterina Bychkov-20
情侣 35㎡小公寓设计丨Vadim 和 Ekaterina Bychkov-21
情侣 35㎡小公寓设计丨Vadim 和 Ekaterina Bychkov-22
南京喵熊网络科技有限公司 苏ICP备18050492号-4知末 © 2018—2020 . All photos and trademark graphics are copyrighted by their owners.增值电信业务经营许可证(ICP)苏B2-20201444苏公网安备 32011302321234号
客服
消息
收藏
下载
最近