查看完整案例


收藏

下载
「上面那个淡蓝色的小点,就是我们的地球,地球在照片上只占一个像素大小的位置。」
"The dot with the color of light blue symbolized our earth, and the size of the earth in this picture only occupied a size of a pixel."
项目视频
project video
“苍蓝小点”项目位于台北内湖一处被山林环绕的二层住宅内。身为一位新加坡人,于屋主而言,花草绿意不是刻意营造而来,而是早已成为生活中不可或缺的一部分。然而,当你以为赏景是主要目的,在与屋主深聊后会发现,比起单纯的欣赏,他是将自身沉浸其中,将山林景物化作舞台,甚至是观众,感受他生活态度中恣意挥洒的自由与随性。
The house surrounded by mountains and forests has become the best choice for the homeowner. As a Singaporean, he does not deliberately create the greenery of flowers and plants, while it has long become an indispensable part of his life. You think his primary purpose is to enjoy the landscape. However, after a deep conversation with the owner, one would discover that he has made himself immersed in greenery rather than simply appreciation. He intends to turn the mountain and forest scenery into a stage, even the audience, to feel his wanton profligacy.
室外花园
outdoor garden
#
1 通与透、结构与建筑感的体块
flowing and transparence, structure and stacking
不被阻绕的视线结合流畅不设阻挡的动线,“通”与“透”成为项目概念和布局中交融的两条核心轴线。幕幕连接起来的窗景,山林、庭院和隐于绿意中的居所,一览无遗的框景逐渐模糊了室内外的界线。
"Pass" and "penetration" become the two core axes of the case, which do not allow blocking the line of sight and do not permit stopping up the moving line. The window scene where the curtains are connected gradually blurs the boundary between indoor and outdoor.
闭上眼睛,感受着风的轻拂、光的柔照,指尖滑过的温度、鼻头碰触的气息,有时虚幻的分不清,人到底是在里还是在外。
Close your eyes to feel the breeze and the soft light. The temperature of your fingertips sliding and the breath of your nose touching is sometimes illusory to make you can't tell whether you are inside or outside.
当你还在飘忽游荡,阶梯浮夸的几何阵列,会将你从桃花源林拉回世俗人间。由下而上一层一层堆叠、一左一右错落穿插,忘了向上的成了舞台平面、衝出玻璃界线的成了一座小型花园,如此复杂的弯曲堆叠,是一气呵成的极致展现。
When you are still wandering, the exaggerated geometric array of the stairs will pull you from the peach blossom garden back to the mundane world. There are stacked layer by layer from bottom to top, one left and one right are interspersed. The one that forgot to go up becomes the stage plane, and the one that rushes out of the glass boundary becomes a small garden. Such a complex curved stack is the ultimate display of one-off.
楼梯空间
staircase
#
2 空间意义艺术化的表达
spatial meaning in a artistic expression
除了空间、精致,不得不提起安放的三件艺术品。从水面逐渐浮出的招财猫被一个个拼成一幅巨型画像,吊挂在梯间,呼应着屋主的工作行业,并蕴含着招财的吉意;客厅悬挂著航海家1号拍摄的《Pale Blue Dot》,背后隐藏的是宇宙的浩瀚、人类的秒小;最后在玄关摆上的是屋主的偶像——李光耀的画像,效仿Andy Warhol的普普艺术,将崇拜与敬意做了有趣的转化。
Except for space and scene, there are three works of art to be mentionable in the case. The lucky cat gradually emerging from the water are pieced together into a giant portrait one by one and hung in the staircase, echoing the owner's industry and containing the auspicious meaning of fortune. Putting the "pale blue dot" shot by Voyager 1 in the living room implies behind it is the vastness of the universe and the smallness of human beings. Finally, placed on the porch is the portrait of the owner's Idol, Kuan-yew Lee, to imitate Andy Warhol's pop art and make a fascinating transformation of worship and respect.
钢琴房和一楼客厅
piano room and living room of the first floor
二楼空间
second floor
浴室
bathroom
主卧室及衣橱空间
maste bedroom and dressing room
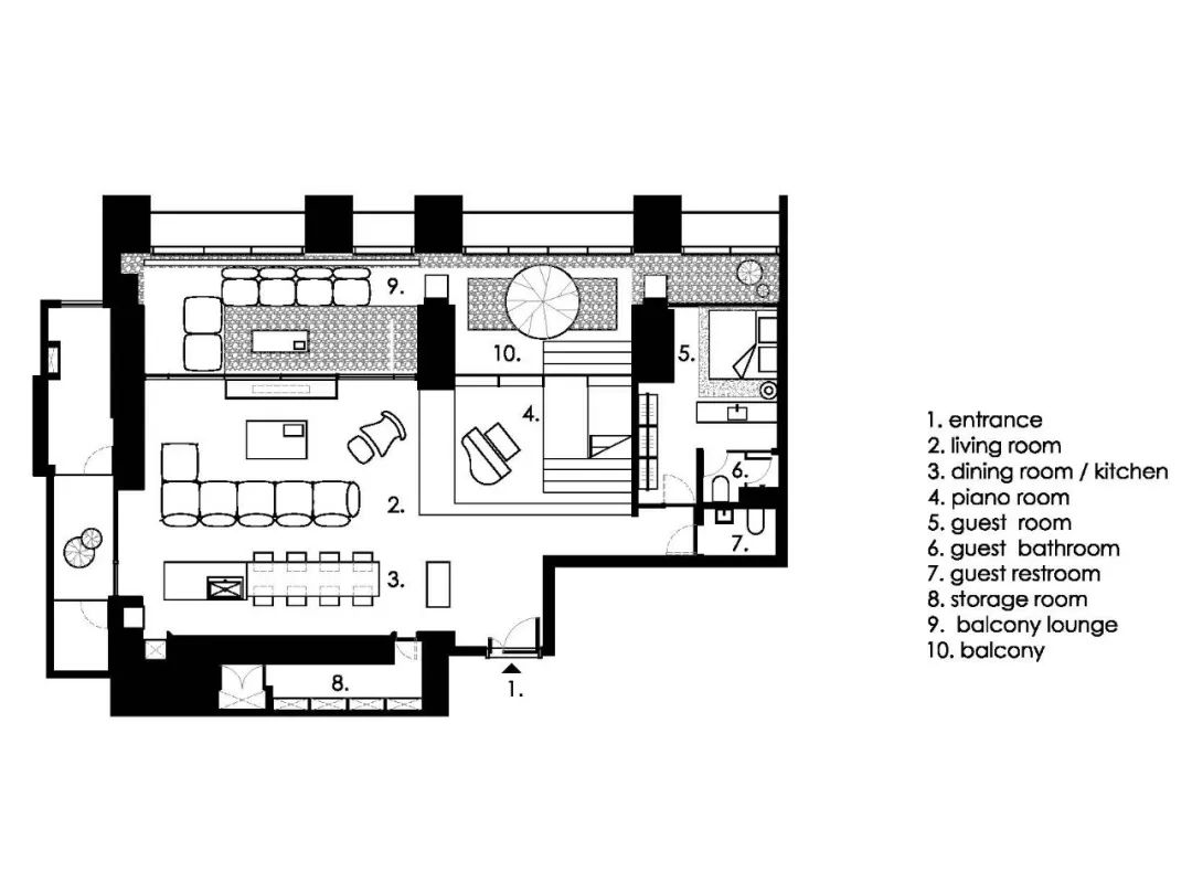
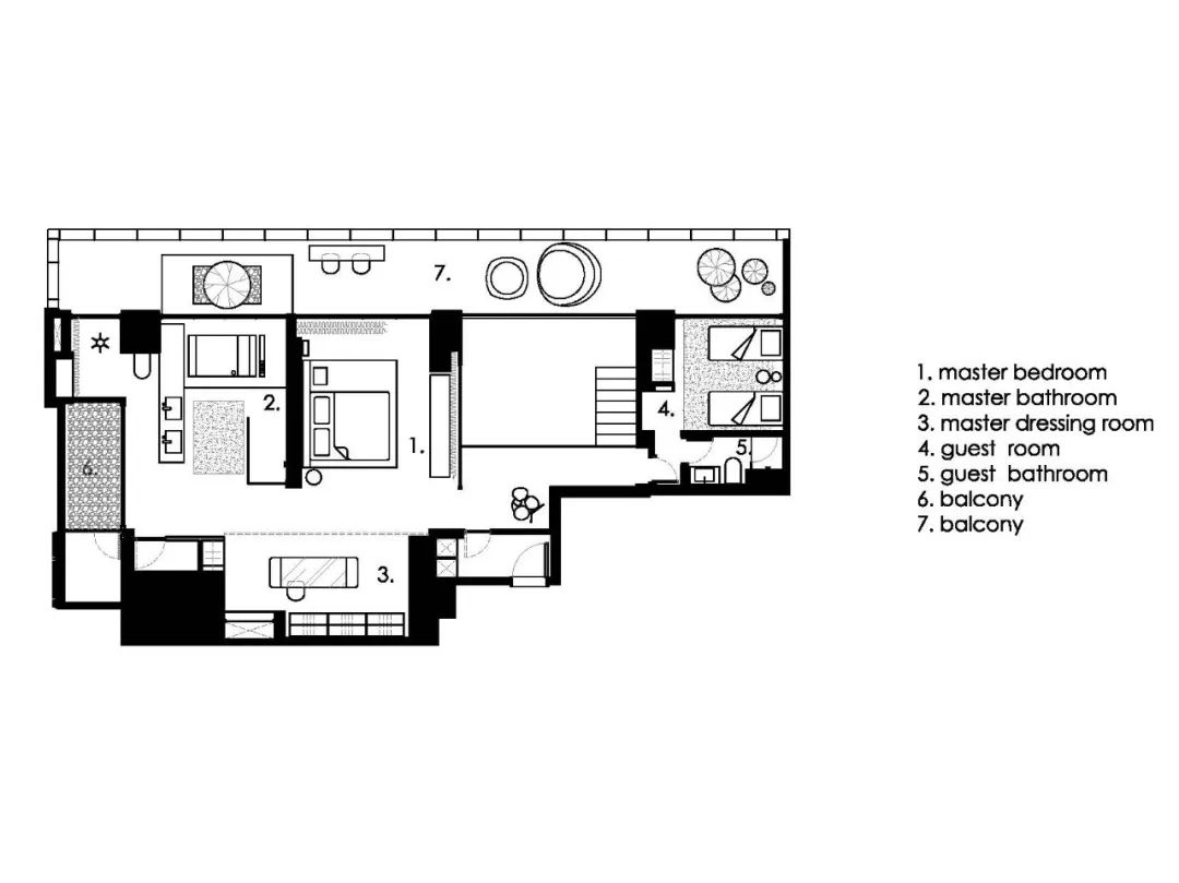
slide for floor plans
项目信息 FACT SHEET
项目名称:“苍蓝小点” - 台北陈公馆
地点:台北市
面积:320平方米
设计总监:卓思齐
专案总监:陈明封
设计团队:陈婷洁、陈庭
项目特点:开阔结构与艺术氛围感相结合的现代化住宅
完成时间:2022
摄影师:卓思齐
格局:3房 (主卧房+客房+客房) / 1室(更衣室) / 1厅 / 1餐厨 /4卫 / 1琴房 / 2户外阳台
客服
消息
收藏
下载
最近


























