查看完整案例


收藏

下载

翻译
The new library for the University of Bedfordshire is a vital step in the on-going regeneration of their town centre campus in Luton.
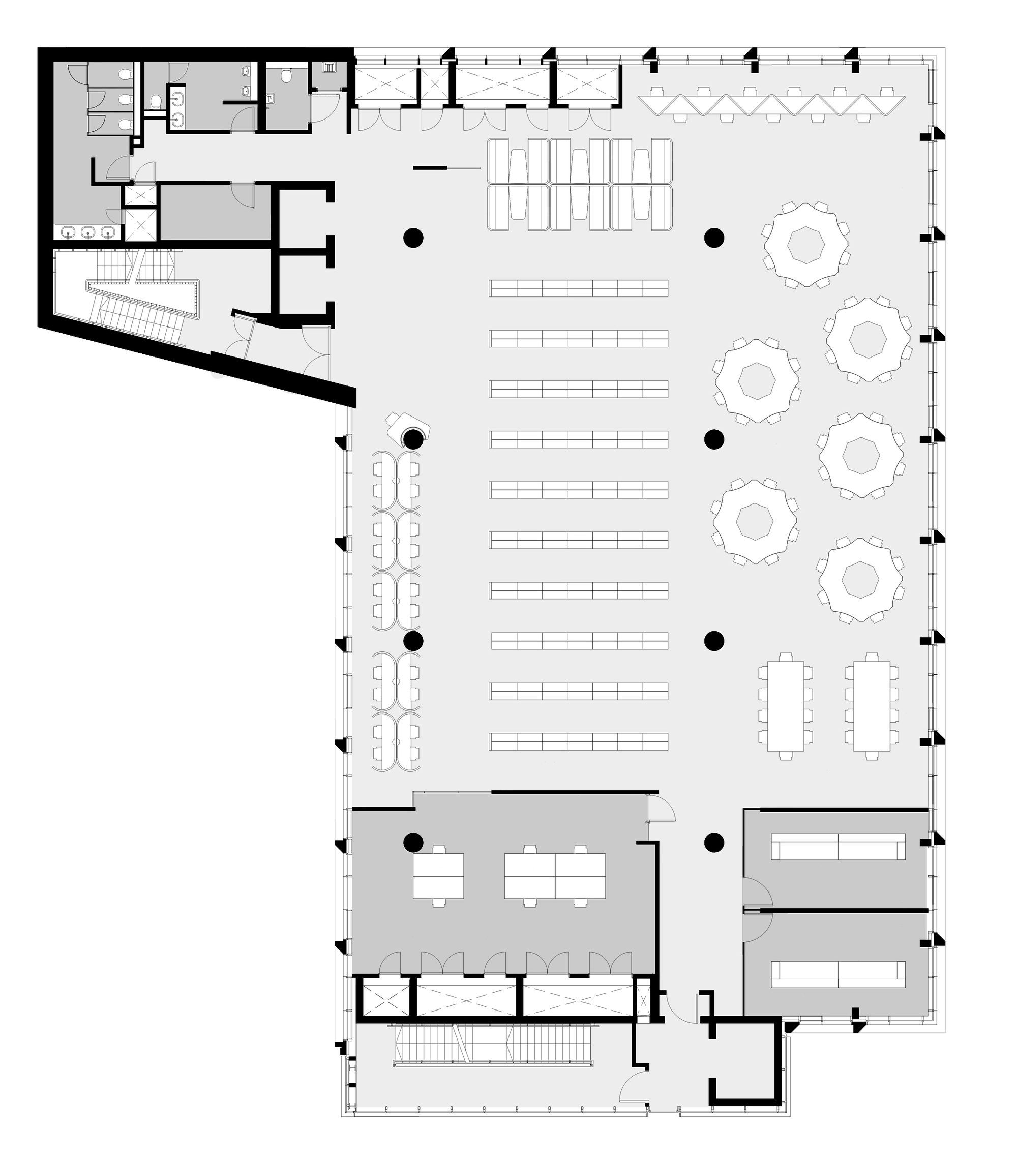
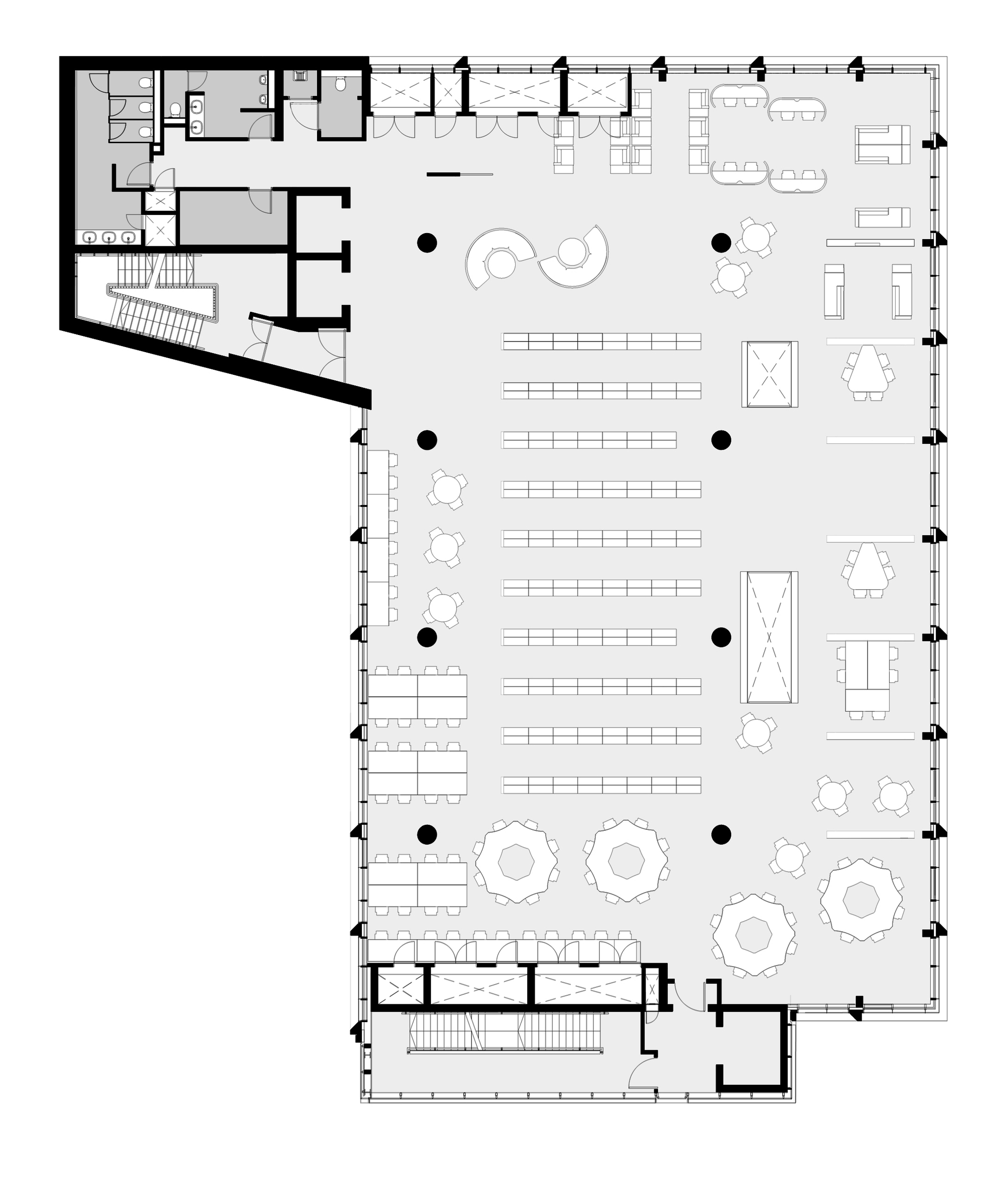
The provision of this 6,950m2 building minimises the impact of future phases of redevelopment on the student experience through the relocation of this core activity into a brand-new facility, located at a focal point between academic space and new residential accommodation. The University has consulted widely with the students and looked at comparable recent new library schemes both in the UK and worldwide.
The building reflects the University’s aspiration for an efficient, serious and scholarly place that supports and enables improvements in academic and institutional performance. The vision for the scheme was to create a facility that:
The site is challenging because of the available ‘footprint’, resulting in a relatively tall building at nine floors. Taking this aspect as an opportunity, silent study spaces on each of the upper floors make a ‘study wall’ with excellent views and daylight whilst fulfilling the increasing demand by students for more silent working space. The increased scale of this site had been established with the Local Authority through the Development Framework that the University had previously agreed.
The University were keen to create a strong civic gesture. MCW worked closely with Thorp Precast to develop a simple, robust language of precast concrete cladding. Long span coffered slabs generate large areas of column free space at each floor. A double height entrance space addresses the street-scape and contains a suspended mezzanine level where students can meet with the academic support team.
The project was delivered within the original project budget allocation and opened to students ahead of the academic year 2016/17. The building has achieved BREEAM Excellent. The scheme plays a vital role in how the University can more effectively engage with the local community and town-centre. The ground floor café and information access area is fully glazed offering a welcoming, publicly accessible environment.
“MCW have been extremely effective at working closely with the University as a true partner. They have been and will continue to be instrumental in advising, supporting and actively making our campus redevelopment the success that it is. Their ability to provide considered strategic thinking as well as take a lead role in the design and delivery of emerging projects is a valuable offer.” — Ash Carline - Head of Major Projects University of Bedfordshire
客服
消息
收藏
下载
最近








































