查看完整案例

收藏

下载
这里看得见
世间繁华与心头淡雅
这里载得下
父母的爱与年轻人的风华
这里纵横光影交错
记录着生活的你、我、他
这里是移步换景的港湾
亦是幸福满堂的艺术“家”
设计背景
Design background
本套案例是上下六层且带花园的别墅住宅,常住人口6人,老中青三代同堂。屋主不喜循规蹈矩的传统风格,要求在风格上打破陈规,追求简洁纯粹的居家环境。
负二层
Negative second floor
-2楼的地下车库入户,进门左手边是一门到顶鞋柜与储物柜,自动鞋套机简直是老人与访客的福音,智能居家电器大大提升了生活的品质感和便捷度。往里有天井倾泻而下的自然采光,同时以水波纹板增加顶面造型,将视线引入空间深处,有种曲径通幽之感。内嵌灯带制造人为采光,足够提升整体空间亮度。
右边是影音ktv休闲娱乐室,可满足家人朋友的聚会多样化需求,梦幻的星空与墙面灯带营造出极佳的观影氛围,沙发一旁还配备了两台功能按摩椅,也是最贴心的考虑。
动线空间
墙面大面积使用白色墙漆,一方面提升空间明亮度,一方面也秉承简约洁净的风格,让后续装饰有了更多的可能性。此处则是以壁龛与灯带增添回家的温馨感。楼梯做镂空处理,灵活生动的外观也让光线得以延伸舒展开来。随着水波纹的引导,来到拐角处,这里做了人造室内景观,为空间注入自然气息。另一面是电梯,毕竟六层楼的别墅,又有老人居住,所以室内电梯成了居家必需品。
负一层
Negative first floor
电梯出门右侧即是50平米的大客厅,落地窗直接连接花园,窗外园景一览无遗。六米高的岩板电视墙尽显大气,衬得60寸的大电视变得小巧精致,一侧镂空木质置物架也特别高大上。
minotti沙发选择浅色系更显简约风格。独有的挑空搭配无主灯设计,让本就舒阔的空间更显旷朗。想象一下,在寂静的夜晚,躺在沙发上,可以穿透天井,直接仰望星空,这种浪漫的体验,在家里就能实现。
沙发墙用木板材质,涂刷白色漆,既保持质感与触感的一致性,又能体现出层次感的变化。配上暖色灯带,增加空间的格调与氛围。客厅的另一角是额外的休息区域,餐前餐后可在此处小坐消遣。
往里走是背靠天井的茶室,自然光搭配仿石材pu材质的立体墙面设计,营造出天然古朴的禅意氛围。实木流水茶桌是独家定制,仿佛置身于王羲之的《兰亭集序》,流觞曲水,畅叙幽情。茶室一旁是整墙定制柜作为展示与储物所用。
一层
First floor
一楼入户是下沉式花园,进门就能俯瞰花园中景,是别样的入户体验。动线两方延展,随着镂空台阶上楼,右侧是鞋柜,中间特意做了换鞋凳,贴心老人的生活。
餐厅位于一楼的中心位置,其中原版法国rochebobois圆形餐桌椅大大增加了家的艺术气息,水滴状且四周透明,仿佛流水的餐椅,烘托着整个主体。餐桌和墙面流水呼应,营造一种水流从天而降之感。
岛台订制一体餐厅和中西厨并用更是提供了多种餐饮的可能。餐边柜的储物空间收纳功能强大,可满足日常餐饮的一切需求。
后花园与餐厅用玻璃移门隔开,通铺白色岩板让空间整体简洁,采用回字形动线连接空间更为合理。
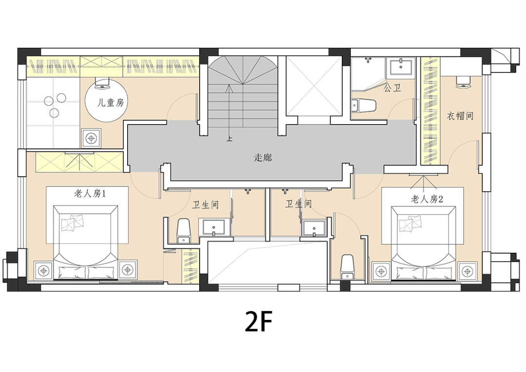
二层
Second floor
二层主要是长辈的卧室空间,长走廊用软装加以点缀,线性灯带的实用也增加了日常使用的安全性和空间纵深感。
走廊一侧的长辈房也是主打温馨舒适,墙面材质丰富,有岩板、软包、木皮上墙,体现出空间的层次感。灯光柔和温馨,营造出静谧安心的就寝氛围。洗漱区干湿分离,更好地保障了使用舒适度与安全性。
三层
Third layer
进门是L型大容量的衣帽间,其后还设置了梳妆台位置,吊顶用格栅板造型突出空间的品质与格调,弧形墙与灯带设计削弱了空间棱角,提升氛围、增强卧室的柔和感与温馨。
天井部分光与影的交错是整套案例的特色与亮点。在空间设计上,以建筑思维为主导,以光为媒介,打破楼层之间的封闭,从顶部做采光,让光线直达一楼,解决了户型上中部采光不足的局限,同时让楼层之间有了互动和交流。同时在设计中加入流水元素,天井中的线条象征着顺流而下的水,贯穿每层楼,光影交错勾勒出流光飞渡的画面,上下呼应,是最美的家的艺术。
床头背景用矮护墙与格栅板,延续顶面视觉效应。一侧床头柜做了简单的绿植景观,增添一丝清新。主卧阳台一张B-B mart单椅演绎出午后慵懒的氛围。整体空间舒适度满满,是理想中的卧室没错了。
儿童房主打粉色梦幻感,用榻榻米构建出每个女孩子心中的公主梦,各色手办是童真童趣的映照,拱形柜门设计感十足,像童话里通往城堡的大门。醒目的大摆件来自国内著名雕塑家贾晓欧“白夜童话系列”。
▲负二层原始结构图、平面布局图
▲负一层原始结构图、平面布局图
▲一层原始结构图、平面布局图
▲二层原始结构图、平面布局图
▲三层原始结构图、平面布局图
项目地址 | 四川内江 · 四季康城
项目面积 | 543㎡
项目类型 | 别墅
服务团队 | 内江十亩设计
十亩室内装饰设计成立于2014年,是一家以设计加施工一体得设计型家装公司,一直坚守“设计创造美好生活”,提供包括全案/软装设计、主材/软装代购在内的室内装修服务。
客服
消息
收藏
下载
最近






























































