查看完整案例

收藏

下载
克赖斯特彻奇司法和紧急事务管理中心(CJESP)是澳大拉西亚地区同类综合设施中规模最大的一座,也是新西兰政府在2010年和2011年的严重地震后建造的首座重要公共建筑。
The Christchurch Justice and Emergency Services Precinct (CJESP) is the largest combined facility of its kind in Australasia, and the first major public development built by the New Zealand Government following the devastating 2010 and 2011 earthquakes.
▼建筑外观,exterior view ©Dennis Radermacher
该项目占据了一整个城市街区,将地震前分布在22个不同区域的服务设施整合在一起,旨在为市民提供安全可靠、能够应对未知灾难的设防系统。经过5年的设计和建造,项目于2017年9月正式开放,在使市中心恢复活力的同时,也为克赖斯特彻奇成为安全而繁荣的城市树立了信心。
Taking up an entire city block and combining services that prior to the earthquakes were spread across 22 locations, the development is a commitment to the quake-prone city, designed to protect its citizens and represent a symbol of safety for the people and a reliable fortification against future disasters. Five years in the making, the precinct officially opened in September 2017, bringing life back into the city centre and restoring confidence in Christchurch as a safe and vibrant city.
▼街道视角,view from the street ©Dennis Radermacher
▼紧急事务管理大楼,Emergency Services Building ©Dennis Radermacher
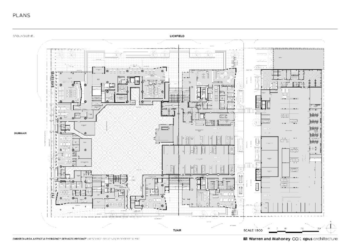
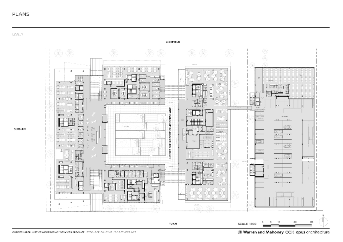
场地的尺寸让宽敞庭院的置入成为了可能,从而进一步提高了中心的开放性。俯瞰着庭院的公共中庭四周以玻璃围合,令所有交通空间和等候区都能够享受到绿色空间或城市美景,同时与艾芬河和波特山的美景形成紧密的视觉连接。
The site’s size enabled the incorporation of a generous courtyard, furthering the precinct’s sense of openness. A glazed public atrium overlooking the courtyard allows all circulation and waiting areas to enjoy views of green space or the city, exploiting close visual links to the beautiful Avon River and Port Hill.
▼庭院绿地,green area in the courtyard ©Dennis Radermacher
▼庭院景观,courtyard landscape ©Dennis Radermacher
从街道方向看,司法大楼的混凝土立面呈现出宏伟的观感,同时通过大面积的玻璃、艺术品和青铜色的元素传递出些许柔和的气息。这种设计有效地解决了公共建筑通常具有的密集且封闭的问题,并且抛弃了阴沉的红木墙壁和单调乏味的走廊设计。
▼大面积的玻璃搭配青铜色元素,extensive glazing with bronze accents ©Dennis Radermacher
From the street, concrete denotes the Justice Building’s civic grandeur, with extensive glazing, artwork and bronze accents adding a sense of softness. The design of the building seeks to steer clear of the traditionally dense and visually impenetrable public buildings that often comprise of looming mahogany walls and bland corridors.
▼停车大楼,the operational car park ©Dennis Radermacher
▼铝制艺术幕墙,aluminium artistic facade ©Dennis Radermacher
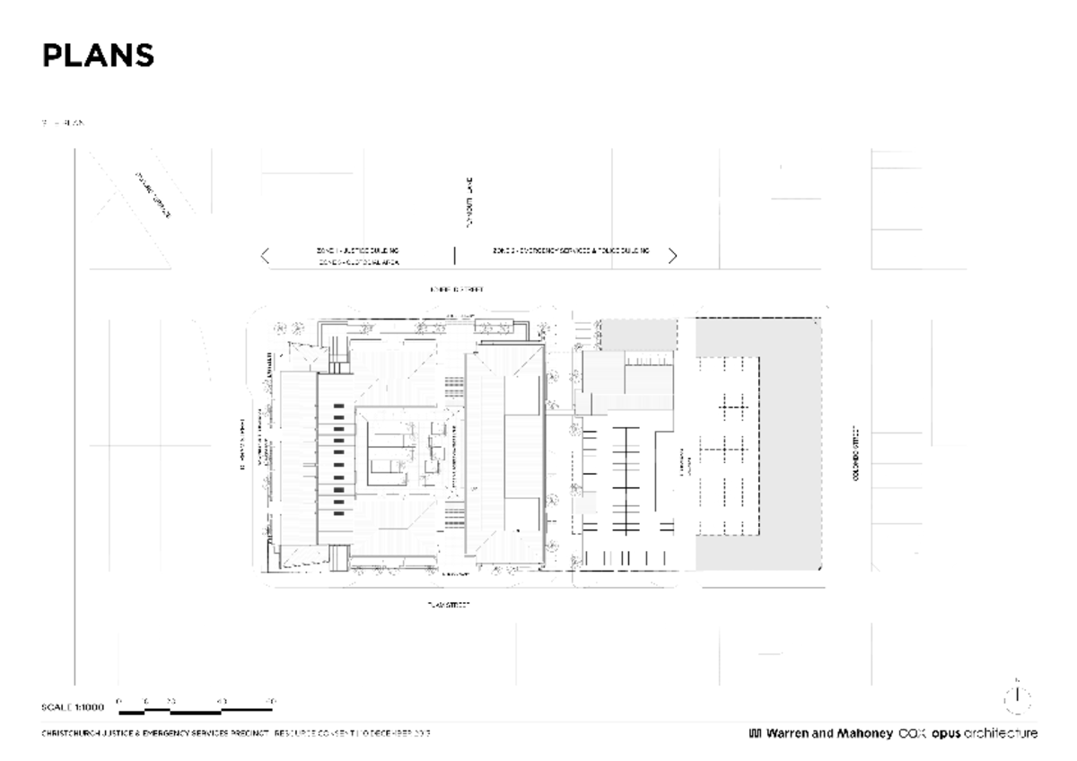
该项目是推进城市CBD灾后重建和复兴的关键项目。所有的司法和紧急事务管理设施被整合在一个专门的区域当中,其中包含司法大楼、紧急事务大楼和为调配车辆准备的停车场。占地4万平米的园区由Warren and Mahony, WSP Opus Architecture和COX三家公司合作设计,总共容纳了19个具有多管辖权的法庭、一座紧急事务指挥中心、警察署、惩戒部门、消防署、St John’s救护中心、克赖斯特彻奇市议会以及坎特伯雷环境署。
▼司法大楼开放的公共中庭,public atrium of the Justice Building ©Dennis Radermacher
▼交通空间,circulation ©Dennis Radermacher
The Precinct, commissioned as a key project to accelerate the reinvigoration and revitalisation program within the city’s devastated CBD, consolidated all justice and emergency services within a single purpose-built precinct made up of three elements; the Justice Building, the Emergency Services Building and a car park for operational vehicles. The 40,000m2 precinct was designed through a collaborative process between Warren and Mahony, WSP Opus Architecture and COX to house 19 multi-jurisdictional courtrooms, an emergency operations centre, facilities for police, corrections, fire service, St John’s ambulance, the Christchurch City Council and Environment Canterbury.
▼法庭,courtrooms ©Dennis Radermacher
▼座位细部,seating area detailed view ©Dennis Radermacher
▼行政办公区域,administration and office area ©Dennis Radermacher
▼室内细部,detailed view ©Dennis Radermacher
JESP希望与社区形成积极互动,通过开放的公共入口和自由流畅的路径邀请公众走进园区。这些设计策略所创造的空间有效地缓解了建筑内部事务引发的紧张感。CJESP是克赖斯特彻奇城市重建过程中的标志性项目,表达了政府对这座城市及其人民竭力奉献的决心。
The CJESP sought to engage with the community, openly inviting the public into the precinct via accessible public entries and free-flowing movement paths. These design strategies create spaces that decrease some of the high-stress situations occurring within the precinct’s walls. The Christchurch Justice and Emergency Services Precinct is an important marker in the rebuilding of Christchurch City and is symbolic of the government’s dedication to its city and people.
▼中庭楼梯,stair leading to the atrium ©Dennis Radermacher
▼楼梯细节,stair detailed view ©Dennis Radermacher
该项目的创新性还体现在利用地下蓄水层进行制冷和制热。地下蓄水层拥有全年稳定的温度,在夏季低于气温,冬季则高于气温。园区的系统允许从水井抽取地下水并通过热交换泵来进行运输,从而可以根据季节从地面获取热量,或将热量传递给地面。
Utilising the underground aquifer for heating and cooling is another innovation in the precinct design. The underground water layer, known as the aquifer, is a reasonably consistent temperature year round. In the summer it is cooler than air temperature and in the winter it is warmer than air temperature. The precinct system allows the groundwater to be extracted (using water wells) and pumped through heat exchangers. This allows the gaining of heat from – or the loss of heat to – the ground.
▼园区创新性地引入了地下蓄水层制冷(热)系统,utilising the underground aquifer for heating and cooling is another innovation in the precinct design ©Dennis Radermacher
▼材料,material palette ©Dennis Radermacher
新西兰前总理John Key表示:“园区项目是克赖斯特彻奇城市重建的一项重要举措,它将所有的司法部门以及城市的民防和应急管理单位集中在统一的场所,展示了公共部门和机构如何以更加紧密的方式共同运作。”
‘This precinct is a significant investment in the Christchurch rebuild and by housing all the justice sector agencies and the city’s civil defence and emergency management functions in one location it also shows how public sector agencies can work more closely together.’ -Former Prime Minister John Key
▼建筑夜景,exterior view by night ©Dennis Radermacher
▼檐下空间,beneath the eaves ©Dennis Radermacher
Project size: 40000 m2
Project Budget: $300000000
Completion date: 2017
Project team: Warren and Mahoney; Cox Architecture; WSP Group
Images: Dennis Radermacher
客服
消息
收藏
下载
最近

















































