查看完整案例

收藏

下载
小鱿鱼改造自一个旧工厂露台,独特的地理位置以及非常规的空间原貌赋予了它极大的发挥空间,能够最大限度包容设计师的奇思妙想。入口处灵活呈现切割状的空间体块,在进门之初就冲淡了建筑的厚重感,如同一件充满张力的现代装置艺术,以饱满的线条力度,引导空间由外向内逐层展演。
The project was repurposed from a former factory terrace. The unique location and unconventional structure of the original space allowed the designer to give full play to imagination and creativity.At the entrance, the flexible cut spatial block, dilutes the massiveness of the building, which is just like a modern installation art work full of tension, leading the space to extend inward with its clear lines.
▼餐厅入口&前台,流水形态的吊灯,the entrance&reception,The flowing-water-shaped lighting fixture
▼从前厅看用餐区域,looking dining area from reception hall
▼小鱿鱼装置细部,installation details
层高4米6的空间内,在中庭搭建起一个小复层,通道口赫然显现一个架空门框,成为整个空间的精粹之笔,仿佛能带人瞬间坠入异次元时空。通道台阶下又隐匿着一个独立的下沉空间,景深幽邃,静候着到访的食客。抬头看,不规则的吊顶此起彼伏;往前走,经过设计变异的山水造景、园林式窗口前后错落。温柔的木质基调搭配纤尘不染的白墙,脱离了传统大排档红红火火的元素,采用淡雅的色调,打造出一个“仙气十足”的餐饮空间。
Within the space 4.6 meters high, a two-story structure was built in the atrium. The designer ingenuously created an open door way in this area, which seems to bring people into another dimension. Under the staircase, there is a separate sunken area, deep and tranquil, waiting for foodies to step in. Looking ahead, irregular ceiling lamps fall one after another. Walking forward, artificial natural landscape and windows of traditional Chinese garden style intersperse the space. As opposed to utilizing red-color elements commonly seen in seafood restaurants, the designer made use of wooden textures and white walls to set an elegant tone, thereby resulting in an otherworldly dining space.
▼一层概览,ground floor overview
小鱿鱼作为扎根于闽南水土的餐饮品牌,不论是它的食材,还是渗透其中的点滴文化,都与“水”息息相关。位于空间正中心的水景台,以景观的固定性以及水本身的流动性,一方面雕琢着开放式空间的边界,另一方面又如同餐厅的动脉,借潺潺流水赋予整个空间生命的活力。前台流水形态的吊灯,墙面上用网绳勾连的渔船,过道层叠的渔场画面,抑或是随意安置在角落的船桨、竹篮,又如同散落在四处的分子,集合起来酿出一曲风味浓厚的醉乡民谣。竹藤间随意散露出来的灯光影影绰绰,印刻着时间的痕迹,在一餐一食、一饮一酌之际,碰撞出全新的现代简约美学魅力。
As a local brand in Xiamen, all the ingredients that Xiaoyouyu uses and the culture it embodies are closely related to “water”. The designer took into account such background into the design. A water feature was placed at the center of the space, with the gurgling water endowing the whole space with vigor. The flowing-water-shaped lighting fixture above the front desk, the fishing vessel depicted with smooth lines, the fishery-resembled structure installed along the aisle, as well as peddles and bamboo baskets dotted at the corners, all manifest the local culture. Lights penetrate rattan-made structures and cast shadows, which set off the modern and minimal space.
▼一层空间细部,竹藤间随意散露出来的灯光影影绰绰,Details in the ground-floor space, lights penetrate rattan-made structures and cast shadows
形式各异的餐桌座椅错落散布在空间内,以分而不隔的方式自然组合成不同的情境,在统一的空间气质下又有微妙的变化,大大丰富了食客的多维就餐体验。与此同时又可以满足大排档的功能属性,将空间主题回归到食物与餐桌上的交流。用餐区灯光设置的较为柔和,暗调的光影在不经意处兀自渲染,营造出秘境般的空间观感,为每桌食客创造专属的私密空间。同时,交织而互不打扰的开放式区域空间又可以卸下人们的防备,让人能够在此敞开心扉,达到来访者借聚餐联络感情、沟通日常的目的。
Through diversified decomposition and recombination of all units of the space, it presents a movement of spatial narrative, with an entertaining and polymorphic tonality.Tables and chairs with various forms are scattered in it, forming unpartitioned dinning areas which are slightly different via distinct combinations, hence enriching people’s dining experience. The dining areas bring the spatial theme back to food and communication. The lights in dining areas are soft, with dusky shadows, creating a private space for dinners at each table. All these areas are connected yet non-interfering, enabling people to relieve themselves and communicate freely.
▼一层通道,ground floor corridor
▼用餐区灯光设置的较为柔和,暗调的光影在不经意处兀自渲染,The lights in dining areas are soft with dusky shadows
▼下沉用餐空间,sunken dining space
辗转蜿蜒的餐厅动线设计,不仅能够吊足食客们的胃口,还可以在层理切换之中撩拨人们的好奇心。空间与空间之间的渗透,小景观的处处营造,让人在同一端景中感受到不同的新鲜画面。所到之处,环环相扣,步步皆景,无不彰显设计师的匠心设计,大大提升了“食”的趣味与深度。人们来这里不再仅仅只是为了吃,更是为了在最日常的饮食体验中,感受味蕾与超现实场域的独特碰撞,擦出不一样的生活火花。结合各个部分的多元解构重组,小鱿鱼多趣味、多形态的调性显著易识,景中有景的起承转合,演绎一出情景饱满的空间叙事乐章。随着灯光的明暗转换,整个场景氤氲出精致的烟火气。
The spatial design features serpentine circulations, which contributes to arising people’s curiosity about the muti-layered spaces as well as appetite for food. Through these inter-connected spaces, and the exquisitely designed micro landscapes, people can have different views and feelings even at the same end scene. The overall space offers varied visual experience at every step, which not only shows the designers’ s ingenuity and creativity, but also makes “eating” more interesting and meaningful.People come here not just to fill up their stomachs, but more importantly, to feel the unique collision between food and the space, which may generate new inspirations for life.
▼夹层层空间概览,Mezzanine Floor overview
▼夹层用餐区域,小景观映射出美妙的光影,Mezzanine Floor dining area,micro landscapes create beautiful lights and shadows
简洁清雅的大排档设计并不代表不食人间烟火,而是以纯粹、本质的美感,为城市中行色匆忙的人们提供一个片刻停留之地。精心设计的视觉效果配合味觉铺就一个让食客放松身心的餐饮空间,牵引着每一个到访者倾诉自己的故事,借消散在热气中的短暂言语,为小鱿鱼注入活的灵魂。接地气的海鲜大排档与简约脱俗的设计风格相互碰撞,将现代人的生活方式与返璞自然的地域风情相结合,兼容朴实素雅与现代时尚。人与空间进而产生共鸣,本地食客于此仿佛能感受到家乡的潮湿海风,他乡来客又能在细节中解读出渔民文化背后的质朴因子,二者共同借由空间话语辨认出这一片土地的文化模样。
Pure and aesthetic, the space provides busy urban people a place to stay a while for relaxing. Elaborately designed visual effects, combined with delicious seafood, together constitute this cozy and relaxing dining space. It guides diners to tell their stories and feelings, which injects emotion and soul into the space. With minimal and refined designs colliding with the space, and modern life style integrating with the local culture of respecting and enjoying the nature, a modern yet elegant dining destination eventually came into being. In this way, the space and people in it echo with each other. In other words, through the design details and spatial language, both local dinners and visitors from other places are able to interpret and feel the local fishing culture and the spirit behind it.
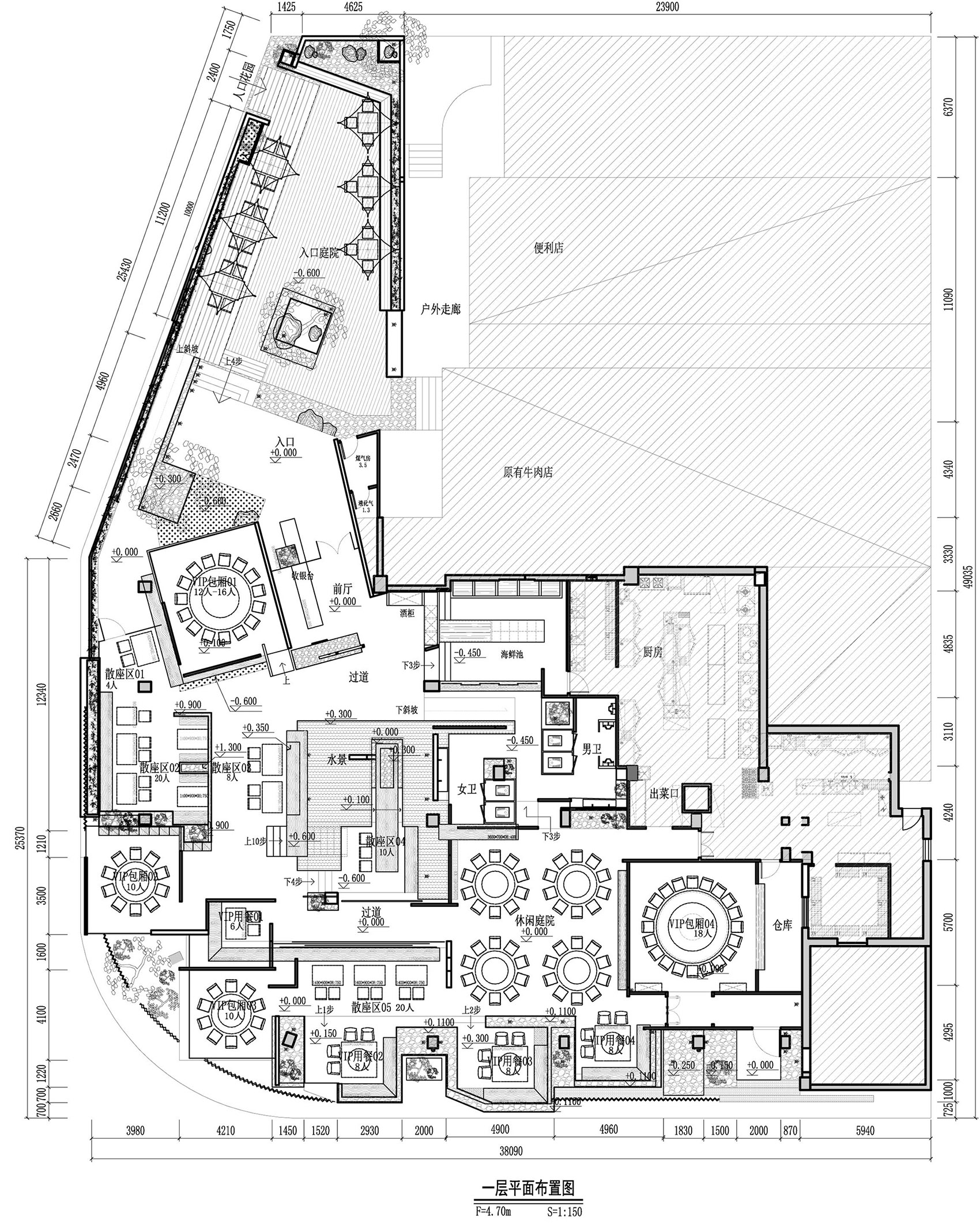
▼首层平面图,ground floor plan
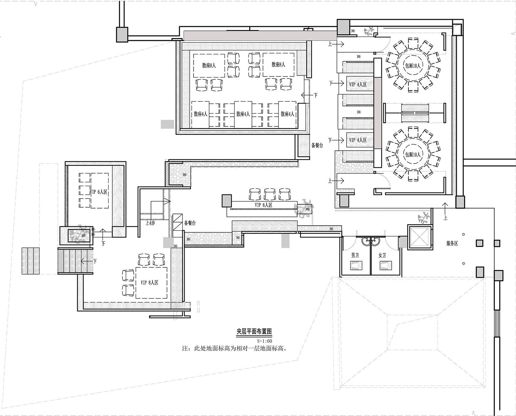
▼夹层平面图,Mezzanine Floor Plan
客服
消息
收藏
下载
最近

























