查看完整案例

收藏

下载
小宅设计
35
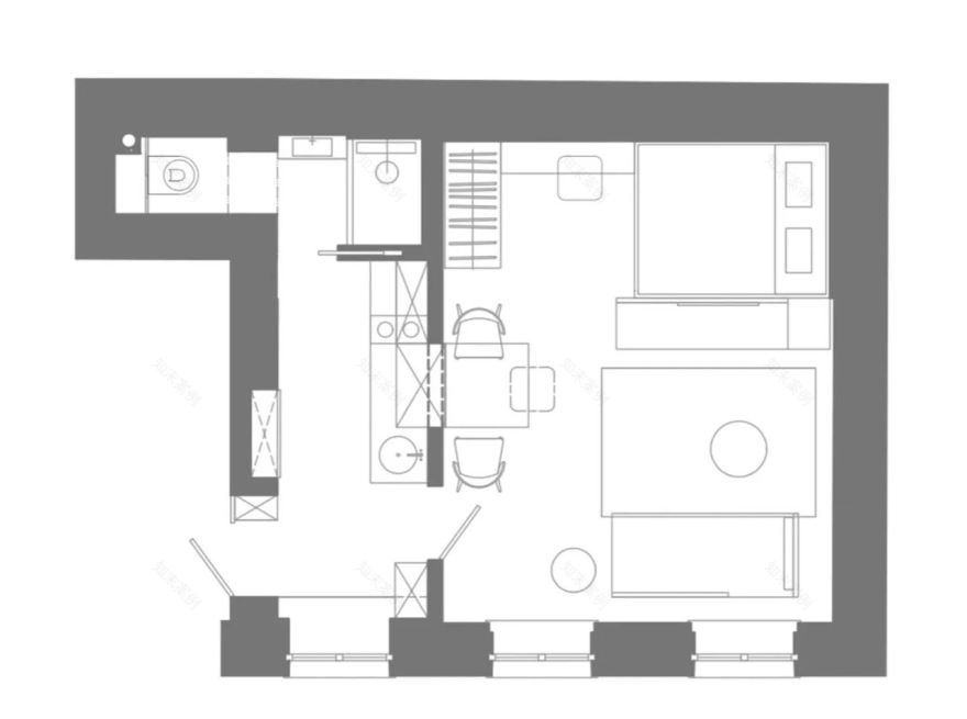
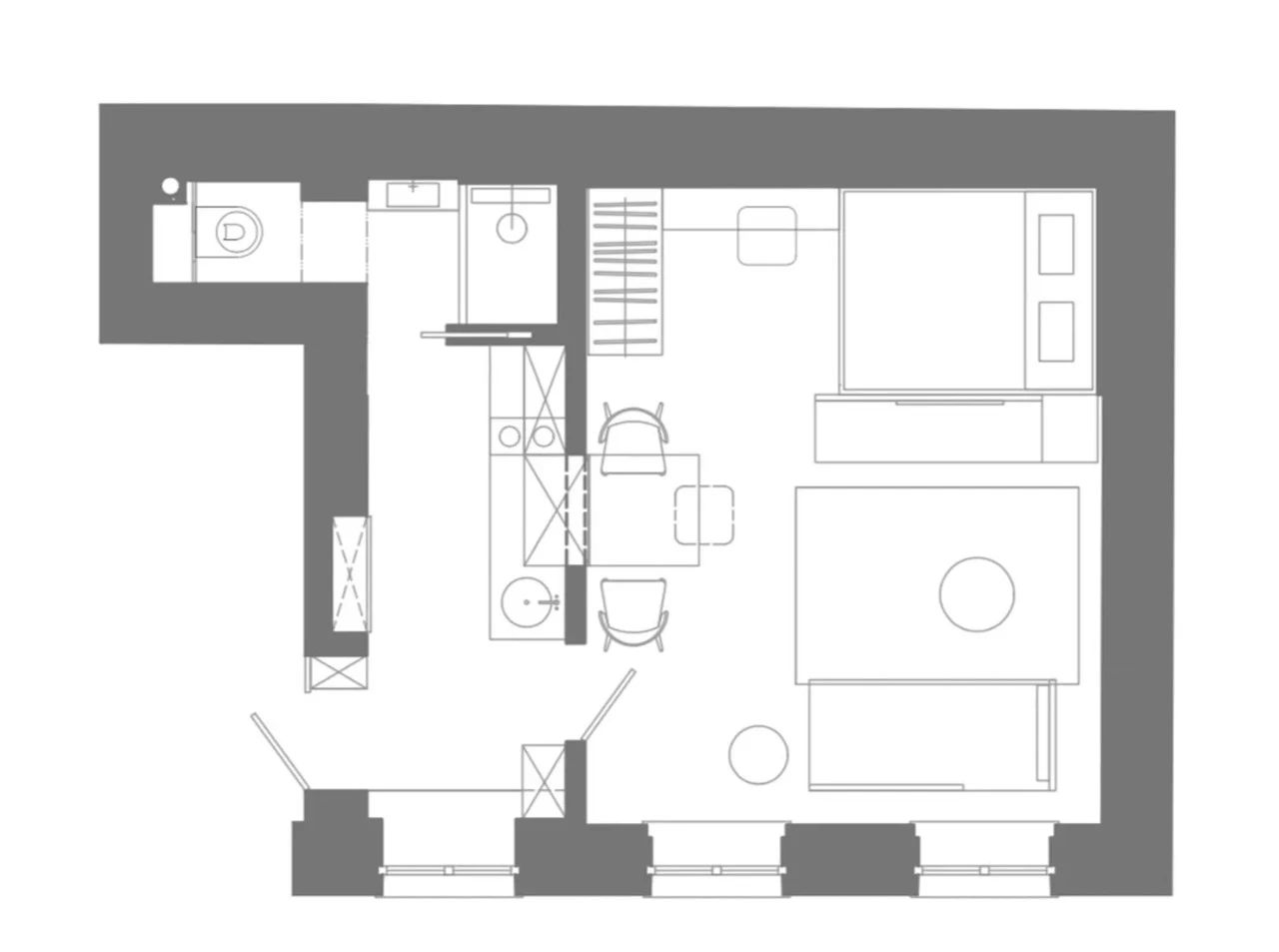
㎡小宅改造。有一个带小衣柜和放鞋子的地方的入口大厅;带沙发的小客厅;卧室配有160厘米宽的床、梳妆台和衣柜;厨房配有冰箱、炉灶和微波炉。厨房操作台与尺寸为 90 x 90 厘米的半吧台相连,该桌又延伸至起居区。
建筑师在饰面和装饰中结合了新旧元素。
因此,部分墙壁被清理成砖,并覆盖了一层薄薄的石灰灰泥,窗户的斜坡被平整,获得了带有弯曲表面的均匀盒子的有趣组合。
决定不缝合旧木梁;
在它们之间放置石膏板平面。
室内的一个重要元素是镜子,
在视觉上扩大了空间,赋予其深度。
一个有趣的物体是房间和厨房之间的玻璃展示柜。
空间布局
客服
消息
收藏
下载
最近

















