查看完整案例

收藏

下载
自门廊开始的现浇水洗石铺地,错落漂浮于花木之间,沿着台阶,直抵室内吧台。而由木夹板拼接形成的天花界面则由内向外延展至室外檐下。空间上的材料交错动作意图模糊室内与花园的边界。
氹边建筑
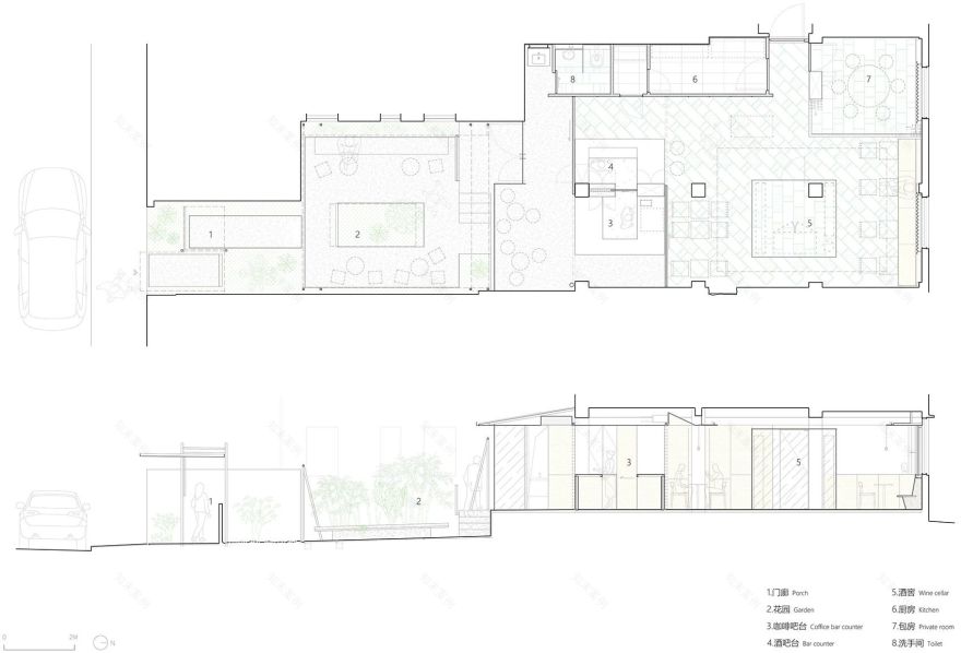
“椿”隐藏于广州一条名为永胜上沙的道路上,是一间以经营咖啡、葡萄酒吧、私厨餐厅为主的复合型店铺。其所在物业为上世纪 80 年代建成的示范性住宅小区东湖新村的一个底层单元,设计范围包含 40m²的室外庭园以及 80m²的室内空间。
▲入口门廊
© 张超
一个轻盈的黑色⻔廊设置于临街一侧,作为店铺形式上的⻔户。⻔廊的顶面向外延伸,并进一步向下翻折,裁切街道与庭园之间的视线关系,形成隔而不断的景致,带出曲折的路径。入口处挑选了又名为椿的山茶花作为迎客小景,而庭园中部则配置了以姿态优美的小叶紫薇为主的花木丛,作为引人入胜的主景。
▲室外花园概览
© 张超
▲从室外花园看入口
© 张超
在高密度城市中为提高空间利用率而发展出的复合经营模式,带来了对空间的弹性使用要求,也成为本案设计思考的起始点。我们在原本花园与室内的边界上设置了双向的岛式吧台,一端为咖啡的制作,另一端为酒。而一扇可移动的墙体成为转化咖啡馆与酒吧的空间开关。既为店家“日咖夜酒”的经营提供便利,也能同步切换室内外空间的氛围。
▲墙体变换轴测图
© 氹边建筑
▲模糊的内外边界
© 张超
▲从咖啡吧台看花园
© 张超
▲咖啡吧台与移动墙体
© 张超
▲从花园看酒吧入口
© 张超
透明玻璃建造的恒温酒窖被放置在室内的中间,作为酒吧区的焦点,同时限定出相对独立的座区。端头设有半透明折叠窗扇围合的独立房间,这是私厨的包房。在需要时将其窗扇收拢时就成为酒吧的延伸。
▲葡萄酒吧区域
© 张超
▲玻璃建造的酒窖
© 张超
▲就餐区
© 张超
地砖与墙体留空脱留
© 张超
▲就餐区一角
© 张超
▲洗手处
© 张超
▲私厨包房
© 张超
自门廊开始的现浇水洗石铺地,错落漂浮于花木之间,沿着台阶,直抵室内吧台。而由木夹板拼接形成的天花界面则由内向外延展至室外檐下。空间上的材料交错动作意图模糊室内与花园的边界。室内绿色渐变的水磨石与裸露的旧红砖墙体之间留空脱离,形成新与旧的游离与对照。
▲夜晚的入口
© 张超
▲傍晚的花园
© 张超
项目图纸
▲平面与剖面
© 氹边建筑
项目名称:椿
项目时间:2022 年
项目所在地:广州市越秀区东湖新村
项目类型:旧建筑改造、店铺设计
建筑面积:120㎡
建筑设计:氹边建筑工作室
建筑师:刘洋、邓豪威
合作建筑师:林颖群
植物顾问:翁子添
材料: 水洗石、素木夹板、水磨石、钢板
委托方:无牌咖啡-椿·Hideaway Vino
施工方:关国浩
摄影师:张超
客服
消息
收藏
下载
最近





















