查看完整案例

收藏

下载
作为百年前舟楫往来、包罗万象的通商口岸,福州苍霞历史街区的保护与更新着眼于传承其独一无二的“码头精神”文脉,从城市设计的角度创造一种动态可发展的“有温度”的空间。
The project focuses on historic preservation and urban regeneration in Cangxia, Fuzhou, where used to be a prosperous trading port.
▼项目概览,Project Overview ©是然建筑摄影
▼鸟瞰图,Aerial View ©是然建筑摄影
苍霞的街巷自下而上生长变化,经过百年发展,整体的街巷体系与空间尺度延续下来,无论是交通活跃度还是地区可达性都十分可观。
The street network of Cangxia has evolved bottom-up through hundred years. Its spatial system and scale has continually developed with a high level of vitality and accessibility.
▼总平面图,Master Plan ©JUND Architects
01.织补肌理
DARN TEXTURE
在本次保护与更新的方案中,提取了原有空间形态和尺度,并延伸新的毛细血管街巷。织补网络肌理、传承街巷脉络,使得其空间的商业适用性得到了传承和提升,让这片区域被充分激活。
In the context of inheriting the original spatial morphology, this project provides more alleys of smaller scale spreading and extending, structurally mending the street network. Therefore, spatial adaptability for commercial activities can be highly improved to help this area grow prosperously.
▼首开区南侧和西南角更新前后对比,Development Area Before and after Renovation ©是然建筑摄影
▼首开区西北角更新前后对比,Development Area Northwest Corner Before and after Renovation ©是然建筑摄影
▼中平路日间街景,Zhongping Road ©是然建筑摄影
▼中平路夜间街景,Zhongping Road Night View ©是然建筑摄影
02.多样拼贴
DIVERSE COLLAGE
自开埠以后,苍霞的人文百态、阶层多元彰显了它的包容性,空间形态也呈现多样化发展。柴栏厝、院落、校舍、仓库、店铺、教堂等各类建筑空间散布其中,拼贴成一副多彩而繁荣的社区景象。
Since Cangxia has become a trading port hundred years ago, it has welcomed people with various culture backgrounds and classes. Different life-styles has brought the increase of spatial diversity, and collaged into the scenery of a flourishing community.
▼街道立面的拼贴 Collage of Street Facade ©JUND Architects
▼场景拼贴,Collage ©JUND Architects
为再现苍霞基督教堂“玉带环腰”的意境,用镜面+浅水的方式环绕教堂设置景观带,映射周围的街道屋舍、往来行人。用景观互动的设计手法,在相同的坐标位置,与历史景象产生微妙的重叠。
The landscape belt is arranged around the church by mirror + shallow water, and the surrounding street houses and pedestrians are mapped. With the interactive design of the landscape, in the same coordinate position, there is a echo with the historical scene.
▼场景拼贴之教堂前广场,Collage – Church Square ©JUND Architects
同时,设计把苍霞原有的人文元素如古榕树、茶亭、戏曲等融入到现代社会的语境下,使安宁的居住环境与热闹的商业氛围、人文旅行的体验与自然景致的享受都能兼收并蓄。
The original humanistic elementsof Cangxia, such as old banyan trees, tea kiosks, operas, etc., are integrated into modern society so that the peaceful living environment and the lively business atmosphere, the experience of human travel and the enjoyment ofnatural scenery can be eclectic.
▼场景拼贴之古树广场,Collage – Ancient Tree Square ©JUND Architects
在纵横的街巷和密集的肌理之中,设置不同大小尺度的公共开放空间,如同针灸一般,在维护原有的场地形态下,对空间进行不同程度的点状激活,为人们提供更多大小合宜、功能多样的共享场所。
In the vertical and horizontal streets and dense textures, public spaces of different sizes and sizes are set up. Under the maintenance of the original site form, different degrees of point activation are activated to provide more sizes forpeople. A convenient, versatile shared place.
▼场景拼贴之口袋广场,Collage – Pocket Square ©JUND Architects
▼多种业态的拼贴 Collage of Function ©JUND Architects
03.新旧共生
SYMBIOSIS
苍霞所积淀的文化本就是不同时代新旧共生的交叠。用“城市拼贴”手法来处理新旧建筑的空间关系。既非强调结果的“现代化街区”,也非追溯源头的“古建保护区”,而是通过富有时代感的重组整合,让城市的历史结构参与到当下与未来的城市发展中。
▼新建筑延续了核心保护区的天际线,Continuation of the Skyline ©JUND Architects
Inherited from the historical feature of Cangxia, this project uses the method of “collage city” for creating a symbiotic relationship between old and new architectural space. The solution of this project is neither to build modern block nor historical reserve, but the spatial recombination of various historical segments, which allows thehistory of Cangxia participates in the progress of its future development.
▼中平路87号(左)与新建首开区(右),87th Zhongping Road (left) and the New Developed Area (right) ©是然建筑摄影
▼中平路87号(右)与新建首开区(左),87th Zhongping Road (right) and the New Developed Area (left) ©是然建筑摄影
▼新建首开区(左)与苍霞基督教堂(右),the New Developed Area (left) and the Cangxia Christ Church (right) ©是然建筑摄影
▼首开区入户及里弄,Alley Entrance ©是然建筑摄影
▼中平旅社(左)与新建首开区(右),Zhongping Hotel (left) and the New Developed Area (right) ©是然建筑摄影
▼中平旅社(左)与新建首开区(右),Zhongping Hotel (left) and the New Developed Area (right) ©是然建筑摄影
▼新建筑的院子,Courtyard of theNew Building ©是然建筑摄影
▼老建筑的院子,Courtyard of the Old Building ©是然建筑摄影
▼老建筑的室内,Interior of the Old Building ©是然建筑摄影
▼新建筑的室内,Interior of the New Building ©是然建筑摄影
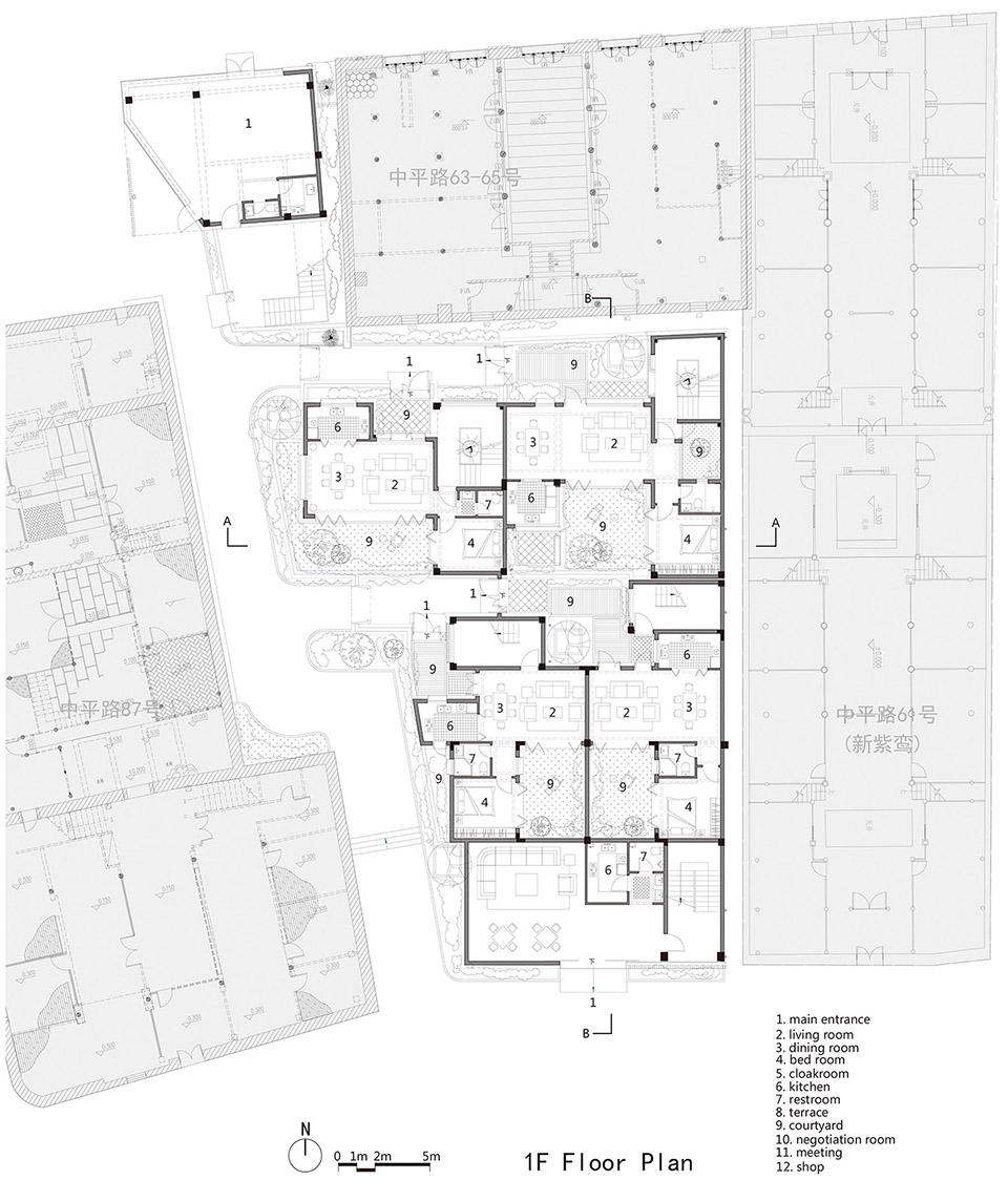
▼新建首开区一层平面图,Floor Plan of the New Building(1F) ©JUND Architects
项目信息:
业主名称:融信集团
项目地点:福建省福州市台江区中平路
建筑设计:上海骏地建筑设计事务所股份有限公司
施工图:福建清华建筑设计院
景观设计:上海朗道景观规划设计有限公司
样板房精装设计:上海恩威建筑设计有限公司
设计总监&主创:申鹏
城市设计总顾问:蔡楚曦
设计团队:李立新、林娜、文梦晗、刘梦实、张福龙、朱晓艺、姚佳,朱育宏,舒洪波,舒畅,王深程,陈逸秋
建筑面积:约106,000 ㎡
设计时间:2017-2019年
文章作者:文梦晗
摄影:是然建筑摄影
Project Information:
Owner Name: RONSHINE GROUP
Location: Zhongping Road,Taijiang District, Fuzhou City, Fujian Province.
Architecture Design: Shanghai JUND Architects Co.,Ltd.
Construction drawing design: Fujian Tsinghua Architectural Design Institute.
Landscape Design Consultant: Shanghai Langdao Landscape and Planning Design Co., Ltd.
Interior Design Consultant:Shanghai Enwei Architectural Design Co., Ltd.
Design Director: John Shen
Urban Design Consultation: Richard Cai
Design Team : Lixin Li, Na Lin, Menghan Wen, Mengshi Liu, Fulong Zhang, Xiaoyi Zhu,Maggie Yao,Yuhong Zhu, Hongbo Shu, Chang Shu,Shencheng Wang, Yiqiu Chen
Building Area: 106,000 ㎡
Year of Design: 2017-2019
Text: Menghan Wen
Photo: Shiran Architecture Photography
客服
消息
收藏
下载
最近













































