查看完整案例

收藏

下载
Qiu Wenjian
室内改造中,我们主要对隔墙进行了干预。空间中的不同隔墙上通过布置窗洞以引入光线,同时在室内起了框景作用,重构了空间内部墙顶地以及门窗的关系。墙体之间设置了壁龛,成为空间中的视觉焦点。一楼院落一侧的窗扩大成旋转移门,木质窗套作为建筑边界呈现出闭合与开放两种不同的姿态。
丰富路 101 号是一栋位于南京新街口附近的一个三岔路口建筑,曾作为服装品牌三枪集团的办公建筑,在三枪搬离后二条商店入驻了这里,我们受其委托对老楼做改造更新。
▲街区鸟瞰
© Qiu Wenjian
101 号位于一片 80 年代的社区中,建筑高度不超过三十米。场地由沿街的一整栋楼和一个院子组成,西南边是朝天宫文保建筑群,为江南地区现存规制最高、保存最为完整的明清官式古建筑群落。101 号所处独特的场地文脉,使得我们类比联想到战后米兰的一些改造实践。
▲街区分析
© 衡建筑
▲丰富路街景
© Jin Xiaowen
▲东向立面
© Jin Xiaowen
▲转角街景
© Jin Xiaowen
▲南向立面
© Jin Xiaowen
米兰建筑师 Luigi Caccia Dominioni 设计的 Corso Monoforte 9 商住混合体是二条商店改造的业态和设计参考。该建筑定制的百叶遮阳系统与特殊的窗洞形式使其与街道的公寓住宅有所区别,显得更加引人注目,在城市中也有着独一无二的个性。设计之初,一至三层就是作为商业用途,一楼目前依旧是 Flos 的米兰品牌旗舰店;四至五层是公寓住宅,预留了商业改造的可能,四层曾多次被用为办公或零售空间使用。Corso Monoforte 9 的成功之处在于其“居住”与“商用”属性之间的模糊与多元可能。“住宅体验的商业空间”特质使其颇受家具商、设计师与时尚业主的青睐。二条商店邻接着 80 年代的住宅社区,过去的所属权变更使其用途和街区角色都有别于邻居。
▲Corso Monforte 9, Luigi Caccia Dominioni
© Filippo-Romano
▲南向立
细部
© Jin Xiaowen
▲建筑入口
© Jin Xiaowen
如何将其改造成为既尊重社区又保留商业空间特质是此次设计的核心思考。根据 Corso Monoforte 9 的启发,我们为二条商店设计了一套由阳台与门窗形成的立面语言:将旧租客封闭的阳台恢复为打开状态,还原立面明暗交叠的丰富表情。木制门窗替换掉原有的 PVC 门窗,使风格更为统一。外立面整体由白色涂料覆盖,保留阳台的矩形装饰,抽象处理使建筑与临近住宅有适度的区隔。在城市尺度上,白色墙体在街道中醒目但不夸张,跟环境融为一体。我们希望通过新与旧的对话,重新激发起城市居民对他们生活区域的好奇与兴趣,从视觉和空间体验中获得新的经验。
▲首层室内图
© Qiu Wenjian
▲二层室内图
© Qiu Wenjian
室内改造中,我们主要对隔墙进行了干预。空间中的不同隔墙上通过布置窗洞以引入光线,同时在室内起了框景作用,重构了空间内部墙顶地以及门窗的关系。墙体之间设置了壁龛,成为空间中的视觉焦点。一楼院落一侧的窗扩大成旋转移门,木质窗套作为建筑边界呈现出闭合与开放两种不同的姿态。不同的建筑边界对应着四季的气候状况,室内与室外的关系也在分割和融合间转换。在夏季,庭院成为室内空间的外延,使建筑与底层景观获得良好的连接。
▲四层走廊
© Jin Xiaowen
▲四层室内概览
© Jin Xiaowen
▲木质窗框
© Jin Xiaowen
▲四层室内一角
© Jin Xiaowen
在院子的改造上我们结合了业主的三点想法:口袋公园、骑行友好和宠物友好。社区道路一侧的院墙渐次地降低,至主道路一侧院墙最矮,自然形成庭院入口。入口处为街道退让出向内的三角形空间,以相对温和的方式面向城市。院子深处的院墙维持了原有的两米高度并放置了大量的绿植,形成一个有包裹感的口袋公园。三边院墙的不同高度对应着紧邻街道由私密过渡至开放的设计特性。
▲庭院入口
© Jin Xiaowen
▲庭院与首层咖啡区
© Jin Xiaowen
▲庭院俯视
© Jin Xiaowen
▲庭院景观
© Jin Xiaowen
二条商店所处的新街口是南京最活跃的商业街区,我们希望借由这个垂直改造的机会,为社区植入一个相对不同的商业生态系统,尽可能满足年轻群体对美好生活体验的需求和期望。借由这样的旧楼改造,为城市更新主题提供不同的解答。
▲转角夜景
© Qiu Wenjian
项目图纸
▲轴测图
© 衡建筑
▲城市总平面
© 衡建筑
▲首层平面图
© 衡建筑
▲二层平面图
© 衡建筑
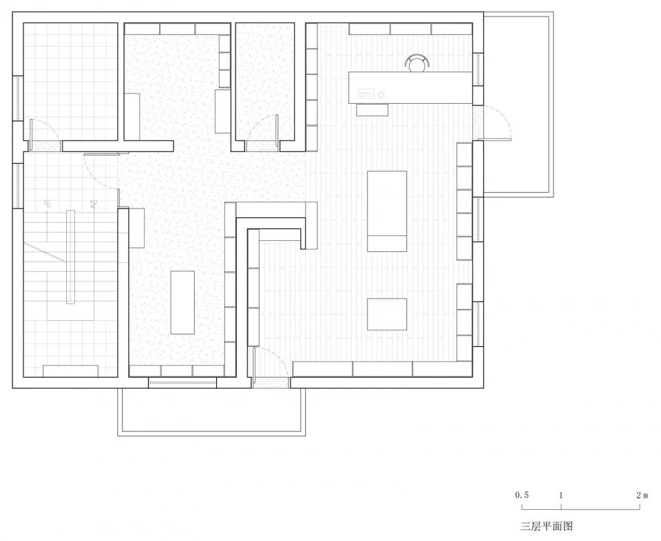
▲三层平面图
© 衡建筑
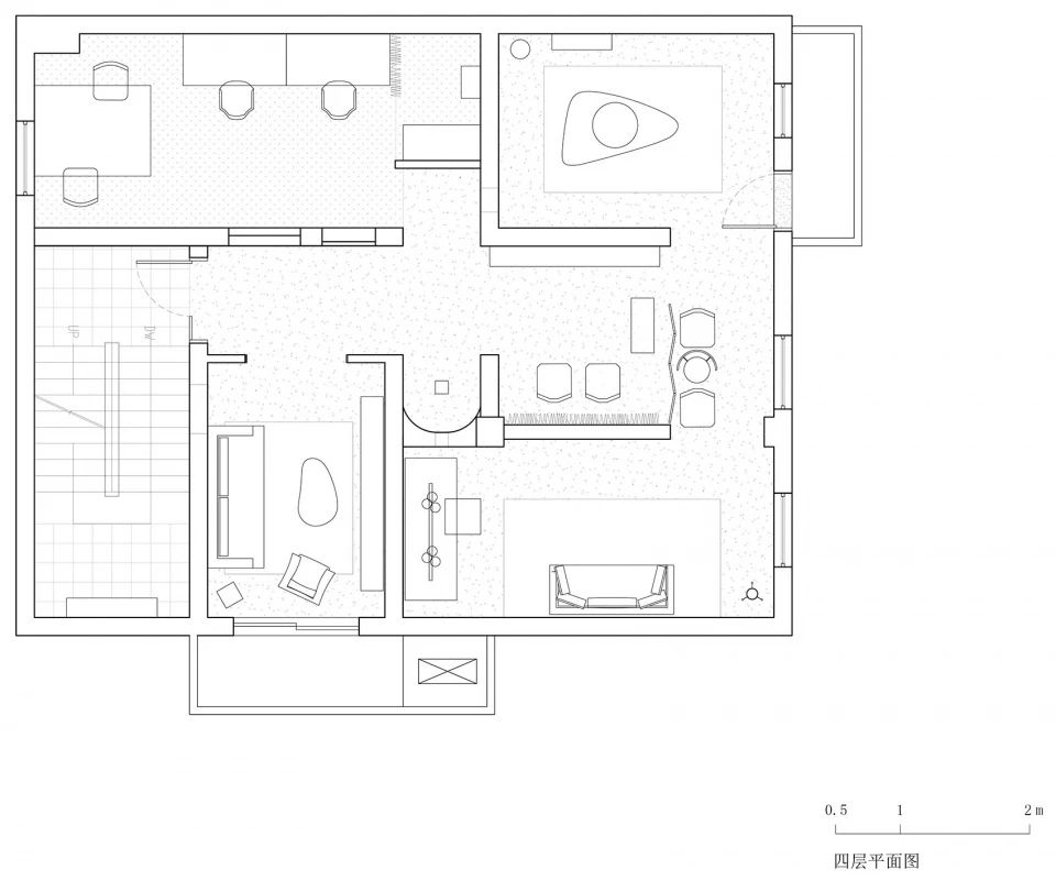
▲四层平面图
© 衡建筑
▲建筑截面图
© 衡建筑
业主:二条商店
建成状态:已建成
设计时间:2022 年 03 月 – 2022 年 05 月
建设时间:2022 年 06 月 – 2022 年 09 月
用地面积:210m2
建筑面积:750m2
设计方:衡建筑工作室
设计团队:周睿哲 张思羿 杨竣博
摄影师:Ingallery 金啸文 邱文锏
客服
消息
收藏
下载
最近






































