查看完整案例

收藏

下载
即将在2019年内对公众开放的苏州第二图书馆位于苏州古城以北,它将为苏州这座古老而传统的文化书城带来的不仅仅是一座新图书馆。这座掩映在书香公园景观中的新图书馆中,还设有若干特色阅览室、展览空间等文化设施。这座图书馆最主要的特色是拥有国内首座藏书容量七百万册的先进的大型智能书库。gmp· 冯·格康,玛格及合伙人建筑师事务所在2014年赢得了图书馆设计竞赛,并获得设计委托,与东南大学建筑设计研究院共同完成设计。
The Suzhou No.2 Library, which will be open to the public within the year 2019, is located north of the historic city center of Suzhou. It will bring more than just a new library to the ancient and traditional cultural city of Suzhou. In the new library, which is embedded in the landscape of a newly built Park, there are also cultural facilities such as built-in feature libraries and exhibition spaces. The main feature of this library is the first large-scale intelligent storage with the capacity of 7 million books in China. gmp · von Gerkan, Margand Partners Architects won the design competition in 2014 and was commissioned. The design is accomplished together with the Southeast University Architectural Design Institute.
▼东立面夜景,east facade by night © Christian Gahl
苏州第二图书馆在传统图书借阅功能之外,还为苏州市带来了国内首座配备了最先进的地上智能书库的 图书馆,藏书量将达700万册。高36.8米的图书馆坐落于新建的书香公园景观中,还设有苏州文学馆、设计图 书馆、数字图书馆、音乐图书馆、儿童图书馆等特色馆中馆,以及研讨、展览空间等公共文化设施。
In addition to the traditional library functions, Suzhou No.2 Library has brought the first library in China with the most advanced intelligent storage system above ground, with a capacity of 7 million books. The 36.8-meter-high library is located in the newly-built Park landscape. It also has built-in feature libraries such as the Suzhou Literature Library, Design Library, Digital Library, Music Library, Children’s Library, aswell as seminars, exhibition spaces, etc. cultural facilities.
▼西侧视角,view from the west side © Christian Gahl
逐层向上旋转倾斜的建筑形式与轻质遮阳铝板构成的横向立面线条赋予了图书馆独特的建筑造型。建筑底层面积被压缩,且平面轮廓与周边街道平行,在底层释放出更多步行空间与景观空间。建筑体量向上逐层旋转及外倾,使得上部楼层拥有朝向湖面和城市的更佳视野, 以及更宽敞的阅览空间。图书馆的造型意向也可类比于旋转叠放的纸张或书籍。
The building’s shape creates a clear resemblance to a skewed stack of papers and books, and the skewed architectural form and the façade of light aluminum louvers are layered up to give the library a unique silhouette. Whereas the ground level with its minimal surface is square and runs parallel to the street, the upper stories expand outward and are rotated as to provide views of the surrounding landscape and more reading spaces with better view.
▼横向立面线条,the unique silhouette © Christian Gahl
▼轻质遮阳铝百叶,the façade of light aluminum louvers © Christian Gahl
根据公共空间与书库的不同使用要求,图书馆建筑被分为两部分,它们在基座与上层空间中相互连接。书库部分厚实的外墙设计采用水平线条木纹肌理的清水混凝土,与通透的玻璃幕墙包裹的公共区域相互交叠。立面较为封闭的智能书库位于地块北侧,而采用通透立面设计的阅览室则位于南侧,朝向城市景观。地上六层建筑层高均为5.7米。
According to the different use requirements of the public space and the storage, the building is formed with two parts, which are connected to each other in the podium and the upper floors. The closed façade of the storage is designed with horizontally lined wood grained fair-face concrete that overlaps with the public area enclosed by the transparent glass façade.The intelligent storage with closed façade is located on the north, while the reading room with a transparent façade is located on the south, opened to the city view. The six floors above ground are all in height of 5.7 meters.
▼图书馆公共空间,public space of the library © Christian Gahl
▼门厅空间,lobby space ©Christian Gahl
▼儿童图书阅览室,reading room for children © Christian Gahl
▼设计图书馆阅览室,reading room of the design library ©严律己
两部分建筑体量,被建筑东西方向轴线上的公共广场分隔开,图书馆主入口也位于这个被抬高的广场两侧,可经由大台阶到达广场,进入图书馆南北两区,同时可由广场到达书香公园。通过提供穿越场地的捷径,引导众多市民进入这两部分建筑,建立了建筑内外空间的功能性连接,将图书馆及其多元化的文化活动,整合到城市结构中。
The two building volumes is separated by a public square on the east-west axis of the building. The main entrance of the library is also located on both sides of the elevated square, which can be reached with the steps. Visitors can enter the both north and south parts of the library, the park is also connected by the square. By providing shortcuts in the site, visitors are guided into these two building parts, creating functional connections between the interior and exterior of the building, integrating the library and its diverse cultural activities into the urban structure.
▼通往公共广场方向,way to the public square © Christian Gahl
▼相互连接的两个建筑体量,the two building volumes are connected with each other © Christian Gahl
▼鸟瞰夜景,aerial view by night ©严律己
▼总平面图 ©gmp Architects
▼底层平面图 ©gmp Architects
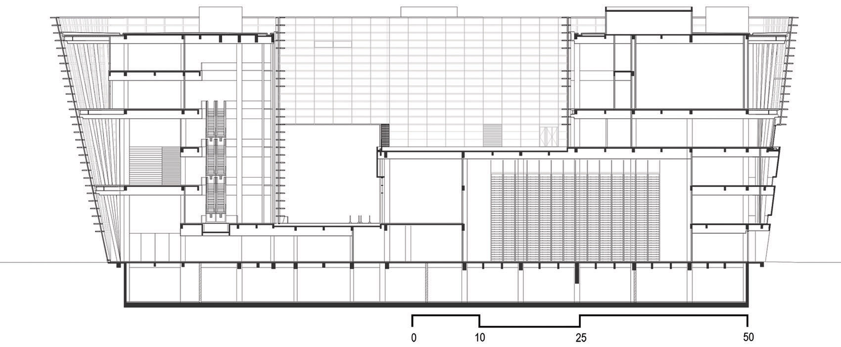
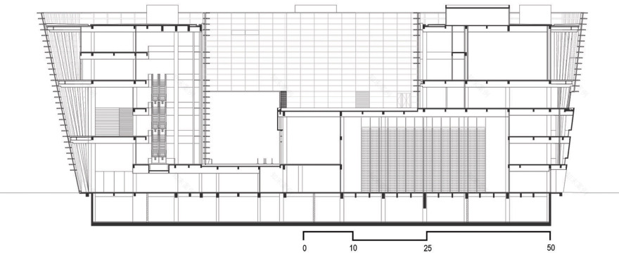
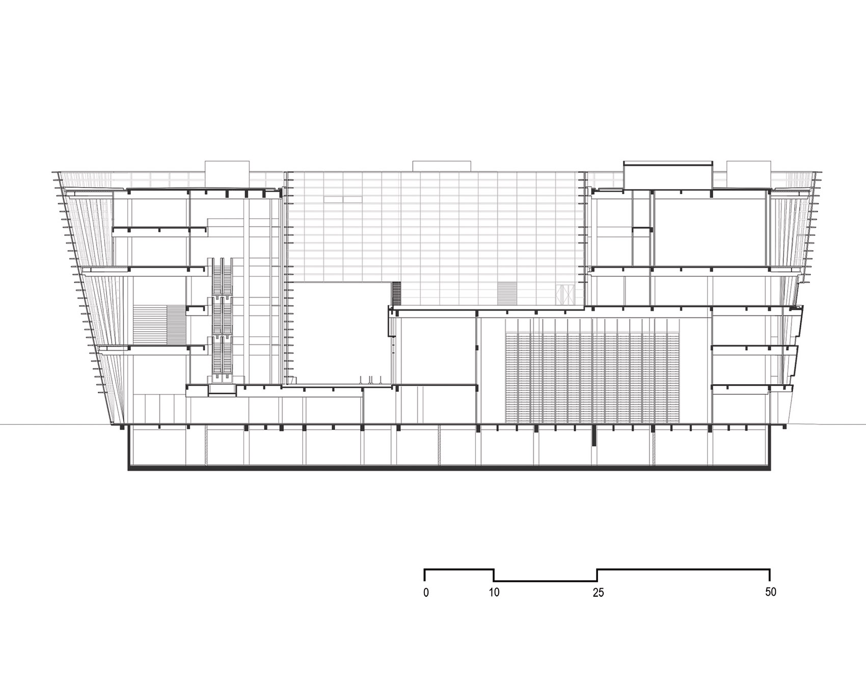
▼南北向剖面 ©gmp Architects
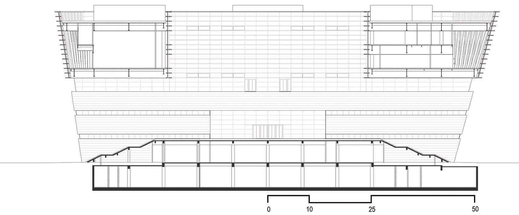
▼东西向剖面 ©gmp Architects
设计竞赛:2014年一等奖
设计:曼哈德·冯·格康和尼古劳斯·格茨以及玛德琳·唯斯
竞赛阶段项目负责人:孔晡虹,马丁·弗里德里希
竞赛阶段设计团队:任培英,法比安·施里特,阚立婧,穆斯特法·奥贝德,王轶群,张博维
实施阶段负责人:严律己
实施阶段设计团队:白云洁,马丁·弗里德里希,孔晡虹,李晨,钱烈,任培英,孙煜,徐徐凤,姚尧,史 晓卉
中国项目管理:潘梅
结构设计:施莱希·贝格曼及合伙人工程师事务所
幕墙顾问:华纳工程咨询有限公司
景观规划:WES景观设计事务所
中方合作设计单位:东南大学建筑设计研究院有限公司
业主:苏州图书馆
建筑面积:45,300m²
建设周期:2015年-2019年
藏书量:约7,000,000册
Competition: 2014–1st Prize
Design: Meinhard von Gerkan and Nikolaus Goetze with Magdalene Weiss
Project leaders competition: Kong Buhong, Martin Friedrich
Team competition: Ren Peiying, Fabian Schlitt, Kan Lijing, Mustafa Obaid, Wang Yiqun, Zhang Bowei
Project leader construction: Yan Lyuji
Team construction: Bai Yunjie, Martin Friedrich, Kong Buhong, Li Chen, Qian Lie, Ren Peiying, Sun Yu, Xu Xufeng, Yao Yao, Shi Xiaohui
Project managent China: Pan Mei
Structural design: schlaich bergermann partner sbp GmbH
Facade consultant: SuP Ingenieure GmbH
Landscape design: WES GmbH Landschafts Architektur
Partner office China : Architects & Engineers, Co., Ltd. of Southeast University
Client: Suzhou Library
Gross floor area: 45,300 m²
Construction period: 2015-2019
Capacity: about 7,000,000 books
客服
消息
收藏
下载
最近
























