查看完整案例

收藏

下载
精致轻奢
本案业主是一对在意大利定居多年的夫妇,回到故乡居住,希望在最念旧的地方,留下最熟悉的气息。
不同的城市,地域,国家;不同的空气,土壤与风土人情。设计需要思考融合的尺度,形态的取舍,并且兼顾居住的舒适感
模仿意式建筑的手笔,木材金属与石材的碰撞,经由细腻的细节处理,传达着空间精致轻奢的态度。
设计对于意式理念的传达,不止于形态的模拟,更多的是表达对其内在意象的理解。
内敛细腻
依据金属与木饰面的巧妙穿插,精致的奢侈主义再现,成为内敛低调外表
下的意式细腻。
入户玄关区域,设计自意大利城市Firenze(翡冷翠)的意象入手,提取这座城市中善用的绿纹大理石作为切入点,门厅处造境,营造归家的仪式感。
温暖的质感
转入卧室,色调由明及暗,不同于客厅空间的清冷开阔,反而由暗色压缩视觉空间,添加金色元素与暖色大理石,复古的灯饰与座具,以设计的笔法勾勒欧式的温暖质感。
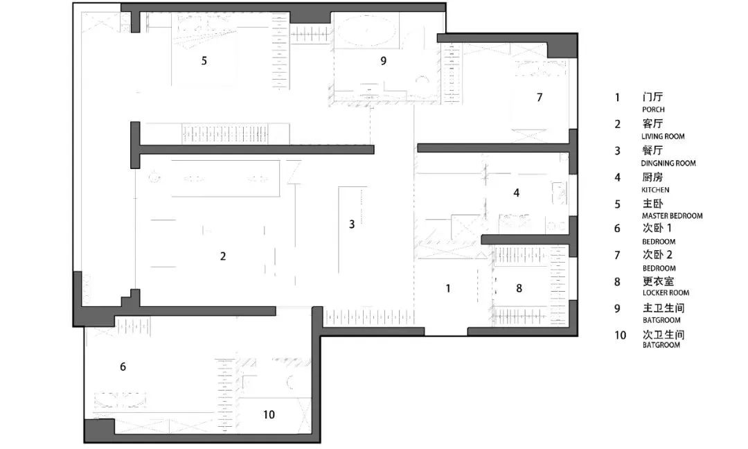
平面图
项目名称 | Firenze
设计公司 | 锵设计
主案设计 | 王锵力
项目地址 | 浙江 温州
客服
消息
收藏
下载
最近


























