查看完整案例

收藏

下载
项目名称:踏雪九里乡村度假民宿二期
项目地址:浙江绍兴新昌秤锤坑
项目面积:2000平米(一期 二期总面积)
竣工日期:2023年6月
空间设计:杭州观堂室内设计有限公司
平面设计:苳宇锐
工程施工:台州七零七装饰工程有限公司
主要材料:手工砖,水磨石,木地板,灰泥墙,风化老木板
空间摄影:黑水、踏雪
GTD 新作 | 小小的理想国 -- 踏雪九里乡村度假民宿
穿越时间的旅行
自2015年第一次抵达民宿所在的秤锤坑村,到2016年租下首批房子和土地,从2021年开始建设,再到2023年,终于完整了!这样一段漫长的岁月,由远及近,终于靠近了这个梦。
展哥依然清晰地记得,那年站在格子间办公室的中央在心里许下的愿望,那是在漫长隧道尽头的一道光,照亮了此后人生的方向。
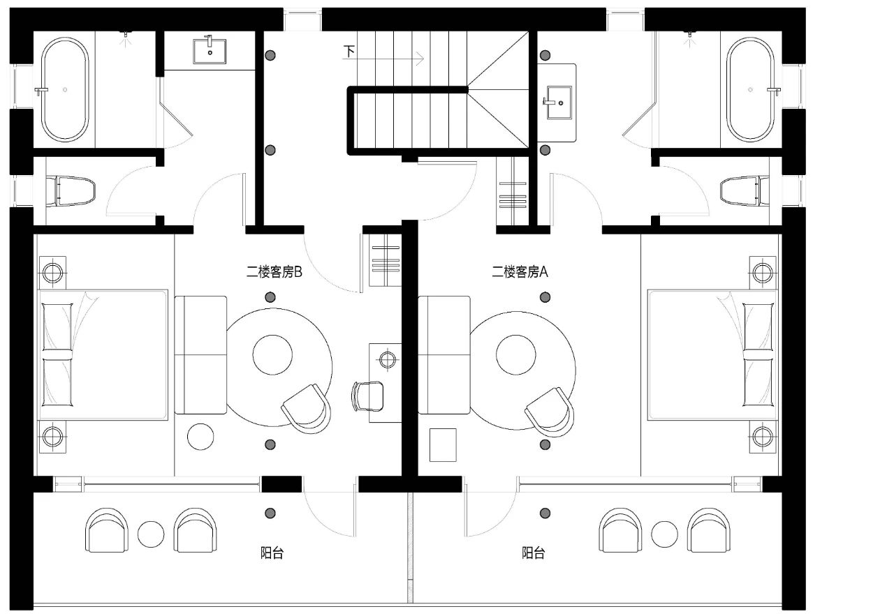
二期拥有两栋客房(1栋loft的一户建,1栋包含3间客房与共享客厅的独栋)以及
▲ 现在的踏雪,看上去比较丰满了。
适合组团包栋的3房1厅独栋
为提升度假感,二期2层原本规划的3间客房现调整为2间,从而确保每间房都能达到35平米以上,都含有起居空间及露台,更加放松舒适;
1层的房间向外延伸,拓展出独立的小庭院,坐在院子里休憩发呆,松弛而私密。
二楼客房A,45平米
▲ 二楼客房B,42平米
▲ 一楼房间自带庭院,35平米
一层还设置了50平米的客厅区,沙发、壁炉、餐桌、厨房设施,加上三个客房,非常适合2-3户人家组团包场,既可自由发挥做些饭菜,也可以做甩手掌柜向管家预约订餐。
一楼的共享厅与庭院
一楼平面布局
||
私密浪漫的复式独栋
二期里有一幢复式独栋,一层客厅,二层卧室,带个小露台,独门独户,特别适合寻求私密的二人世界。
||
现代版的挖井取水
踏雪配套了泳池,但是地处深山、用水紧张,一期完工后曾用村里的供水系统给泳池蓄水,结果没还蓄到一半,村里用水连连告急,只好作罢。
第一回,选址
开凿,预估向下100米即可见水,结果一直到2
50
多米
这一折腾,打井的费用也从2万攀升到7万,好在终于实现了用水自由,总算是苦尽甘来
打井成功,夏日戏水的幸福
▲没打井前依赖村里供水的泳池,只能没过小腿肚。
||
自给自足的踏雪小厨房
应季
女主人小龙烧得一手好菜,剁椒鱼头水煮牛肉辣子鸡,手擀面葱煎包小馄饨,柴火灶的烟火气满足了味蕾的需求,真正的山野生活也需要落胃的惬意。
▲踏雪的小菜园,应季种上不同的瓜果蔬菜
就地取材,为来年准备丰盛的物产。
||
希望在浅表的精神欢愉世界里浸泡太久的人们,在这里能够找到心灵回家的路,找到避世乡村本来应有的样子和原本的自己。
踏雪,不仅仅是展哥的孩子,也是他匠人人生的开始。
T / 0571-88016769
A / 杭州滨盛路之江花园会所二楼
客服
消息
收藏
下载
最近











































