查看完整案例

收藏

下载
张海曼
TTD广州本至设计事务所创始人
中国青年杰出设计师
CIID建筑学会室内设计协会 理事
亚太空间设计师协会 会员
羊城设计联盟 理事/乡创委员会主任
广州美术学院 评课教师
广东省民宿协会 设计顾问
品牌
Brand · Wood
木,自然朴素的特性,温润细腻的质感,自然与空间的融合,将回归自然作为高品质家居的打开方式,简约流畅的几何元素配合木的自然纹理,为空间增添自然感和高级感。自然
Nature · Wood
在木元素办公空间概念设计中,我们需要在保留原有的结构和形态,同时注重木元素的特质,将这种关系理念融入到空间的构成和流线中。很好地诠释了木元素办公空间概念设计的精髓。
我们需要从内部空间中去探索、去发现、去感受,从而在整个办公空间中体验到美的存在。
回型动线
Return line
回字环状动线的设计,赋予空间的开阔感和流畅性,区域的关系显得开放且自由。迂回多变的路径设置,灵活的分割和衔接的空间,构造出完整统一的空间序列,自然过渡到不同区域。
办公空间/
Office Space
茶室/
空间充满了大小、方向、形状的巧妙穿插和对比,并不对称,却因共同简洁纯净的风貌而十分统一和谐。就像是蒙德里安式绘画的立体化,若即若离,充满想象的意趣。
Tea room
中国人的茶室,不局限于品茶,既是一个缓冲放松的空间,也可以承担社交的功能。在放缓工作节奏和促进商务洽谈的动静之间,处于一个微妙的平衡。
充足的自然光、人本照明和可持续照明的理念,充分考虑办公需求,以造型的方式解决功能性问题,塑造兼具功能性、艺术性和舒适性的照明环境,斜面天花拉高空间的同时,最大限度的捕捉自然光,并通过室内空间进行塑造。
Lounge
休息室在接待客人的同时,也承担小型交流的功能。模块化组合的桌面,结合产品陈列形成雕塑般的矩阵美学。高档的皮质包裹给予人更好的触觉感受。
借助光线来记录晨昏的光影变化,凸显材质的肌理,功能与真实兼顾并反推二者之间的关系,赋予人对应空间的真实体验感,记录情绪的产生,过程及结果。
几何
解构/
Geometric deconstruction
几何形体和纯粹色块组合构图的设计手法是荷兰著名的建筑与工业设计大师格里特·托马斯·里特维尔德(1888-1964),受当时“风格派”蒙德里安影响而形成。
风格派把几何学作为造型基础,追求造型的普遍性,如同追求自然规律一样。
以几何式结构单体为表达方式,经过提炼的几何造型与原色色调是风格派运动的两大特征。纵横的几何线条相互作用,保持解构的稳定和平衡。抽象的造型和中性的色彩在视觉上增强了建筑立面的层次感。
几何体块的组合让建筑的空间开放流动、富于变化。
新的时代艺术需要抽象和简化,从过去繁琐的造型、色彩简化到简单基本的直线、矩形和原色,这才能保持艺术的纯洁性、必然性和规律性。
纯粹的水平线、垂直线以及交叉的原色构图,把风格派的艺术语言利用得淋漓尽致。
在设计上风格派追求一种终极的、纯粹的实在,追求以长和方为基本目标的几何体,界面变成直角、光滑无装饰,用抽象的比例和构成代表绝对永恒的客观实际。
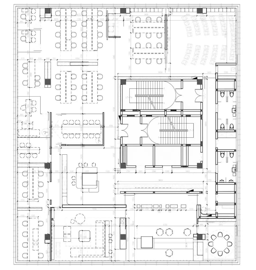
平面图
彩平图
项目信息
项目名称:壹品国际总部办公室
项目位置:广东·广州
项目类型:商业办公
项目面积:594㎡
2021
TTD
设计总监:张海曼
硬装设计:唐文希 鄢然
陈设总监:唐颖
项目摄影:不二山人空间影像事务所
项目业主:壹品国际
TTD
设计公司
TTD广州本至设计事务所创始人,毕业于广州美术学院。2013年创立本至设计,拥有多年设计及管理经验。善于将自然元素融入到空间中,崇尚自然建造理念。同时,从现代艺术作品中汲取灵感,把对艺术作品的思考和对空间的思考结合,空间即艺术。
设计的项目类型包括商业类,地产类,文旅类等,针对不同的地域风貌,文化及环境,进行实地调研考察,提供设计方案。
作品曾获得日本IDPA Award国际先锋设计奖,日本IDPA Award TOP100国际影响力创新设计师大奖,法国France Design Aaward双面神国际设计大奖银奖,法国France Design Aaward双面神国际设计大奖TOP100国际影响力创新设计师奖,美国缪斯设计大奖银奖,意大利A’Design Awards设计大奖银奖。
作为中国青年杰出设计师,张海曼先生一直砥砺前行,不断探索设计的更多可能。
客服
消息
收藏
下载
最近














































