查看完整案例

收藏

下载
2019中国北京世界园艺博览会国际馆坐落在北京西北延庆区的妫水河畔,在2019年4月至10月的中国北京世界园艺博览会上作为国际范围内参展的国家、地区和园艺组织的室内展场,以及举办国际园艺竞赛的场地。
▼项目概览,overview ©付兴
The International Pavilion of the 2019 Beijing International Horticultural Exhibition, located on the banks of the Guishui River in northwest Beijing’s Yanqing District. The International Pavilion serves as an indoor venue for different countries, regions and horticultural organizations around the world during the 2019 Beijing International Horticultural Exhibition from April to October 2019, and a venue for international horticultural competitions.
▼主广场,main square ©付兴
▼花伞下的广场,the square under the flower umbrellas ©付兴
▼国际馆室外广场南侧近景,southern side of the square ©陈溯
▼国际馆玻璃幕墙和花伞,the curtain wall and the umbrella shading device ©陈溯
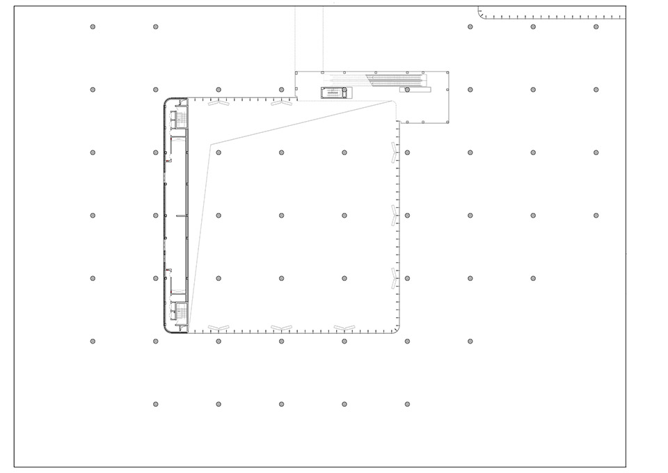
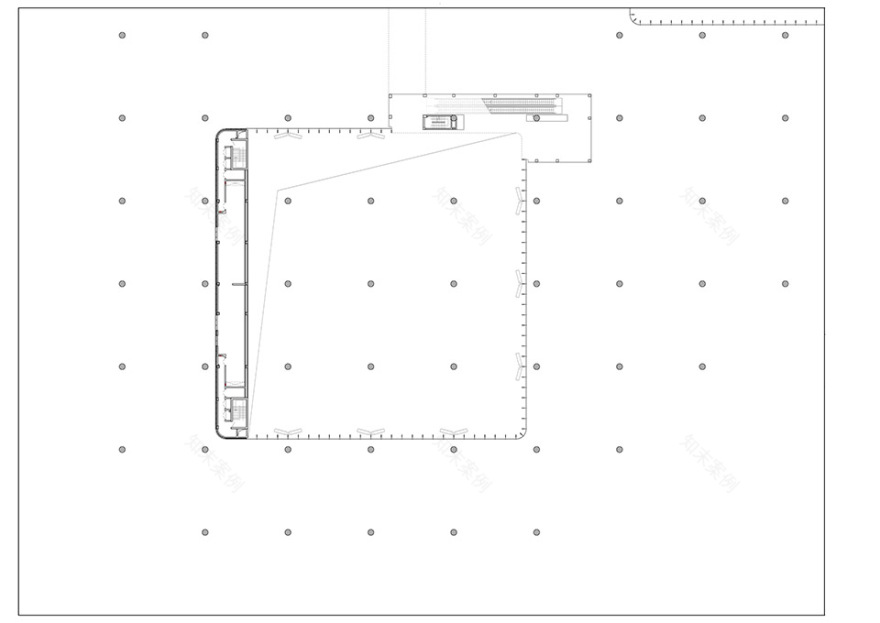
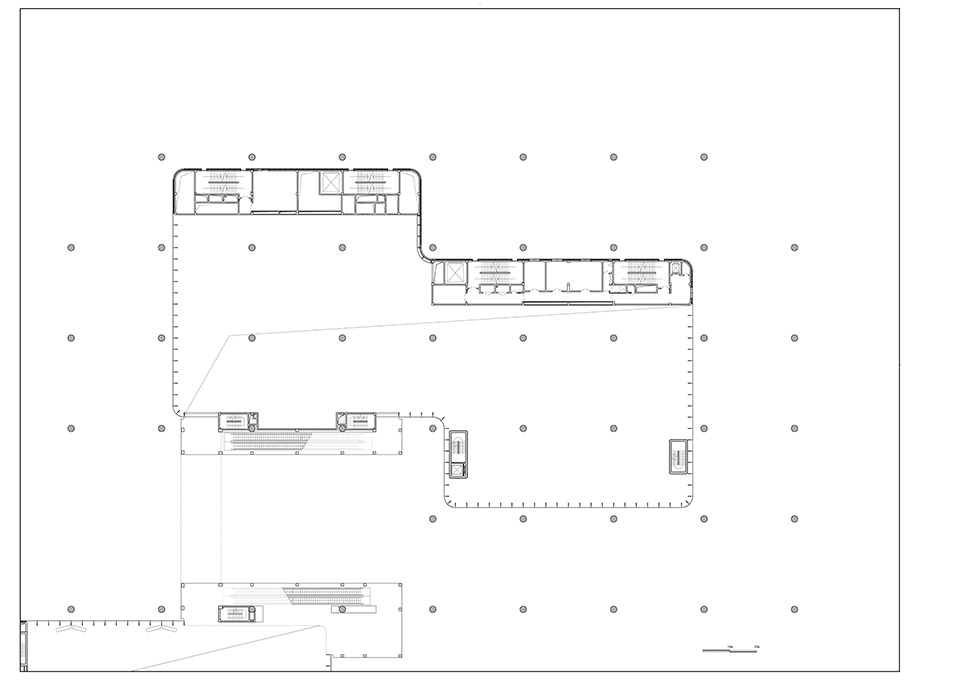
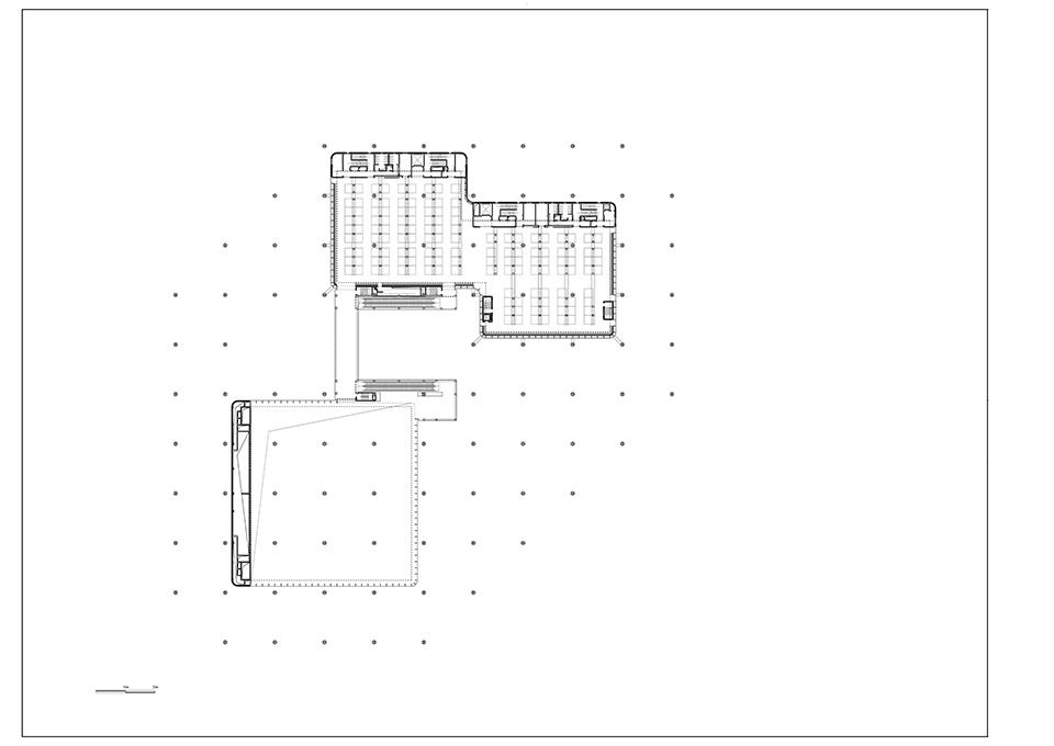
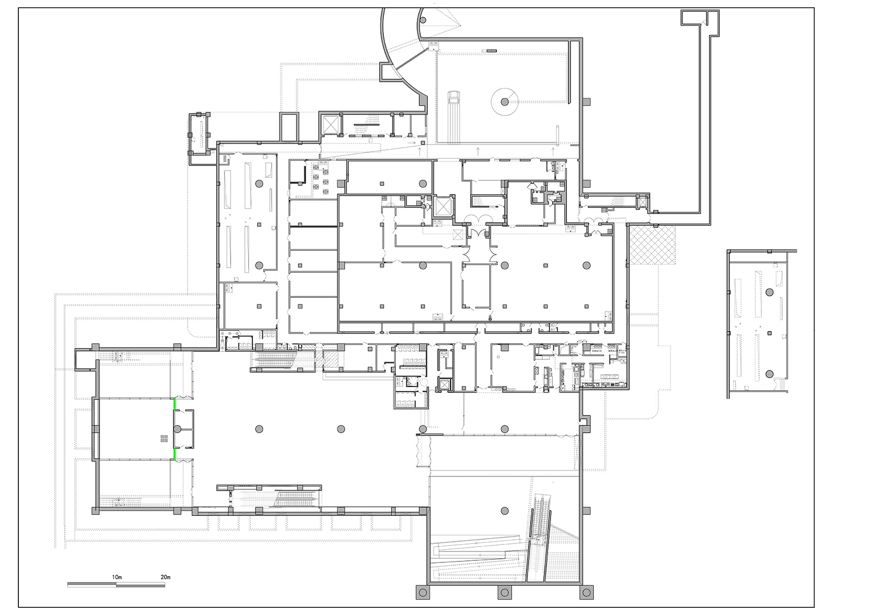
国际馆提供了一系列高品质的适合园艺活动和观众舒适观展的展览空间。建筑地上包括了3个相互串联的展厅,地下包括了登录厅、多功能厅、餐厅,以及机房、库房等辅助空间。国际馆提供的展览空间拥有多种空间高度,不仅可以适应多种规模的展陈,还提供了丰富的室内、室外和半室外的空间,为灵活的展览和会后再利用提供了充分可能。
▼建筑模型鸟瞰图,model
Above ground are three interconnected exhibition halls, and underground are the entrance hall, multi-functional hall, dining hall, machine room, warehouse and other ancillary spaces. Exhibition spaces offered by the International Pavilion vary in height, which can adapt to exhibitions of different scales and provide a wealth of indoor, outdoor and semi-outdoor spaces, ensuring flexibility and post-event venue use. The International Pavilion offers a range of high-quality exhibition spaces for horticultural activities, ensuring comfortable experience for visitors.
▼国际馆南北展厅间连桥,the bridge connecting the two halls ©陈溯
▼国际馆展厅内部,exhibition hall interior ©付兴
▼由室内看向广场,view from the interior to the square ©付兴
▼由室内看向连桥,view from the interior to the bridge ©付兴
▼二层连桥室内,view from the bridge to the square ©陈溯
国际馆地上二层,地下一层,总建筑面积为22,000m2,与临近的中国馆和妫汭剧场,3组建筑环妫水湖而立,共同组成了园区的核心建筑群。国际馆设计的出发点为:(1)灵活性和适应性;(2)与环境的关系;(3)人性化。并以此来回应世园会“绿色生活,美丽家园”的办会主题。
▼区位图,site plan
Covering 22,000 square meters, it has two floors above ground and one underground. The International Pavilion and the neighboring China Pavilion and the Performing Arts Center around the Guishui Lake constitute the core complex of the Expo. Key considerations of the design of the International Pavilion include (1) flexibility and adaptability, (2) relationship with the environment, and (3) people-centeredness, in response to the Expo theme of “Live Green, Live Better”.
▼建筑周边环境,surrounding environment ©付兴
▼国际馆西侧及主入口下沉广场,west view and sunken plaza at the main entrance ©陈溯
▼项目鸟瞰,aerial view ©BIAD
▼国际馆东侧夜景,night view of the east facade ©陈溯
▼国际馆东南侧夜景,night view of the southeast facade ©陈溯
▼国际馆室外广场,the square night view ©陈溯
▼国际馆室外广场,the square night view ©陈溯
▼国际馆南北展厅间连桥夜景,the bridge night view ©陈溯
▼国际馆西侧下沉广场,the stairs to the sunken plaza ©陈溯
▼花伞单位研究,the flower umbrella unit
▼花伞排布研究,the flower umbrella group
▼花海示意图,the flower umbrellas illustration
▼节能分析图,sustainable strategies
▼总平面图,master plan
▼一层平面图,1F plan
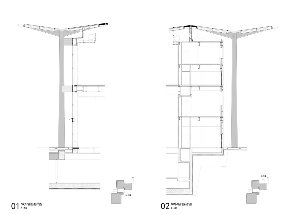
▼剖面图,sections
客服
消息
收藏
下载
最近






















































