查看完整案例

收藏

下载
爱马思艺术中心以“共生”作为主要理念,让新与旧、内与外、建筑与自然、艺术与人群之间和谐共生。本次改造合理运用了原有厂房空间,并在顶层和沿街面进行扩建,以此来满足美术馆未来多样的需求。
IOMA is an art center situated at 798 Art Zone, Beijing, which is a transformation project. Based on the concept of “symbiosis”, the design aimed to realize harmonious coexistence between the new and old, inside and outside, architecture and nature, as well as art and mankind. As approaching the project, ARCHSTUDIO reasonably utilized the original architectural space, and added extensions to the top floor and along the street, with a view to satisfying diverse future functional demands.
▼项目外观,external view of the project
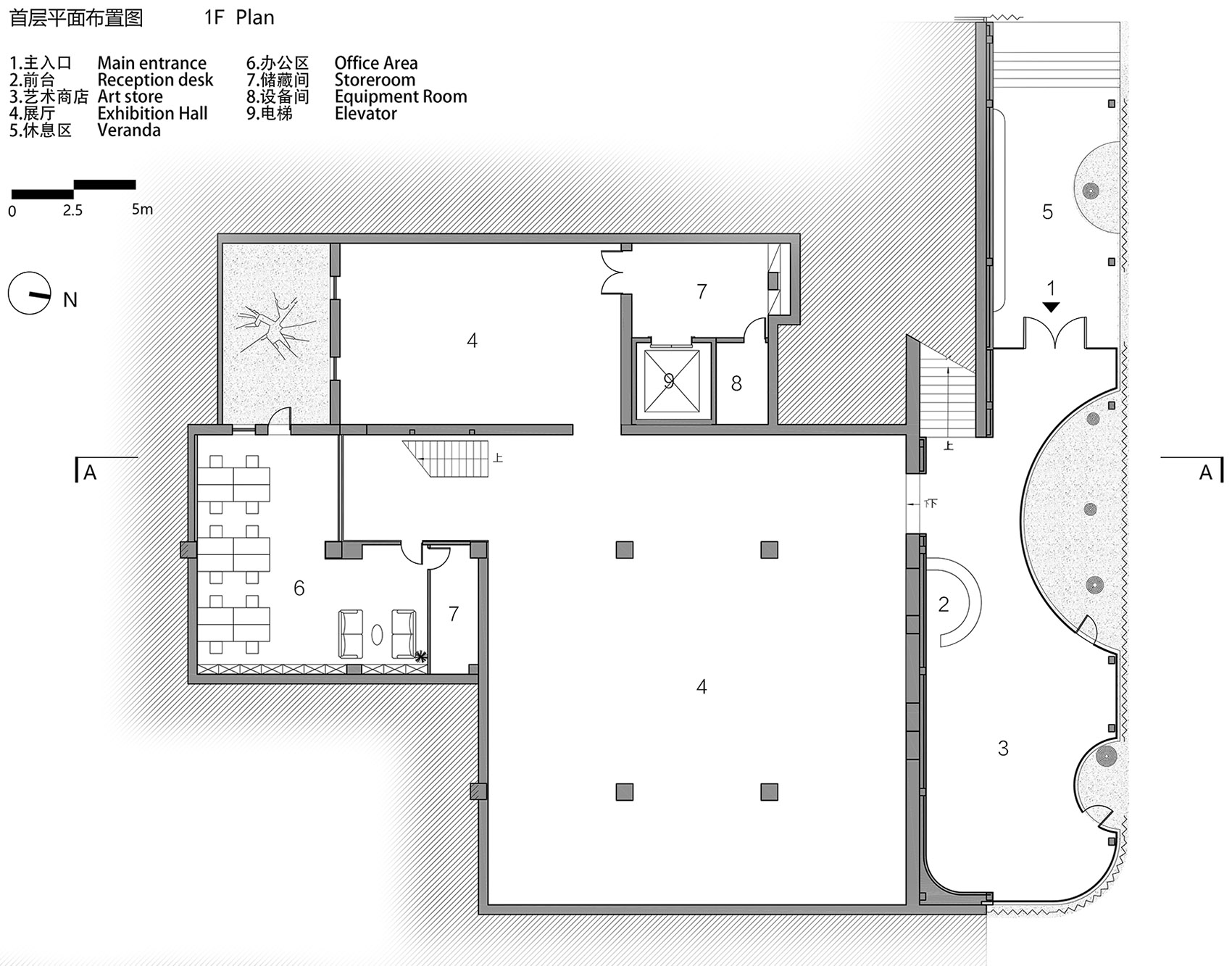
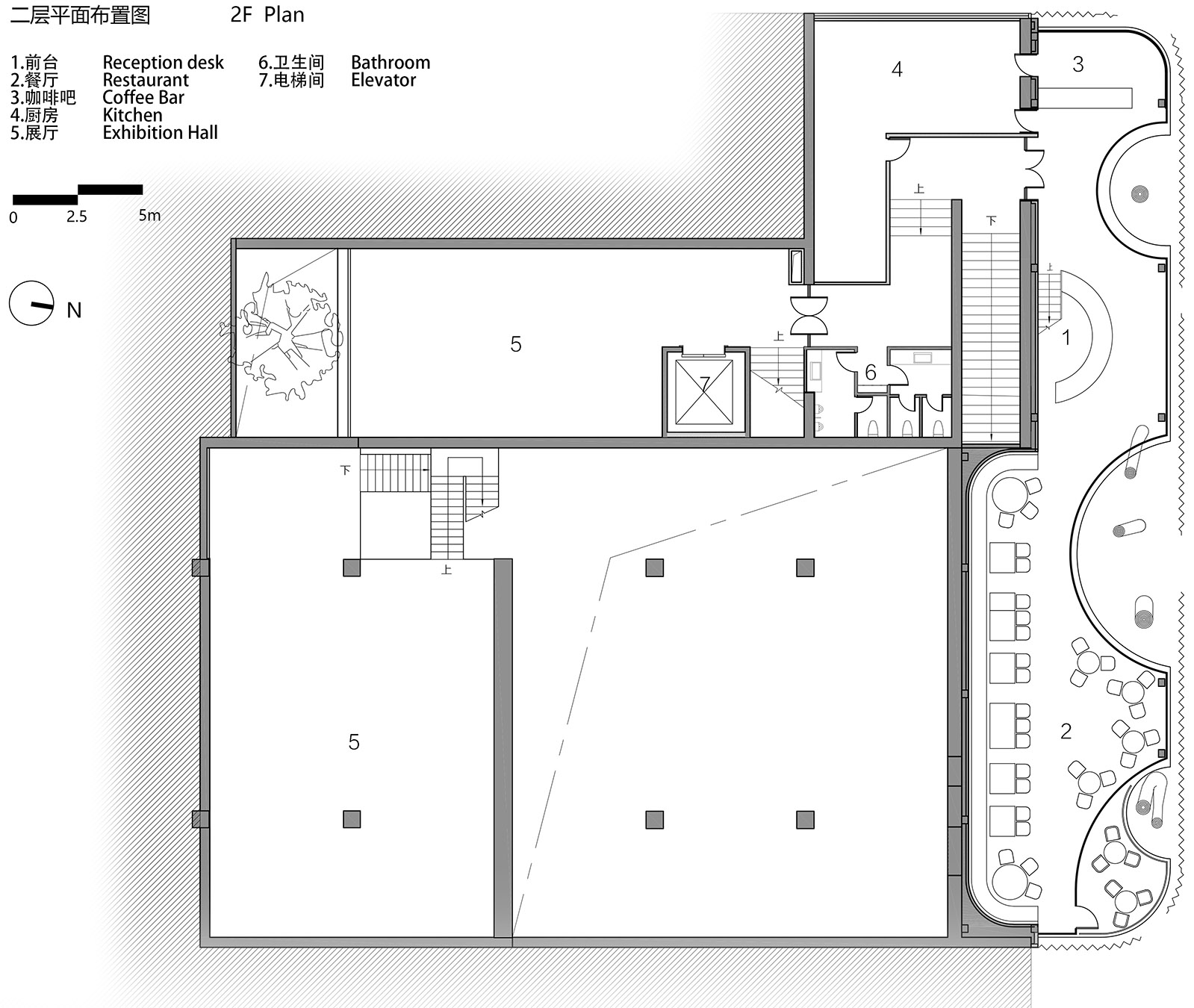
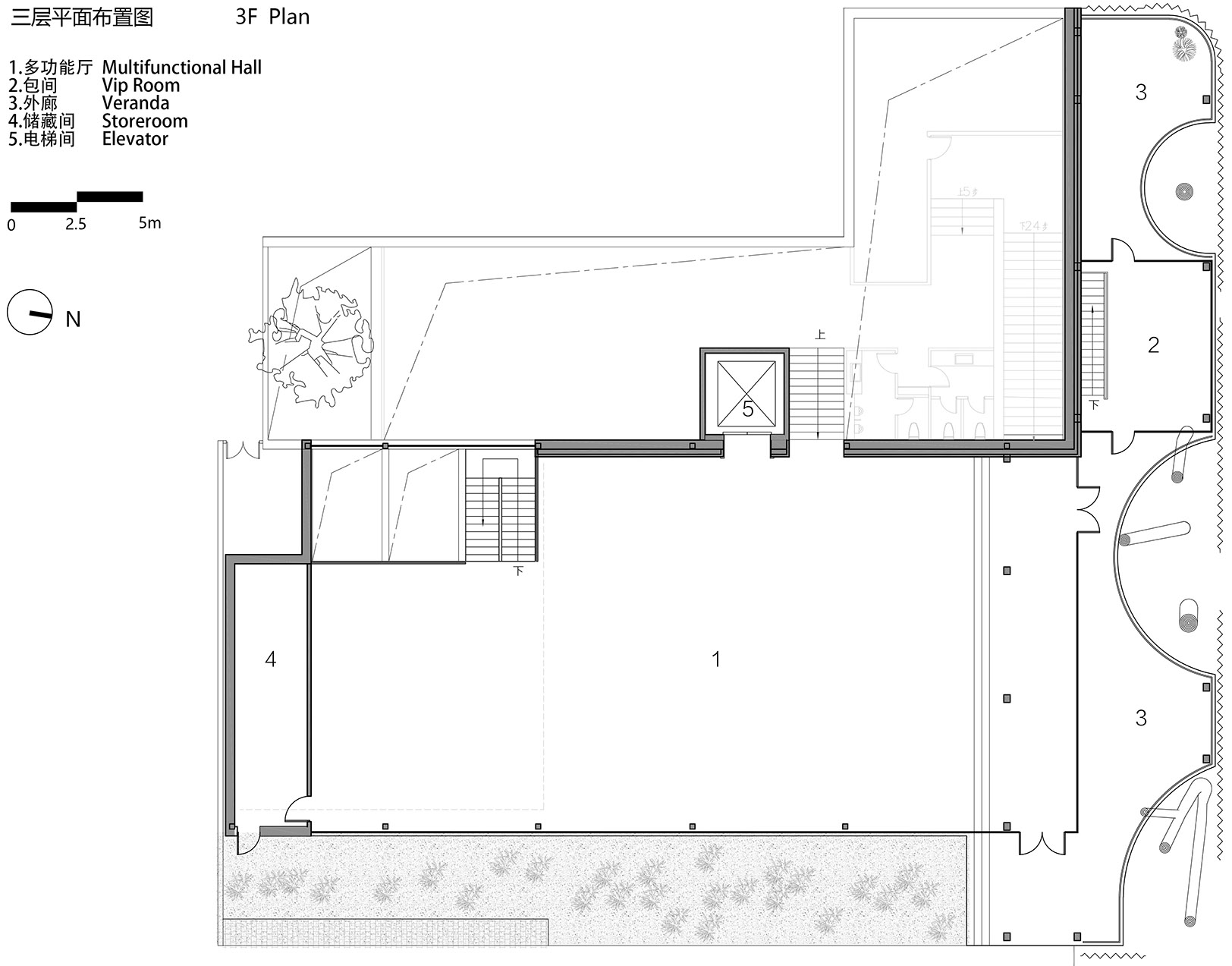
设计首先解构和整合了美术馆功能,在主展厅之外创造了新的公共空间(包括餐厅,衍生品商店,多功能厅,及休闲区等),形成了从自然环境-公共空间-展区的自然过渡。
The design team firstly deconstructed and integrated functions of the overall space, and created some new communal areas such as restaurant, art store, multifunctional hall and leisure area other than the exhibition hall, so as to enable smooth transition from nature to public spaces and to exhibition area.
▼建筑生成图解,generation diagram
其次,重新梳理整个空间的流线,原本的观展流线传统死板,单一路径使人在看完展后必须原路返回,不但枯燥而且上上下下带来的仪式感很多时候会让艺术空间和人产生强烈的距离感,所以在原有空间基础上拆改和增加了楼梯、电梯等,把观展流线改造成了一条循环流线,而如果要直接通往露台或者餐厅,也有两条顺畅独立的流线,路径不重复,看展即是令人兴致盎然的“游园”体验。
Besides, the designers reorganized the circulation routes within the entire space. The visiting route of the former exhibition space was conventional and monotonous, and visitors had to go back along the circulation route after appreciating exhibitions, which resulted in boring spatial experiences. Besides, up and down movement of visitors generated a sense of formality, which sometimes alienated them from the space. Considering those, the design team demolished and transformed parts of the original architectural space, and added staircases and elevators, thereby creating a loop-shaped route for visiting exhibitions. In addition, ARCHSTUDIO also designed two independent circulations leading to the terrace and the restaurant, which provide visitors with interesting experiences and let them feel like they are touring in a garden.
▼主入口,entrance
▼前台,reception area
▼室外连廊,outdoor corridor
建筑中退让出多个弧形庭院,将场地中原本的树木被完整的保留下来,庭院与树木塑造出建筑清晰的空间性格特征。艺术馆内的游走也是伴随树木而展开的,从树根上升到树梢,人与树的关系不断变化,有的地方甚至人需要低头才能穿过树枝走过去。树木也随着时间不断变化,空间与自然的结合给场馆带来无限的魅力。外立面采用半透明金属幕墙,好似一片揭开的帷幕。树仿佛从银色外立面中生长出来,和这些“帷幕”连成一体,既是环境的一部分,又是建筑的一部分。
The design team created several recessed arc-shaped courtyards, and completely retained the trees that already existed on the site. The courtyards and green trees together shaped a distinct spatial character for the building. As visitors wandering in the space, their interaction with trees varies. They encounter different parts of trees, from roots to tops, and sometimes need to bow their heads to walk under branches. Trees also keep changing with time. The perfect combination of nature and space gives the place great charm. The facade is clad in a translucent curtain of metal, making trees appear to grow out of it, blending into the environment and as well as the building.
▼餐厅,restaurant
▼弧形庭院保留树木,curved courtyards retained the trees
▼在室外连廊上可以与树木互动,interaction with trees on the outdoor corridor
▼树木与金属幕墙连成一体,trees grow out of the metal curtain walls
▼后院,courtyard on the rear
▼包间,private room
▼展览空间,exhibition area
最终,通过改造使原本传统的“黑盒子”美术馆转变成为自然的、开放的、友好的、鼓励沟通的多功能艺术中心。
Through the above-mentioned strategies, an originally conventional art gallery which resembled an enclosed box was perfectly transformed into a natural, open, intimate and interaction-evoking multifunctional art center.
▼夜景,night view
▼首层平面图,first floor plan
▼二层平面图,second floor plan
▼三层平面图,third floor plan
▼剖面图,section
客服
消息
收藏
下载
最近




























