查看完整案例

收藏

下载
Niclas Mäkelä
设计者在改造过程中特别注重对教堂内部功能的改进,以满足使用者的需求。例如,他们重新设计了俱乐部的侧翼音乐学校和小型幼儿园;小童子军们的空间被转移到了地下室;对教堂的咖啡厅进行了扩建并增设了一个厨房。
Verstas Architects对Lauttasaari教堂进行了翻修设计——该教堂是赫尔辛基最大的教堂建筑,也是芬兰现代教堂建筑的地标之一。该教堂建筑和其配套的钟楼位于Myllykallio山Lauttasaari的最高点,由建筑师Marja和Keijo Petäjä设计,并于1958年竣工,目前受到教会法的保护。这座教堂以其独特的外形诠释了建筑师人性化且富有表现力的设计理念。教堂的内部、照明设施和宗教文物均是由著名室内建筑师Annikki和Ilmari Tapiovaara设计。
▲建筑外观
© Niclas Mäkelä
▲教堂建筑和配套的钟楼
© Niclas Mäkelä
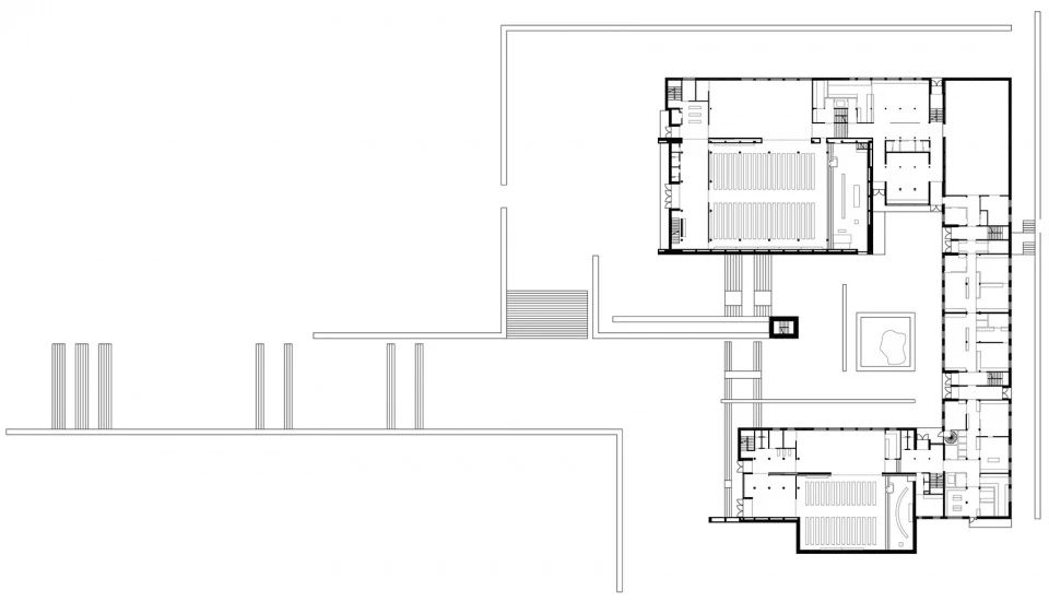
这座教堂建筑为两个不同的教会提供服务:Lauttasaari教会和名为Johannes Församlingen的瑞典语教会。因此,建筑中设有两个教堂大厅和教区活动大厅。此外,还设有俱乐部室、办公空间和运动空间。
▲入口处
© Niclas Mäkelä
▲教堂空间概览
© Niclas Mäkelä
▲现代化的结构和灯具
© Niclas Mäkelä
▲牧师台
© Niclas Mäkelä
设计者的改造重点是对教堂的技术结构进行翻新、将电力和空气循环系统更新至当前标准、安装现代化视听音响设备、采用LED照明技术。本次翻新工程尊重了建筑原有的设计风格,尽可能减少对原始外观的改动。
▲教区活动区
© Niclas Mäkelä
▲小型幼儿园
© Niclas Mäkelä
▲运动区
© Niclas Mäkelä
▲休息区
© Niclas Mäkelä
▲室外空间
© Niclas Mäkelä
▲教堂屋顶
© Niclas Mäkelä
设计者在改造过程中特别注重对教堂内部功能的改进,以满足使用者的需求。例如,他们重新设计了俱乐部的侧翼音乐学校和小型幼儿园;小童子军们的空间被转移到了地下室;对教堂的咖啡厅进行了扩建并增设了一个厨房。最终,俱乐部侧翼、教堂咖啡厅和教区大厅之间相互连通,中庭与室外空间相连,为这里的人们提供服务。本次改造使得当地社区的基础设施能够更好的运作。
▲夜览
© Niclas Mäkelä
项目图纸
▲区位
© Verstas Architects
▲首层平面图
© Verstas Architects
▲二层平面图
© Verstas Architects
▲东立面图
© Verstas Architects
▲剖面图
© Verstas Architects
Architects: Verstas Architects
Lead Architects:
Project Architects:
Client: Lutheran church in Helsinki
Program: historic building survey and renovation of Lauttasaari church.
Completed: 2021.
Area: 5000 m2
Location: Lauttasaari, Helsinki
Country: Finland
Photographs: Niclas Mäkelä
客服
消息
收藏
下载
最近





























