查看完整案例

收藏

下载
优雅高级,简约舒适
本案是华润城润府精装房改造项目,交房时硬装已完工,厨房和卫浴间全部装好,其余空间的地面已铺贴好,墙面则为大白墙,从技术层面考虑,软装设计的可发挥空间还是挺大的~
业主小姐姐是从英国留学回来的,看过了太多前卫、时尚的装修案例,自身审美也高,需求是除了厨房和卫浴间外都要改造!尤其是灯光和收纳方面。
步入室内,明亮开阔的客厅跃入眼帘,灰咖色木格栅的紧凑感和浅色纹理岩板 护墙板的疏朗感,构成了张弛有度的设计效果,打破空间的沉闷无趣,使家居生活更加惬意舒适。
自然舒适的灯光轻轻晕开,整个空间变得十分雅致休闲,身心放松、卸下疲惫,这里是一切温柔的开端。
时尚个性的黑白灰基底,穿插使用优雅的灰咖色,构成了客厅空间的色彩基础。电视背景墙富有层次,由大理石 木搁栅 混油护墙板构成,自下而上根据黄金比例进行造型设计。
坐感舒适的深灰色L型真皮沙发,搭配浅灰色窗帘和浅灰咖色几何图案地毯,在浅灰色地砖和背景墙的衬托下,有一种远离城市喧嚣的休闲氛围。
自入户玄关延续至餐厅,定制的白色烤漆柜门 黑钢构成的整面柜体,既是鞋柜 餐边柜 酒柜,又是墙面的装饰造型。
餐厅背景墙延续沙发背景墙的岩板 硬包材质组合,避免了单一材质的乏味。
主卧背景墙由咖色鳞纹硬包与雾霾蓝分缝硬包构成,以颜色巧妙做了功能分区,少而精的元素令卧室更具设计感和舒适性。
主卧背景墙半包围的造型也使室内洋溢着安全而温馨的氛围,搭配上方内藏的灯带和侧边的帽型吊灯,安睡好眠的空间浑然天成。
侧面定制的梳妆台也兼具床头柜的功能,外形延续整体现代简约的基调,以灰度传递精致生活方式。
女儿房套卫空间虽小,功能俱全。
家装设计应是在创造有温度的艺术品,或精致典雅,或简约大气,或热闹精彩,或隐秘安静。于都市繁华喧嚣之间,给自己一个停下来的时刻,认真观察生活中的美好。
▲原始结构图
改造前:
1、玄关面积小,收纳空间不足;
3、餐厅缺少餐边柜的空间,收纳不足。
3、主卧衣帽间较小,主卫不需要浴缸,两者可以协调分配。
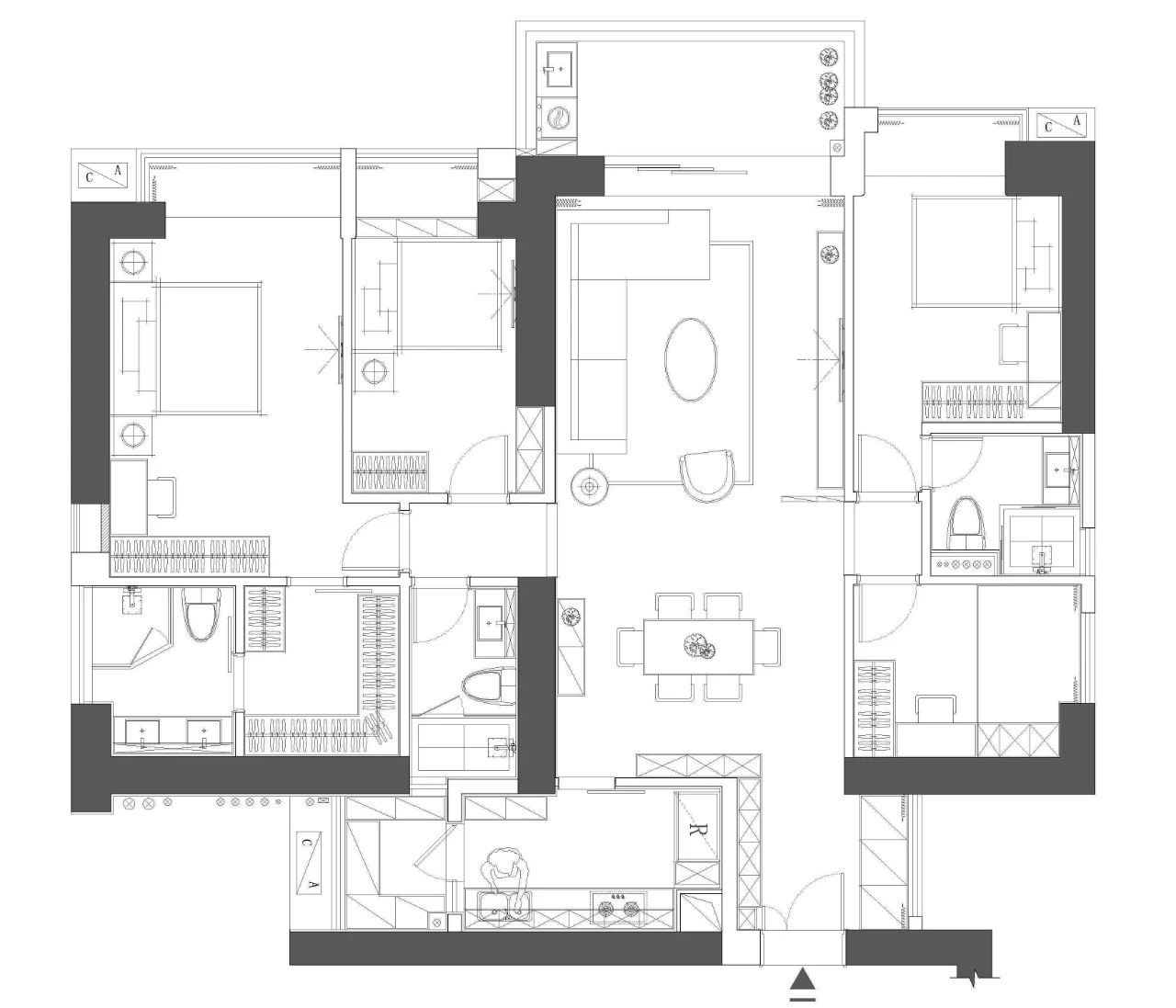
▲平面布置图
改造后:
1、取消玄关进入客厅的大门,改造周边墙体,增设入户玄关收纳柜,增加收纳空间。
2、在电视墙右侧增设屏风,化解一进大门直冲阳台的不利风水。
3、取消厨房平开门,加设推拉门,于厨房与餐厅连接处加设餐边柜,于厨房出口处加设半高的成品餐边柜,增加餐厅收纳空间。
3、拆除主卫浴缸,调整主卫洁具位置,缩小主卫空间并顺势增加衣帽间空间。
项目设计:深圳漾空间设计有限公司
项目地点:深圳南山华润城润府
项目面积:190平
装修风格:现代简约
客服
消息
收藏
下载
最近

























