查看完整案例

收藏

下载
如果你有幸在年轻时去巴黎,那么以后不管你到哪里去,他都会跟着你一生一世。巴黎就是一场流动的盛宴。
——海明威
项目保留法式那些浪漫风情的标志性符号仍极有辨识度,“融合”成了新的主题,细节的雕刻,让法式依然不动声色地释放吸引力和美的能量。
这被定义成”家”的场所,每一件物件的选择都有它独有的隐喻和日常性,当设计风格不再被定义所限制的时候,揉合在一起的场景所进发的情愫葛延开来,我们对这有着特殊含义的场所便有了新的情感需求。
01 ROMANTIC 浪漫清新
业主是珠宝设计师夫妇,在对家的理解和审美上有着很深的见解。设计师对空间的布局做了大的调整,以释放和优化出最佳的采光通风和动线,恰到好处的比例将法式以现代语言在空间中得以呈现。
设计师将玄关做了局部破口,这样一来使得这个空间变得灵动起来,主人在用餐的同时也能看到入口的情况,隔而不断。
P. 01
P. 02
P. 03
P. 04
法国人对别致的白色内饰情有独钟。将清新的白色背景与温暖的白色、奶油色和米色家具搭配在一起,营造出有趣的色调。
P. 05
P. 06
P. 07
法式轻奢褪去了传统法式的繁复、冗杂。项目整体空间以浅色为主色调,加上轻快的色彩搭配,金属、石材、丝绒、布艺等原色,将古典美融入现代美学中。
P. 08
P. 09
P. 10
P. 11
P. 12
奶油色为主调的公共空间,简约的线条配以意大利 B-B Tufty-time 蓝色沙发,白色的大理石壁炉,在客厅中扮演中优雅端庄的角色。柔美线条与硬朗材质的搭配,营造出现有的混搭空间。
P. 13
P. 14
P. 15
02SIMPLE - LUXURIOUS
简而奢
室内的公共空间采用大面积的鱼骨拼木地板,不同角度感受像光影下会跳动的音符。
西餐区椭圆的宝格丽石材餐桌摒弃多余装饰,营造简而奢的美感,功能与仪式感兼顾。
P. 16
P. 17
P. 18
P. 19
P. 20
• 03
SENSE OF RITUAL
仪式感
法式线条拱门的设计,两侧墙体挂满业主亲自创作的油画以及游历地球的回忆照,将走廊的仪式感拉满
P. 21
主卧空间墙壁的装饰线条,拉近镜头端详,隐约可见的卫生间极简门,通过细腻的手法,线条的巧妙处理,与背景形成统一。
P. 22
P. 23 家是情感的容器,也是存储人生当下这一时光的见证者。
P. 24
P. 25
P. 26
P. 27
P. 28
P. 29
• 04
PRIVATE ENJOYMENT
精致私享
双开门步入式衣帽间采用了镜面柜门与发光玻璃陈板,在这里,女主人可以展陈日常所设计的珠宝首饰,可以静下来梳妆打扮,是一个独享的完美精致空间。
P. 30
P. 31
P. 32
P. 33 设计师利用原泳池阳台的场地条件,使用马赛克地铺和现浇水磨石地台,打造成拥有植被的弧形法式露台。夕阳将这空间化成余晖的舞台,百叶缝隙里闯入,节制且热烈。
P. 34
P. 35
• 05
ANALYSIS
DIAGRAM
分析图
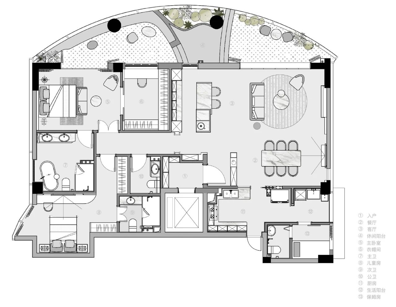
平面图 P. 36
INFO
- 项目名称 -
落日
法式浪漫之家
- 设计机构 -
ARKITAG STUDIO
有壹个设计事务所
- 设计总监 -
黄君虹
- 设计团队 -
黄珂毅 陈贻泉 李雅彬
- 项目面积 -
220㎡
- 项目地址 -
福建 厦门
- 项目摄影 -
1988 摄影
- 施工团队 -
北京阔达厦门公司
- 主要材料 -
IMOLA 瓷砖 迪科威逊 PU 线条
鱼骨拼木地板 马赛克石材
现浇水磨石 百色熊涂料 宝格丽石材
DESIGNER
黄君虹
ARKITAG STUDIO 设计总监
ARKITAG STUDIO 成立于 2017 年,同年联合创办厦门及首尔办公室。
我们专注建筑、室内、景观和软装的设计。
建筑与室内专业出身的我们,依托传统与现代,关注当下和在地,关注环境与人的共生,追求设计的本质,为业主提供设计与工程的最佳方案,更专注于项目的落地和真实的体验。
客服
消息
收藏
下载
最近








































