查看完整案例

收藏

下载
卡洛·斯卡帕(Carlo Scarpa)是20世纪意大利乃至世界建筑史上不可忽视的重要人物之一,他的设计根植于感性的物质想象,因而能够在满足功能的同时将艺术审美通过材料、工艺的承载进行表达。而时间和场地历史同样为他提供了丰富的灵感,使地域性的理念意识在其设计中得到充分的展现。
01
Casa Zentner
瑞士·苏黎世
艺术收藏家Savina Rizzi是卡洛·斯卡帕的好友和长期的合作伙伴,这处为她而建的住宅坐落于苏黎世湖畔,是卡洛·斯卡帕在国内建成的唯一一座建筑。占地约560㎡的场地与Doldertal区内的别墅群并行排列,独特的立面设计使其从周边环境中脱颖而出,但又在细节的表达中诠释了优雅且内敛的性格,回应威尼斯及日本庭园文化的精神内涵。
顺着小径进入住宅,视野的收放形成了具有起伏节奏的序列,卡洛·斯卡帕在室内外的空间中延续了有关材料对比的尝试,无论是混凝土基座与玻璃砖的组合、外墙边缘镀黄铜的处理方式,还是顶层覆盖的非洲硬木,均使访客充分感受到了一种创新意识的追求,进而丰富空间的体验与感知。
02
Balboni House
意大利·威尼斯
2017年底,Map Studio受托修复了由卡洛·斯卡帕于威尼斯设计的Balboni House,这座空间紧凑的住宅与Casa Zentner为同一时期的作品,因此在用材、建造和立面形态上展现出了一定程度的相似性。
住宅的入口是一个向外凸出的混凝土构架,抬高的平台划分了空间转换的边界,同时隐约可见内部暖色调的陈设。一层的客厅通过露台可以俯瞰室外运河景观,用于铺设地板的大理石和象牙色的立面抹面层呈现出了浓郁的威尼斯风格。
在后续的修复过程中,Map Studio尽可能地还原了卡洛·斯卡帕的设计构思,通过高光漆面的梨木家具、摆件、织物等细节塑造材质之间的碰撞与融合,为年久失修的住宅空间注入了新的生命力。
03
Casa Tabarelli
意大利·博尔扎诺
在博尔扎诺Corniano小镇的葡萄园内,隐藏着一座由卡洛·斯卡帕在1968年为Tabarelli家族设计的私人住宅,受到葡萄园布局形式的启发,他利用一体化的屋顶结构串联起高低不同的空间层次,使内部布局与起伏的地形有机结合,形成连贯的有机系统。
住宅内部的地面通过无缝拼接的石材增加连贯性和自由度,粉色、黄色、蓝色的天花板则使空间拥有丰富的表情,在光线的变化下,产生有趣的视觉效果。住宅内的门把手、滑动墙等细节设计融合了功能与艺术审美的追求,并通过统一的色调营造出和谐的氛围。
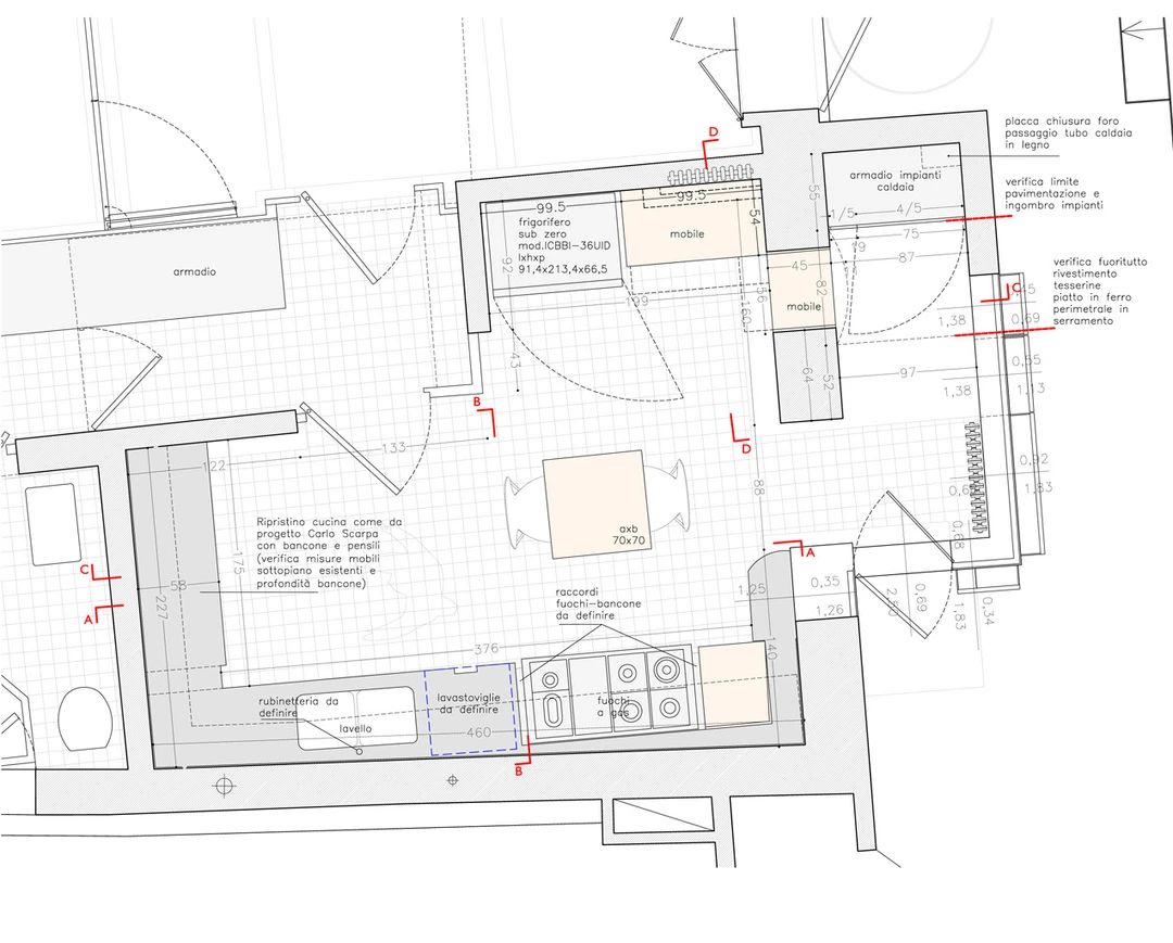
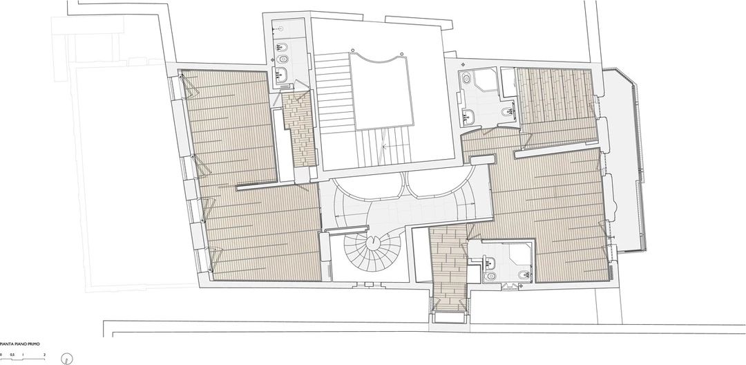
△项目图纸
客服
消息
收藏
下载
最近

























































