查看完整案例

收藏

下载
在人口密集的城市里
像是上帝的苦心安排。
——史铁生
简约的品质空间
空间属性的确立,从具体的生活方式入手思考。
设计师迎合居住方两位年轻夫妻的生活调性,营造静谧简约,且不失品质的空间。
灰色瓷砖通铺,配合木饰面营造温暖质感。设计师将空间打通,纳入阳台,形成一层敞开的公区关系,让动线更为流畅舒适,同时强化空间的沟通属性,让居住的过程变得更鲜活有趣。
明暗交错的艺术感
爱马仕丝巾装裱入画,空间富于温柔的艺术感。完全打开的空间关系也让阳光得以畅通地留存于内。
通过不同的色彩关系诠释功能的区分,在流动平面中划分层次感,从而空间呈现为“明-暗-明”的交错场景体验。
设计师善用元素形成不同功能区域间的联系。
在玄关处置入透光大理石增强空间感,同时埋下整体性的线索,让人在步入的过程中,目光随不时出现的透光大理石逡巡,引领向内部的结构。
灯具的选择也同样遵循着这一原则,粼粼光影散射而来,艺术漆的斑驳质感渐明,契合着空间元素的统一。
而石材地面与楼梯木质踏步的过渡,也暗示着随着阶梯步入二层,即将转入居住者的私密场域。
选择透明玻璃作为扶手,在相对逼仄的楼梯空间里,扩大感官上的尺度。
自一层衍射而来的光线映入,随空间的上升而逐渐黯淡,在极简化的空间里,设计师需要思考如何通过最自然的存在去建立空间的美感,比如光线的走向,或是结构间隔与透的关系,甚至是一个边角的处理……
材质的连贯性
以半墙的形式隔出卧室与更衣室的区分,同时不会破坏空间宽敞的视觉感受。
与一层客厅相同纹理的大理石隔墙,为空间注入流动的感染力,不再是纯粹的平铺直述,在极致的简约中,嗅查值得推敲的品质细节。
眠鸥宿鹭,阒然无声
在家中感受平静,抚慰奔波的纷繁
是设计私宅空间的意义
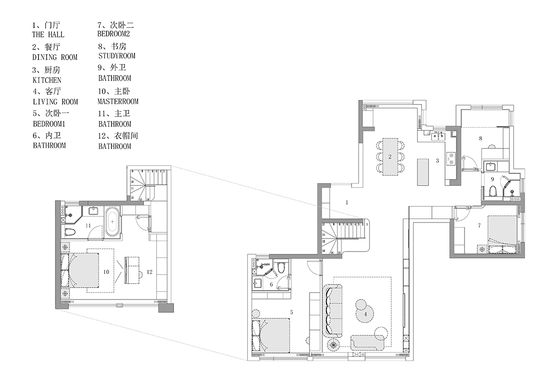
平面图
DESIGN PLAN
项目信息
ABOUT THE PROJECT
项⽬名称 | 阒然无声
设计公司 | 康居设计
项⽬地点 | 浙江·温州
项⽬⾯积 | 175㎡
主案设计 | 施强虹
参与设计 | 许如意 郑丽培 郑余达
项目摄影 | 吴昌乐
文稿来源 | 橙设传媒
设计时间 | 2021年6月
完⼯时间 | 2022年11月
主要材料 | 木饰面 地板 大理石 岩板
About
designer
关于设计师
施强虹
康居装饰设计 设计总监
About
company
关于设计公司
康居装饰始于2010年,12年始终专注于家居服务领域。通过对中高端人群生活方式的理解和洞察,感知用户真实的生活需求推出并不断迭代康居全案系统。让用户体验“专业、时尚、省心”的私宅定制服务。
客服
消息
收藏
下载
最近





























