查看完整案例

收藏

下载
夏至
整座建筑的形体和表面处理追求“含蓄的丰富性”,以期达到“朴实无华,生动多姿”的效果。以中国传统园林以实造虚以及虚实转换方法为参照,用虚空切挖实体,以实体创造虚空,用标高变化整合空间功能,合理调配疏密关系,并统一在可观看的界面中。
山中天艺术中心玄馆原为 751 园区内的工业厂房及其附属办公建筑,建成后成为山中天艺术中心的主力展馆。一期作为主展厅率先落成,主体内部东西两侧是混凝土柱,撑起 40mm 厚的混凝土折板屋顶,下面为近 500m2 的无柱空间。
▲山中天艺术中心·玄馆东立面
© 夏至
设计思路很简单:将原有无柱大空间做成主展厅,夹层下方为小展厅,上方为公共教育及办公室。主入口保持原位,以北为艺术品商店。四个功能分区都要独立封闭,以保证主入口到内院的路径畅通。
▲体块生成分析图
© 郭元清
▲大轴测图
© 李肖 郭元清
▲入口装置正轴测图
© 贾健睿 郭元清
▲从主入口右侧看大台阶入口和前台
© 夏至
▲囊出现在混凝土装置上方
© 孙海霆
▲从前台看见“囊”的一角
© 金秋野
▲从屋顶平台入口俯瞰楼梯间
© 金秋野
▲“巨石”中倒斗形采光井和隐在阴影中的形体
© 夏至
▲从主入口南侧看玄关空间
© 夏至
▲从商店看入口混凝土装置
© 夏至
利用空隙和零余部分置入一个混凝土的“巨石”,像空心的多孔结构,容纳门厅、照壁、楼梯间、洞口、前台、储物柜,连接并分隔四个象限,使各自独立又连通。并利用保留墙体形成纵横交错的洞口和两个不同标高的“通廊展厅”和“夹缝展厅”,其下容纳空调设备和库房,实现功能与形式的统一,并形成东西向和南北向的空间层次与观览节奏。
▲体块爆炸图
© 郭元清
▲商店空间中的平行墙片和通往“甲板”的洞口
© 夏至
▲“甲板”,大展厅与商店之间的夹缝空间
© 夏至
▲纵横交错的洞口,从大楼梯下的三角空间看“甲板”和大展厅
© 夏至
▲从大楼梯下的三角空间看第二跨洞口
© 夏至
▲门洞序列,从北向南看
© 夏至
▲建筑师之家的两层看台
© 金秋野
“狭缝画廊”作为空间制高点,通过原结构间脱开的 600mm 狭缝和一组三角形侧高窗采光,向西俯瞰大展厅,并在北端形成另一个多孔空间,成为序列的收束。邀请艺术家张小川设计发光艺术装置“腔体与演生”,从入口斜墙的孔洞中连通前台和楼梯间两个区域,强化了虚实结合的形态特征。
▲上:从甲板观看掺望台,
下:从大展厅内部仰望“甲板”和通往商店的洞口
© 夏至
▲上:通往夹层的楼梯;
下:从夹层近距离观看打磨处理的屋顶混凝土面层
© 夏至
▲从大展厅看“甲板”缝隙处的一线天光
© 夏至
▲上:序列墙壁使用的粗糙弹涂面层;
下:经发黑处理后的楼梯,连通一期和二期的门
© 夏至
整座建筑的形体和表面处理追求“含蓄的丰富性”,以期达到“朴实无华,生动多姿”的效果。以中国传统园林以实造虚以及虚实转换方法为参照,用虚空切挖实体,以实体创造虚空,用标高变化整合空间功能,合理调配疏密关系,并统一在可观看的界面中。
▲大展厅钢南侧一组钢结构旋转门
© 金秋野
▲下午从楼梯间射入玄关的光
© 金秋野
▲从商店透过洞口看大展厅
© 金秋野
▲从走廊透过夹层楼梯看“甲板”狭缝
© 金秋野
通过朴素的造型与多元材料选择,使新旧契合、制造空间与感官的层次,形成反复嵌合、多孔多窍的空间。利用角落、缝隙和零余空间“造园”,通过梳理复杂功能来创造复杂空间,在最小尺度内完成高密度建造,尽量保留原有大空间,这样一来,小而密的新建部分在大而疏的保留部分中穿行,以疏密对比表达对城市日常历史的尊重,这些历史曾经也是日复一日的现实,写进新旧更替的时空褶皱中。
▲树荫下的商店玻璃窗,从中看到平行墙和纵横交错的洞口
© 夏至
▲二层办公室内的圆窗和钢梁
© 金秋野
▲通往屋顶的轻钢阳光板楼梯间
© 金秋野
▲东广场前的一排文冠果树
© 夏至
项目图纸
▲总平面图
© 黄金妮
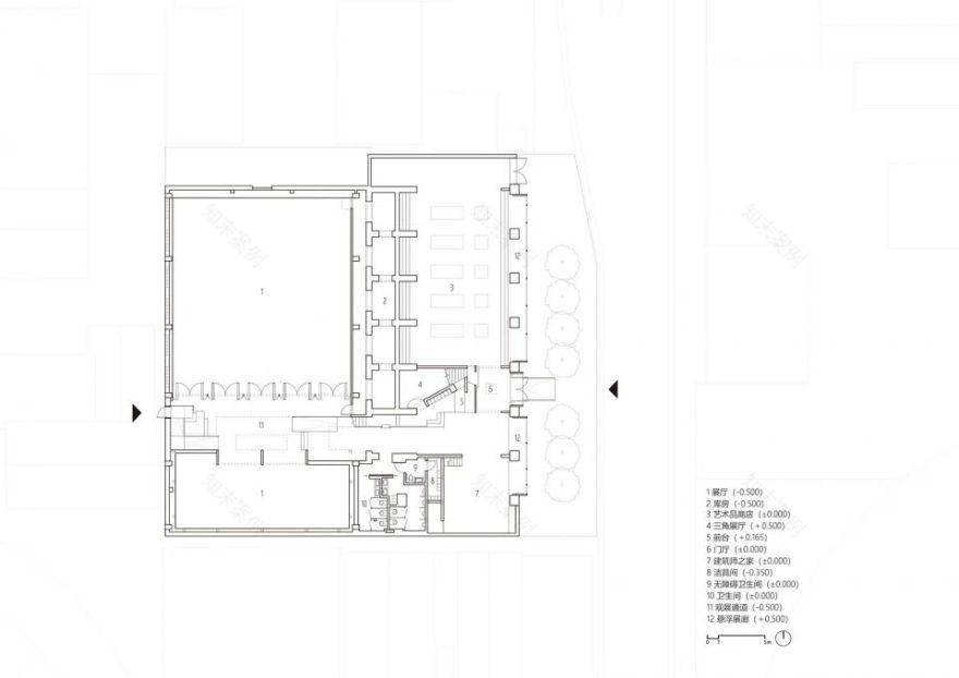
▲首层平面图
© 郭元清
▲夹层平面图
© 郭元清
▲东立面图
© 郭元清 贾健睿
▲1-1 剖面图
© 贾健睿 郭元清
▲2-2 剖面图
© 李肖 郭元清
▲节点
© 刘力源
项目名称:山中天艺术中心·玄馆(一期)
地点:北京市朝阳区 751 艺术区北 1 门
设计时间:2021.7-2021.10
施工时间:2022.4-2022.11
委托方:山中天艺术中心
公司所在地:北京市西城区展览馆路 1 号
主创建筑师:金秋野
设计团队:高蕾蕾、刘力源、常涛、石俊杰
现场建筑师:常涛、辛亦诚、张屹峰
施工图:北京世纪图景科技发展有限公司
施工团队:北京中和建工建设有限公司
基地面积:1240㎡
建筑面积:1240㎡
使用面积:1110㎡
客服
消息
收藏
下载
最近










































