查看完整案例

收藏

下载
闹市之中,一方天地
“快节奏的都市生活,让我们忘记了放慢自己的脚步,去感受身边的美好,所以,我们希望创造一个空间,让进来的人慢下来,去感知和发现我们身边的日常之美,这就是我们创造有·物的初衷…”有·物,位于泸州最繁华的万象汇商圈,记得初来现场时,感受不尽人意,整个环境采光通风极差,呆板的矩形空间让人一眼望穿,空间感受似乎被降到最低。如何在这样一个空间里打造一个清爽明亮,自然舒适,且又引人入胜的环境呢?有·物的设计师团队试图去发现它的另一面…
“The fast-paced urban life makes us forget to slow down our pace and feel the beauty around us. Therefore, we hope to create a space for people to slow down and perceive and discover the daily beauty around us, which is our original intention to create something…” Youwuu is located in the most prosperous vientiane huishang district in luzhou. I remember that when I first came to the site, I felt unsatisfactory. The lighting and ventilation of the whole environment were extremely poor. How to create a fresh and bright, natural and comfortable environment in such a space? A team of designers at yogi tried to discover the other side of it…
▼生活美学集合店,designer brand collection store
用“空间”表达空间|Use “space” to express space
如何打破呆板的空间?我们试图将原有空间进行分割,根据功能的不同,划分出错落有致的空间形态,使各个区域相互包容又稍有区分,形成丰富的层次感与趣味阅读点,避免了“一眼望穿”的乏味感受。而当你走进有·物,穿行于其中,你会慢慢探索和感知到空间中各个可行,可望,可停的阅读点…
▼轴测图,axon
How to break inflexible space? We try to divide the original space, according to the different functions, divided into patchwork space form, so that each area is inclusive and slightly different, forming a rich sense of hierarchy and interesting reading points, to avoid the boring feeling of “a glance through”. And when you walk into something, when you walk through it, you will slowly explore and perceive each feasible, prospective, and stop-reading point in space…
▼入口空间概览,entrance
▼一层空间,1st floor space
▼丰富的层次感与趣味阅读点,a rich sense of hierarchy and interesting reading points
“不装饰”的装饰|”Unadorned” decorations
很多人说“轻装修,重装饰”,看似简单的一句话,却并非只是单纯的摆摆饰品而已。相比在室内堆砌装饰,其实我们更乐于推敲空间本身,无论是空间关系,尺度比例,材质色彩以及灯光,其实比一个装饰造型更能触动观者。而这也是我们希望通过有·物传递出的设计观。
A lot of people say “light decorate, heavy adornment”, look be like a simple word, it is not pure however just place adorn article. Compared with interior decoration, we are more willing to study the space itself. In fact, no matter it is the spatial relationship, scale and proportion, material and color, and light, it can touch the audience more than a decorative model. And this is what we hope to convey through youwu.
▼错落有致的空间形态,forming a rich sense of hierarchy and interesting reading points
▼轻装修,重装饰,light decorate, heavy adornment
与传统门店展示不同的空间体验|A different spatial experience from traditional stores
开家居店并不稀奇,但怎么开出一个人人都喜欢并且想要打卡的家居店呢?设计师希望将有·物打造成一个灵感之家,你可以在这个“家”里随逛随买随拍照,还能够从空间,色彩,饰品中获取搭配灵感的来源,又或者,当你走累了的时候,能来这个“家”喝杯下午茶…而这个“家”中每一个生活的角落,都由设计师悉心挑选和摆放,让每一件器物在不使用时,单单放着就很好看,而这个“家”生活中的日常细节,都将让人心生感动…
It’s not uncommon to open a home furnishing store, but how can you open a home furnishing store that everyone loves and wants to clock in? Stylist hope will have · content makes the home of an inspiration, you can be in this “home” along with ramble in buy along with photograph, still can get collocation inspiration source from space, colour, act the role of article in, or, when you are tired, can come this “home” drink cup of afternoon tea… And this “home” the corner of every life in, choose carefully by stylist and put, when letting each implement is not used, putting only very good-looking, and this “home” the daily detail in the life, will let human heart give birth to move…
▼从空间,色彩,饰品中获取搭配灵感的来源,get collocation inspiration source from space, colour
▼商品展示架,product display
设计中的“亲生物原则”|”Biophilia principle” in design
在设计中,与高档材质相比,我们更愿意强调材质的自然,环保与健康。我们遵循自然美学的理念,摒弃材质与造型的堆砌,以纯粹的空间形体与乳胶漆,实木饰面,实木地板,人造石这些最简单常见的材质搭配,在周遭闹市中构建一个安然,静谧,又不失精致的“家”。有·物,在这个城市的中心为大家带来了片刻宁静与感动;置身于有·物,美好的事物会触动你的视觉,听觉,嗅觉与触觉,而生活的灵感也将在你的心中慢慢生长…
Compared with high-grade materials, we prefer to emphasize the nature, environmental protection and health of materials in the design. We follow the concept of natural aesthetics, abandon the accumulation of materials and shapes, with pure spatial form and latex paint, solid wood veneer, solid wood flooring, artificial stone, the most simple and common material collocation, to build a safe, quiet, yet delicate “home” in the surrounding downtown. Youwuu, in the center of the city, brings you a moment of peace and touching; Put yourself in the presence of things, beautiful things will touch your sight, hearing, smell and touch, and the inspiration of life will grow slowly in your heart…
▼遵循自然美学的理念,the concept of natural aesthetics
▼细部,details
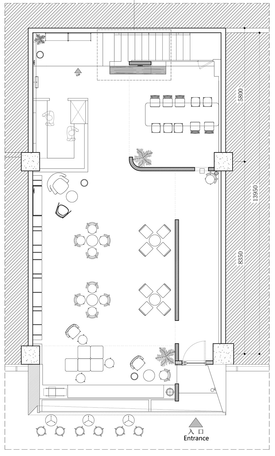
▼平面图,floor plans
客服
消息
收藏
下载
最近




















