查看完整案例

收藏

下载
王伟实
民宿集群建筑以厚重夯土质的外墙延续了围屋围合的形制,作为一种呼应,室内营造的起点源自围屋的色彩线索。龙南地处赣南,气候温宜,是一座以客家围屋知名的城市。渔仔潭围民宿集群建筑经统一规划设计,以围院形制及夯土材质外墙呼应相邻的渔仔潭围屋。建筑各单体的室内营造交由不同的运营品牌,本项目为其中过云山居单体的室内空间营造。
▲主要客房空间概览
© 王伟实
色彩:围屋的类比
作为一种防御性聚居的空间模式,围屋内外有着戏剧性的区别。与外部沉默严肃的高大立面不同,渔仔潭围屋内部以木构重檐回归日常尺度。生活气息以特别的红色墙面涂装标识。这一来自赣州红土地质的色彩,成为对安定居所的认知。与漫山绿意反差极大,红色以鲜明的对比描绘人居生活的历史观念,是根植风土的栖居诗意。
▲传统建筑的红墙与木构重檐
© 王伟实
民宿集群建筑以厚重夯土质的外墙延续了围屋围合的形制,作为一种呼应,室内营造的起点源自围屋的色彩线索。设计引入一组红色的材质,包含了红色的水磨石,红褐色的喷砂覆层,并搭配夯土涂料墙面,木饰面及黑色地砖,以抽象块面的方式,组合构成了室内空间的基本框架,将源自围屋的空间认知,在当代的居住体验中转译呈现。
色彩转译建立了一种类比关系,将红色与夯土所标识的围屋内外及对应的对居住和自然的认知,带入当代语境,营造仅属于此地的居住体验;材质组合的重构也以围屋为蓝本续写着当代情境:不再受制于防御的围屋外墙被瓦解,从这些立面开孔中,红色的居所破墙生长而出,面向山野自然,携带源自土地的栖居记忆,以鲜明的姿态建立属于当代的,开放的乡野闲居体验。
▲公共区域-入口处的茶室
© 王伟实
▲公共区域-多功能厅
© 王伟实
▲公共区域-咖啡酒吧空间
© 王伟实
空间:居所的拼贴
区别于传统酒店横向布置模式,设计以面朝景观的纵向起居旋转了客房的空间方向。通过将红色水磨石体量构成的丰富起居活动场所嵌入拼贴至客房空间中,建立了面向景观丰富的空间层次。
▲设计策略 A
© 上海可空建筑设计工作室
▲设计策略 B
© 上海可空建筑设计工作室
▲设计策略 C
© 上海可空建筑设计工作室
▲一层套房卧室
© 王伟实
▲一层大床客室内侧看向半室外空间
© 王伟实
▲半室外空间
© 王伟实
▲半室外空间看向室内
© 王伟实
在一层,客房与庭院的边界,被放大为一组灰空间;结合自内二外下降的地势,置入一组嵌入地面与台阶整合的红色水磨石体量。在标准客房,这一体量构成的下沉空间成为围坐的茶饮休闲场景。有顶无窗的灰空间为南方温热气候中的建筑提供了舒适怡人的半户外休憩场所;在家庭套房,灰空间横向展开,在立面较封闭一侧,地面高低进退构成一套供儿童嬉戏玩耍的场所;在开敞一侧,红色体量向景观伸展,并形成一个面向山野的无边泳池。
▲一层大床客房轴测
© 上海可空建筑设计工作室
▲一层套房轴测
© 上海可空建筑设计工作室
▲二层大床客房轴测
© 上海可空建筑设计工作室
▲二层套房轴测
© 上海可空建筑设计工作室
▲二层大床卧客房房中茶室
© 王伟实
▲二层套房卧室
© 王伟实
▲二层套房半室外活动空间
© 王伟实
在二层,阳台被重新定义。红色水磨石以地台的方式,将阳台变成具有空间潜力的“飘窗”空间。在标准客房,阳台面宽的一半被纳入室内并整合为围坐空间,檐口下压和地面提升让这里尺度近人,与二楼高敞的坡顶客房空间对照,形成房中房,在房间中构筑了一个茶室;在家庭套房,高出地面的水磨石地台在室内沿窗边形成一个可坐的矮窗台,而在室外侧与下压檐口形成一个水平向的活动空间,地面高低进退形成趣味性的儿童沙坑和景观泡池,将阳台转变成了家庭室。
▲二层套房半室外活动空间由室内望向景观
© 王伟实
▲客房夜景
© 王伟实
抽象几何的红色水磨石作为一种异质空间元素,被拼贴至客房的空间序列,打破对空间边界,阳台庭院等空间元素的类型理解,创造新的空间可能和场所想象。位于建筑与自然山水的边界,抽象的红色构建了源自围屋印象的内外的连接,使围屋这一历史想象成为当代体验的一部分。
项目图纸
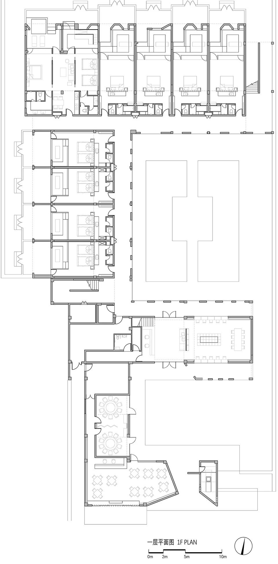
▲总体一层平面
© 上海可空建筑设计工作室
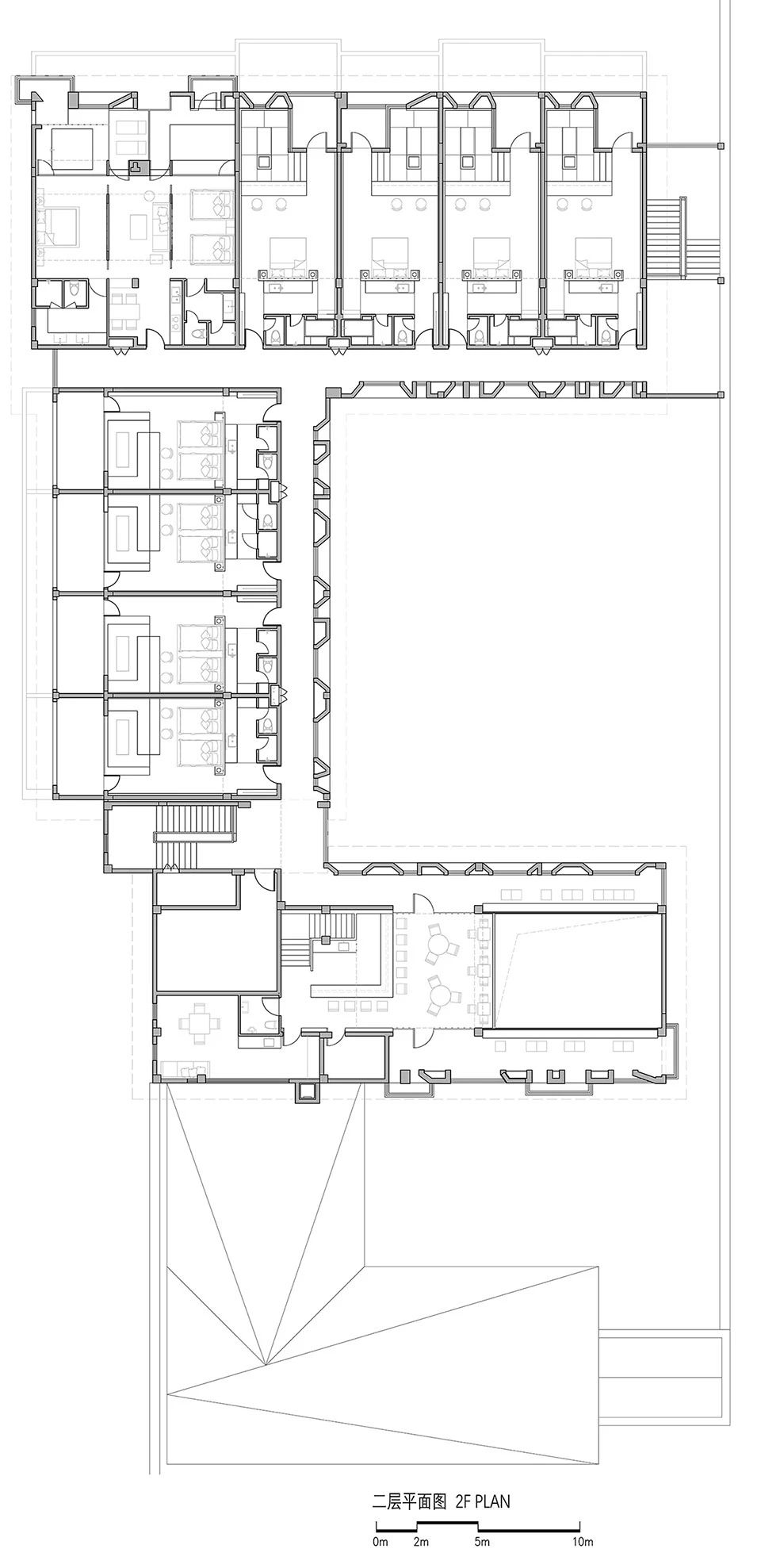
▲总体二层平面
© 上海可空建筑设计工作室
▲大床客房房平面
© 上海可空建筑设计工作室
▲双床客房平面
© 上海可空建筑设计工作室
▲套房 1 层平面
© 上海可空建筑设计工作室
▲套房 2 层平面
© 上海可空建筑设计工作室
▲大床客房剖面
© 上海可空建筑设计工作室
▲双床客房剖面
© 上海可空建筑设计工作室
▲套房剖面
© 上海可空建筑设计工作室
项目名称:过云山居赣州龙南宿集室内设计
项目类型:民宿酒店室内设计
设计方:上海可空建筑设计工作室
项目设计:2021.4
完成年份:2022.12
设计团队:王伟实 丁晨 李宁 常曦雯
项目地址:江西省赣州市龙南市渔仔潭
建筑面积:1426㎡
摄影版权:王伟实
合作方:建筑设计及施工图深化设计:杭州新华建筑设计有限公司 / 项目顾问及设计总控:杜江
客户:过云山居民宿酒店/龙南市渔仔潭围民宿小镇旅游开发有限公司
材料:红色水磨石/ 棕红色喷砂覆层/ 夯土质感艺术涂料
品牌:吱音家具/日朗门窗
客服
消息
收藏
下载
最近


































