查看完整案例

收藏

下载
“ 空间之本然具有精神与意志。”
—— 路易斯﹒康
IFUNSPACE创意中心,其设计核心定义为模块式办公的空间策略,致力于打造一个自然舒适、高效协同、且更具活力的现代办公环境。
基于项目自身的原始建筑条件和空间需求,前期通过对空间功能、员工行动路径和协作模式进行了大量实地调研与数据模型分析,提出并落地实施 模块式办公的空间策略。这一策略十分精准地覆盖了团队现阶段的多维需求,最大化地利用有限的物理空间,有效促进员工之间的协作和交流,同时也能满足日常接待客户和洽谈合作的商务需求,形成一个高效循环的能量场。
#01
BOX [盒子]
强有力的功能纽带
此办公空间改造前是一家舞蹈室,主入口处于相对隐蔽,内部空间呈长条形状。经过设计团队的多次实地考察调研和整个空间的平面规划深入分析,对本项目进行大刀阔斧的空间改造。
主入口和逃生门的位置互相对调,主入口移到了更为显眼的位置,方便客户来访与企业门头的对外宣传展示。
“我们希望尽可能作出一些突破,不同于传统办公空间的四平八稳。”主创设计说道。
入口处特别置入了一个极具质感的灰色实体“盒子”,引发视觉形成聚焦。方盒子作为一个强有力的功能纽带,将开放的内部空间一分为二,左右分别为公司的两个事业部,实现了空间动线的分流和循环。办公室其余部分是五个独立的功能空间于横向逐一排列,满足接待、洽谈、茶歇、会议和独立办公的需求。
盒子正面根据公司的办公属性设计了一个黑色的LOGO墙,采用方块堆叠和穿透的手法,整齐排布的氧化铝板加强了盒子的边界,黑白对比强烈的第一印象令人过目不忘,同时亦突显了IFUN数字专业团队的工作特性,展现出IFUN团队的设计态度以及对设计细节的极致追求。
这个看似简单的“盒子”,由外至内兼具着多种复合功能属性,对外是企业形象墙,对内承担着展示柜、物料间、手工台、文印等强大的收纳、储藏、展示功能。创意盒子替代了传统的隔间和定制柜,使常规沉闷的办公空间更有趣味性,减弱了密闭空间的压抑感,自由通透,灵动简洁,现代高效。
#02
现代办公
良好高效的现代办公体验源于空间的设计语言和巧妙的平面布局,更源于贴心的细节设计。
公共办公区域采用开放式的格局,分布逻辑十分清晰,去除了工位之间的屏风,在靠近前厅的区域设置了少量低矮的格挡,与前厅区域形成半区隔,提高了员工之间日常工作交流的便捷性。
办公桌具备电动升降的功能,使设计团队成员根据自工作习惯和活动需求,能自由切换常规办公和站立式办公,于繁忙的高密度工作循环中提供了一种更为健康的工作方式的选择,友好务实。
在开放办公区域,大面积采用环保的微水泥涂料搭配素色地毯,简单细腻;墙面设置了一处可反复书写擦拭的环保工作面板,便于日常设计小组进行头脑风暴或讨论方案使用。办公空间的材料选择以吸音、环保和健康为前提,黑白灰三色的比例互为衬托,相得益彰,相对克制的设计更能释放出安静的空间底色,创造出自在栖游的现代简约办公新体验。
独立的会议室明亮通透,完善配置了专业的多媒体设备,并精心增设了吸音地毯和聚酯纤维吸音板,减弱声音的对外传播,满足日常开会汇报等模式亦不妨碍公共办公区的日常工作。
公共办公区靠窗的位置视野极佳,片片黛绿无限延伸,令人心旷神怡。美好的景观应该是共享的,于是特别设计为一个多动能的高吧台,令人自然而然地沉浸于城市风光中,模糊了内外界限,自由轻松,营造快乐工作的恣意时光。
#03
自然舒适
光影律动的栖息地
茶歇区位于整个办公空间的中间位置,以自然温暖的原木色为主调,与办公区的黑白形成鲜明的对比。注重细节,通过多样化的材质来体现空间的品质感,主要材质采用抗污和环保兼备的自沉式LVT搭配桦木海洋板,功能与美观兼备,为员工打造更为友好的办公环境。
现代化的办公环境,除了高效协同的物理空间,如何创造条件提供精神栖息地,也是一大设计重点。保留大面积的窗景,引入自然光线,轻松舒适的氛围蔓延开来,随光律动,彷佛置身于大自然,适度的松弛开放更有利于激发创造力,空间能量持续流动且温润平衡。
“光给予一切存在,所有自然的材料,
就像山峰、溪流、空气,
甚至我们的存在都是由光组成的,
这些褶皱的黑色体量就是材料的投影,
独立茶室,可用于日常接待客户或休闲独处。空间延续了茶歇区的木质调性,搭配藤编的家具和简约设计感的灯具,自然明亮且舒适愉悦,设计特意将茶桌的高度降低了5公分,以更符合泡茶者的操作习惯,阵阵茶香氤氲,静谧清幽,增强了人与空间之间宁静的对话。
SVP独立办公室,以现代极简黑白为主,满足独立办公的日常需求,明净的玻璃窗带来充足的阳光浸润,节约能源绿色环保,结合注重人体健康的细节设计,缓解了创意工作的高强度长期输出对身体带来的疲惫感,个性化的配置以使用者的需求为主:采用冲孔石膏板搭配可升降座椅,白色极简艺术收纳边柜,配备专属的衣橱...设计的细节将空间提升,交织的光影,引发更为多元广阔的设计探索。
#04
自然已然
IFUNSPACE 创意中心
连接创造空间,让空间服务于人。壹梵壹筑打造的全新服务型办公空间适应各种现代化的办公场景,正以灵活的办公模式释放空间的无限能量与活力,同时也符合当今室内空间设计注重关注员工精神需求的人性化设计的大趋势。未来,IFUN将继续从心出发,坚定地塑造出更多更美好的空间。
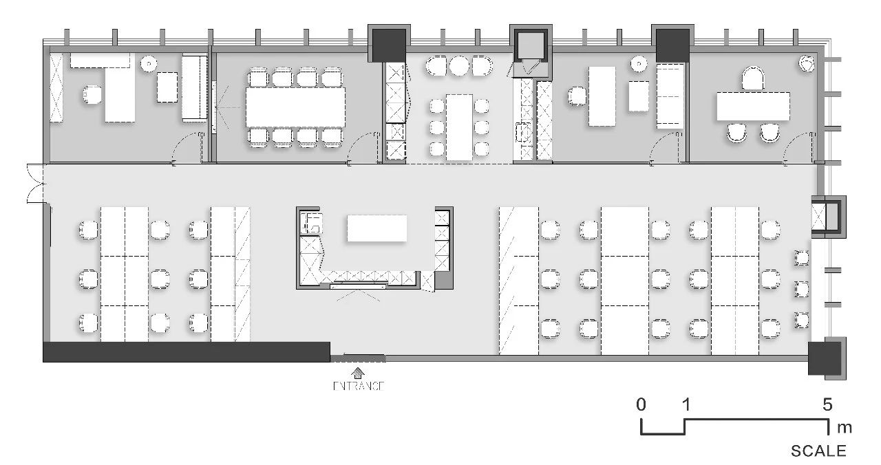
项目平面图
项目信息
坐落地点:中国 深圳
建筑面积:300㎡
设计时间:2023年2月
完工时间:2023年5月
设计公司:深圳壹梵壹筑设计
设计人员:Teen Chen、Eden Liu
主要建材:微水泥、氧化铝、桦木海洋板、地毯、LVT地胶、吸音板
项目摄影:小乐
IFUNSPACE壹梵壹筑,是一家专注于为企业精准构建一体化办公空间解决方案的专业设计公司。设计团队深耕于设计行业十余年,擅长创造与研发,致力于利用数字专业新技术赋能设计,成立至今已与国内多家头部知名科技和金融公司达成长期友好合作,服务范围涵盖咨询、调研、策划、设计、施工、采购等领域。
客服
消息
收藏
下载
最近































