查看完整案例

收藏

下载
© S P 空间的诗学
整个室内空间采用了红砖与白墙的搭配。保留一棵树,让自然光进入室内,尽量使用更接近土地颜色的立面,表达出对自然的亲和。在设计的想象中,人们在这个空间里生活也是更多的接受自然资源对人的馈赠,而不是制造更多人工的东西来建立你的生活,给自然留出进入人生活空间的余地。
以“自然、自由与时间”唤醒生命,将空间与时间的留白赠予生活本身。
——蔚见
▲项目概览
© S P 空间的诗学
秉承着这样的主张,蔚见旧工厂迎来新的变革——蔚见生活馆。历时半年多,样貌大改变。虽然从外面看不出什么,走进馆内便可看到新的红砖建筑。
▲入口
© S P 空间的诗学
来到入口处,穿过一片平静的水面,水中有一颗郁郁葱葱的大树。光不时透过树叶,在墙上留下了斑驳的树影,随着时间推移,树影也在慢慢移动。
▲入口处的水面
© S P 空间的诗学
穿过这片宁静我们来到了建筑内部。
▲首层入口内部
© S P 空间的诗学
▲入口空间局部
© S P 空间的诗学
▲楼梯间
© S P 空间的诗学
▲楼梯间细部
© S P 空间的诗学
▲二层展厅概览
© S P 空间的诗学
整个室内空间采用了红砖与白墙的搭配。保留一棵树,让自然光进入室内,尽量使用更接近土地颜色的立面,表达出对自然的亲和。在设计的想象中,人们在这个空间里生活也是更多的接受自然资源对人的馈赠,而不是制造更多人工的东西来建立你的生活,给自然留出进入人生活空间的余地。
▲红砖与白墙的搭配
© S P 空间的诗学
垂直的承重砖结构和平行的白色墙面加强了空间的切割,也让空间层次更加分明,有一种类似“经纬交叉”的秩序感。
▲层次分明的空间
© S P 空间的诗学
红砖白墙,水泥勾缝,简约适度,非常有生命力。设计师也希望建立起有趣的对话,带来不一样气息的叙述,却又不完全脱离原本的生活。
▲空间细部
© S P 空间的诗学
改造旧建筑的最大挑战,在于如何融合新旧,如何在赋予它们新生命的同时,又保存了它们的老灵魂。
▲场地原状
▲改造后效果图
© S P 空间的诗学
蔚见生活馆位于顺德的龙江镇,这里是家具产业集群地。龙江镇因江水曲折迂回、势若蟠龙而得名,在唐代已有稠密的居民点,而今则是大名鼎鼎的“中国家具制造重镇”,是全国规模最大的家具原材料生产和集散地。因着成熟的家具制造环境,蔚见也希望通过在生活馆营造生活方式从而擦出新的火花。
▲展厅一瞥
© S P 空间的诗学
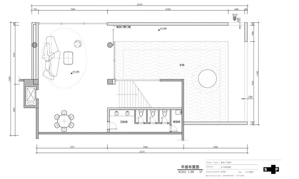
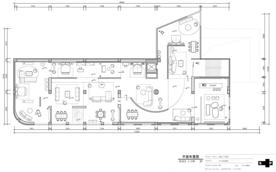
项目图纸
▲一层平面图
© S P 空间的诗学
▲二层平面图
© S P 空间的诗学
项目名称:蔚见生活馆
项目类型:商业空间
设计方:S P 空间的诗学设计事务所
完成年份:2023 年 5 月
设计团队:刘宗亚团队
设计师:刘宗亚、张瀚
项目地址:广东省佛山市汉格家具第一分公司(三联路 16 号)
建筑面积:800㎡
摄影版权:S P 空间的诗学
客户:HIK / VEIJ
材料:艺术涂料,木材
品牌:VEIJ
客服
消息
收藏
下载
最近



































