查看完整案例

收藏

下载
过去十年,成都城市持续向南生长,各类公共建筑及住宅伴随着新区的发展而建设,包括各类景观绿道也在城市边缘扩张,本项目即位于成都天府新区核心区绿道内,希望通过参数化设计实现绿道中的一处大地艺术。
▼项目鸟瞰,aerial view ©存在建筑
In the past ten years, Chengdu have continued to grow southward, and various public buildings and houses have been built along with the development of new districts, including various landscape greenways that are also expanding at the edge of the city. This project is located in the greenway of the core area of Chengdu Tianfu New District. A land art in the greenway is constructed through parametric design.
▼项目概览,overview ©存在建筑
智谷云廊位于在成都天府新区,兴隆湖旁边的鹿溪智谷绿道内,是智谷绿道内的核心景观节点。空中廊道主体结构为钢结构,长300米、宽4米,穿行在草地、树林和湿地之间。
Cloud shadow gallery is located in the Tianfu New District of Chengdu, in the Luxi wisdom valley Greenway next to Xinglong Lake, and is the core landscape node in the wisdom valley Greenway. The main structure of the cloud shadow gallery is a steel structure with a length of 300 meters and a width of 4 meters, which flow among grass, woods and wetlands.
▼项目位于兴隆湖旁鹿溪智谷绿道内,located in the Luxi wisdom valley Greenway next to Xinglong Lake ©存在建筑
▼穿行在草地、树林和湿地之间,a steel structure flows among grass, woods and wetlands ©存在建筑
整个桥体在笔直高耸的桉树林中穿梭,这种线性是人工对自然恰如其分的介入,但这种介入是轻微的。要在有「冲击力」和「微介入」之间取得平衡是很难的事情,所以「克制的介入」是我们对这个场所和项目理解的设计伦理。
The cloud shadow gallery spans in a eucalyptus forest. This linearity is an artificial intervention in nature, but the intervention is gentle. It is very difficult to acquire a balance between “impact” and “micro-intervention”, so “restrained intervention” is our design ethics for understanding this place and project.
▼整个桥体在笔直高耸的桉树林中穿梭,the cloud shadow gallery spans in a eucalyptus forest ©存在建筑
远望由整体性及线性带来动感和冲击力,近看有细节,起波澜。远望时,其整体性及线性带来动感和冲击力,近看时有细节。设计上采用轻薄的折纸的概念,在1150块翼板上切割开口并折弯,形成鱼鳞状动态,以相对安静、轻盈和生物化的形态在树林及湿地中穿行,并形成了渐变的景观透漏和遮挡。
The concept of light origami is adopted in the design, cutting openings and bending on 1150 wing panels to form fish scale dynamics, traveling through forests and wetlands in a relatively quiet, light and biochemical form, and forming gradual landscape leakage and shelter.
▼云廊入口,the entrance of bridge
▼设计上采用轻薄的折纸的概念形成鱼鳞状动态,the concept of light origami is adopted to form fish scale dynamics ©存在建筑
▼云廊步道,pathway of the cloud shadow gallery
护栏部分亦采用数字化设计、生产,将龙泉山远眺成都周边雪山景象像素化,抽象形成激光雕花板,通透同时具备更好的强度和耐候性。数字化手段贯穿始终,形成了翼板的切割生产图及激光雕花板图案,且指导安装定位全过程。
The guardrail also adopts digital design and production. The snow-capped mountains around Chengdu is pixelated. The laser-engraved abstractly formed panels are transparent and has better strength and weather resistance. Digital design runs through the whole process, forming the cutting production drawing and laser carving pattern of the wing plate, and guiding the whole process of installation and positioning.
▼护栏部分亦采用数字化设计,the guardrail also adopts digital design and production ©存在建筑
▼护栏细部,details ©存在建筑
夜景照明设计采用射灯、栈道灯、洗墙灯三种,射灯从翼板内部和护栏内透出,形成温暖如折纸灯笼的质感,强化翼板动态变化,以及护栏雪山影像。
Illumination design uses spotlight, stack lamp, wall wash lamp, spotlight from the inside of the wing and guardrail, forming a warm paper lantern texture, strengthening the dynamic change of the wing, and the image of the guardrail snow mountain.
▼夜景,night view
▼夜景照明设计采用射灯、栈道灯、洗墙灯三种,illumination design uses spotlight, stack lamp, wall wash lamp
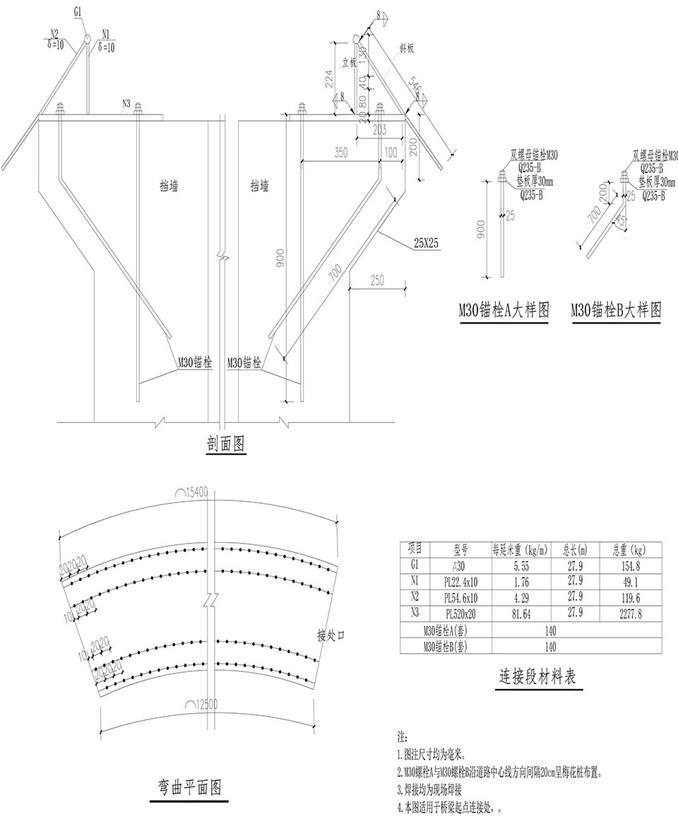
▼桥面剖面图,section
客服
消息
收藏
下载
最近





































