查看完整案例


收藏

下载
地址:土耳其 伊斯坦布尔
面积:13,000 平方米
时间:2022年
摄影:İbrahim Özbunar
Tags:服饰,功能差异化楼层布局、新生代工作空间、开放协作多元、产品展示空间、空间组织、圆形元素
XYZ Design设计团队精彩呈现Talu Textile 位于土耳其伊斯坦布尔的办公室。Taha集团下的Talu Textile是一家运动衫制造公司,成立于1994年。
这处办公场所跨越八个楼层,总面积约13,000多平方米。在做整体设计规划时,楼层之间的功能差异起到了决定性作用,并由此创建了一个有效满足每个楼层需求的空间组织。
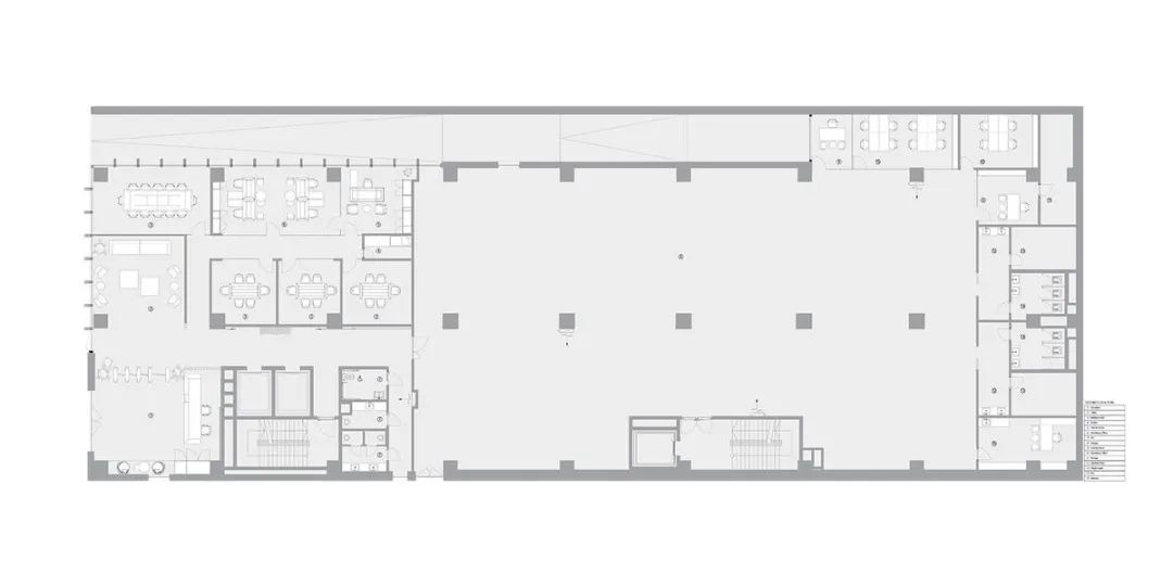
一楼设有接待处和大厅,这里营造出符合企业身份的庄严氛围。这一层也是人力资源部门的所在地,功能上包括与之相关的经理室、工作区、会议室和储藏区。
△ 一层平面图
制造区规划在大楼的二楼,在这里,裁剪、缝纫、熨烫、储藏和技术区域有效且系统地关联在一起,形成一套完整有序的空间组织。
△ 二层平面图
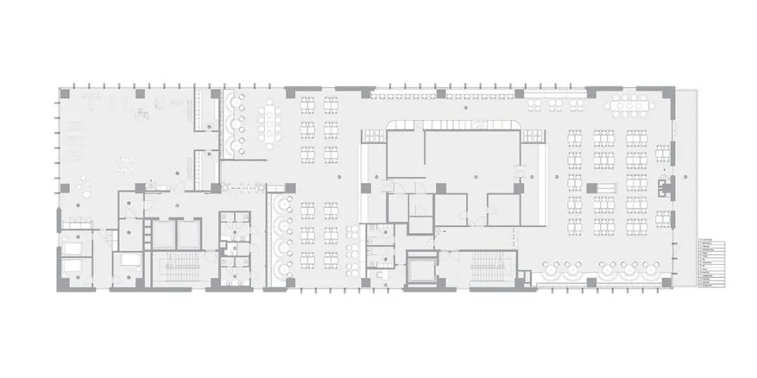
在餐厅所在的三楼,围绕着厨房规划出员工可以单独用餐或一起用餐的区域,这也是该楼的核心空间。虽然餐厅采用充满活力的色调营造出欢快的氛围,但该楼层还是另外再规划了可供员工使用的健身房和休息室。
△ 三层平面图
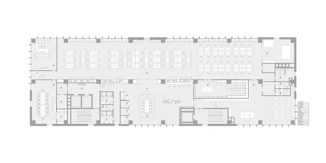
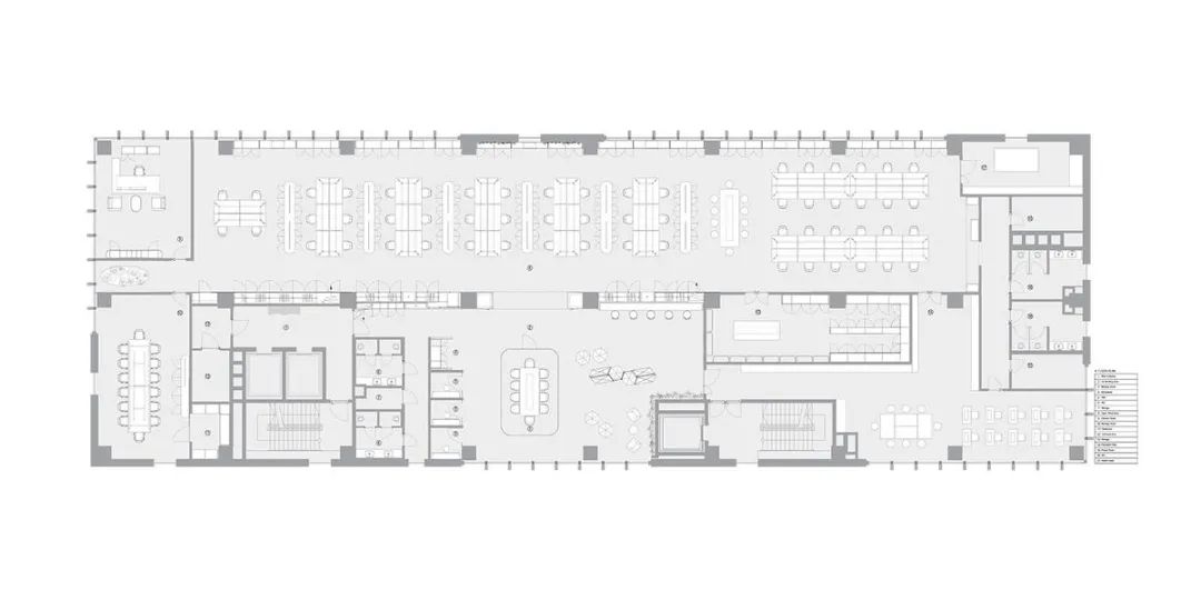
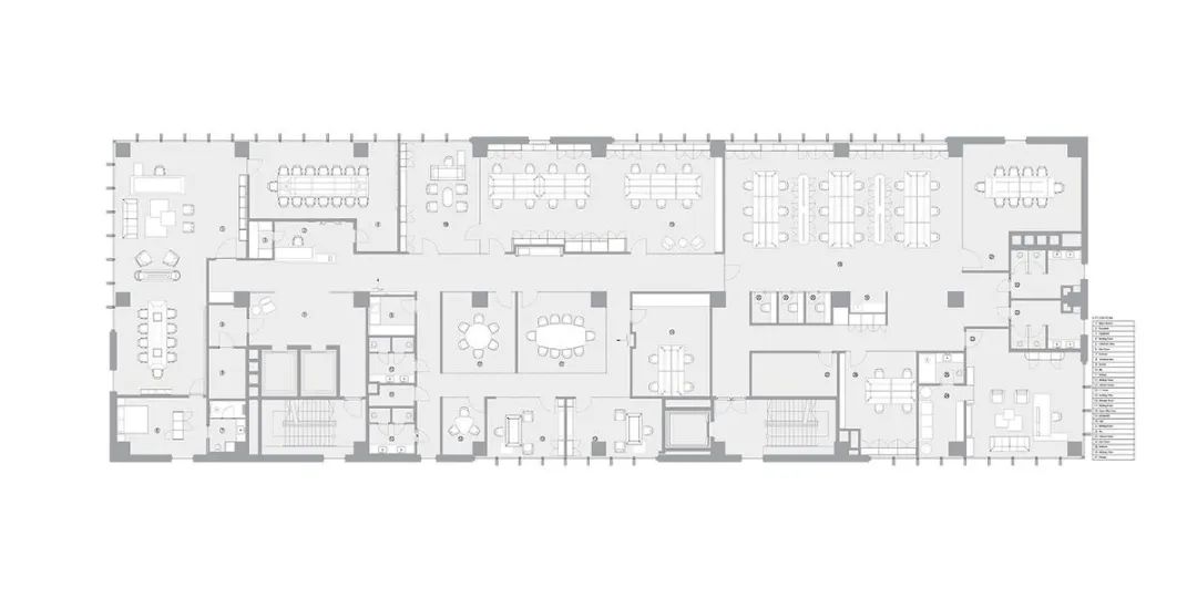
在大楼的四层和五层,采用了适应当今新生代工作空间的时尚设计方法。从这个意义上说,以玻璃隔墙围合的会议室,将其与开放空间隔离开来从而提供所需的隐私性;在其周边规划了允许团队工作和个人专注的协作工作区域。该空间同时还被构想为一个社交区,这里提供了灵活的座位和游戏墙,让员工可以在这里暂时的休闲放松一下、或者聊天交流。
开放办公区以线性布局设计,虽然与社交空间分开,但在某种程度上仍旧创造了一种相关联的空间关系。此外,在开放式办公的设计方法中,为需求而设计的存储区也非常重要。在这两个楼层的设计中,采用了动态和无阶层的设计方法,同时使用了活泼的圆形元素并搭配以活力鲜明的色调,构建了一个青春时尚的工作环境。
△ 四层平面图
△ 五层平面图
虽然六楼被定义为行政楼层,但除了行政办公室和会议室外,还设计有开放式办公区,但该楼层的设计语言在形式、材料和配色方面都采用了与其品牌相一致的庄严方式。
△ 六层平面图
七楼,主要是一个展示空间,公司可以在这里与客户洽谈交流并体验产品。这处展厅的设计通过功能区域间的巧妙融合提供流畅连续的空间感,旨在让人们从多个角度感知和体验整个空间;而在色彩和材料的选择方面则采用简约和宁静的设计手法为产品展示构建一个理想的背景环境。
△ 七层平面图
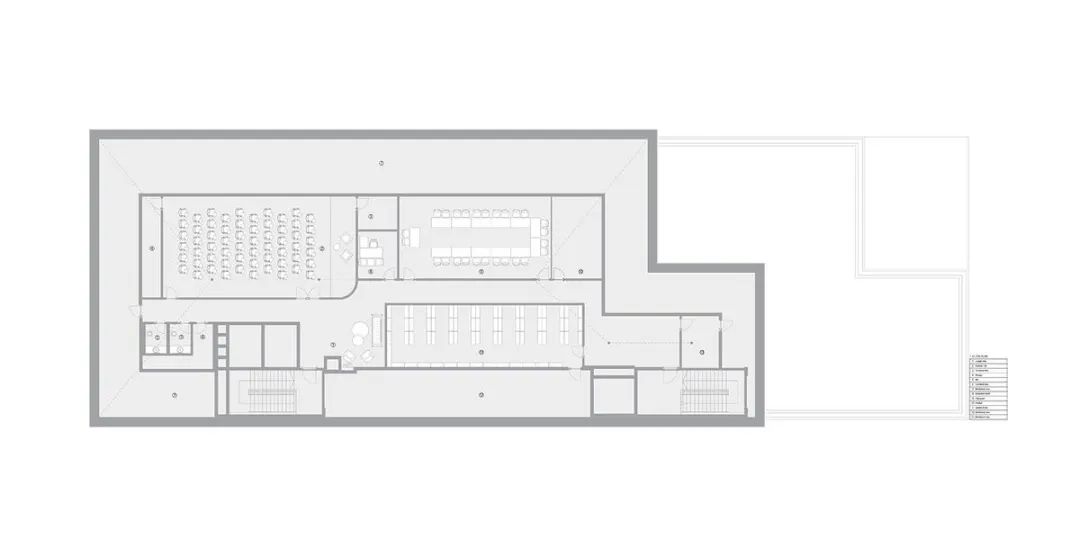
全体员工的会议大厅和培训教室都规划在八楼。其它诸如机械室、技术室、以及储藏室和档案室也都规划在这个楼层。
△ 八层平面图
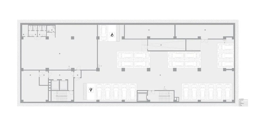
△ 地下一层平面图
△ 地下二层平面图
客服
消息
收藏
下载
最近















































































































































