查看完整案例

收藏

下载
家,从来不只是一间房子。它承载了我们的情感和精神需求。它是让人的身体栖息在内过日常生活的容器,也是能让人的内心安稳地、丰富地、融洽地持续住下去的地方。
01.园宅
设计:堺工作室
△ 俯瞰建筑 摄影:SD 虞志强
住宅不应该是这样的快销商品,它是承载了一个人或者一个家庭全部生活的容器,个人有独立的价值观、思想,以及不一样的生活习性。在一定规范限制的前提下,农村住宅也应该有自己独立的价值观与多元化。
△ 项目视频介绍 ©SD 虞志强
新建宅基地的基本功能要求只有 2 个:四个卧室,保证房子的私密性和舒适度。这些规定和规矩将宅基地建筑限定在了某一个形态内,前者定义了建筑的体量,后者定义了建筑的形式。
这些规定和规矩将宅基地建筑限定在了某一个形态内,前者定义了建筑的体量,后者定义了建筑的形式。
△ 建筑南立面局部外观 摄影:堺工作室
△ 建筑西南面局部外观 摄影:堺工作室
房子的西侧按照原来的布局保留了菜地。初夏,蚕豆的叶子和油菜花疯长,点点阳光洒入厨房与餐厅的长窗,透过玻璃能看到窗外满眼葱郁的绿。打开西侧的门,迈过平台,从菜地里拔出还带着泥土的大白菜,就在平台边就能冲洗干净。
△ 从客厅看向菜地 摄影:堺工作室
建筑形态引用了江南民居中坡屋顶挑檐的形式与江南园林中的高低错落和蜿蜒曲折。既蜿蜒曲折,又高低错落,我们期待这样让建筑空间的变化以及视线的交错更加丰富有趣。
△ 西侧出入口 摄影:堺工作室
△ 客厅
摄影:堺工作室
△ 从客厅看向卧室 摄影:堺工作室
△ 卧室与吧台 摄影:堺工作室
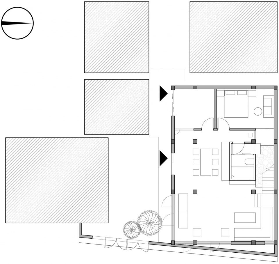
△ 一层平面图 ©堺工作室
江苏苏州
316 平方米(一层 140 平方米;二层 88 平方米(不含平台);三层 88 平方米)
成潜魏、SD 虞志强
02.
三米园
设计:VIA 维亚景观
△ 三米园夜景鸟瞰 @CreatAR Images
项目以围墙作为整个外部空间塑造的起点,并提出了“以墙为园”的构思,于是整个设计就转向了与“当代造园”有关的一次实验。明中后期以降,墙作为重要的造园元素,越来越多地出现在各类园林中,成为更斩截而高效的空间划分和景域转换方式。“墙、廊、亭、轩”交错、叠合,形成游赏主线的造园手法,渐成明清文人园的主流技能。在我们看来,这应当是本次实验的历史依据与灵感来源。
△ 将主体建筑融入整体造园之景 @CreatAR Images
原本意义上的别墅围墙便以“空间”的姿态呈现,并包含了入园的门廊、可供短暂休憩的亭、区分内外的墙等多样的园林功能空间。用直线、圆形对翻折后的三维界面进行的切割,则营造出了各从属空间之间的因借关系,形成了一系列随形得景中的“藏露”、“曲直”、“开合”、“高下”的园林意趣。
△ 从建筑二层的外廊望向三米园与农田景观 @CreatAR Images
△ 三米园之月洞 @CreatAR Images
通过本次设计,用“三米园”看似“装置”式的空间建构达成了中国园林“水、石、花木、建筑”多要素一体化营构的空间回归,在场地中模糊了别墅建筑主体的统领,把空间让渡给属于“村庄地”的园林体验。
△ 整体宅园平面图
上海崇明岛
CreatAR Images
03.
千岛湖方宅
设计:田之间建筑-植田建筑
方宅位于杭州市千岛湖樟树下村,方宅的宅基地是一个 8m*12m 的矩形地块,房子被周围的三层民居包围。建筑师以“内空间建构”的方式设计这一场所,在这个不大的盒子里设置两个垂直中庭。在外部看过去的时候,就是一个很简单的方盒子,所有的开口都是内向性的。
两个狭长的中庭形成了这个平面中最有特点的部分,错位的中庭建立起空间和空间之间的联系,中庭是联系的纽带,也是气息的流通,也是人与人沟通的地方。
中庭作为一个内空间的盒子,也是一个光与时间的盒子,“时间”的流淌也正是乡村生活中的另一种惬意。
▼平面图
项目地点:杭州市淳安县樟树下村
建筑面积:384㎡
摄影师:方舟
04. 渭南·巴邑村玻璃砖房
设计:西安建筑科技大学设计研究总院
住宅位于陕西省渭南市临渭区故市镇巴邑村,原为 2000 年左右建造的一层平屋顶建筑,业主希望对住宅进行改扩建,增加功能单元,延续关中乡土民居坡屋顶形式,保留院落绿植并控制建造成本。
设计通过对既有住宅结构检测,掌握内部结构特点,遵循加建结构的安全性、适配性以及经济性原则,二层采用“砌体+框架”混合结构,其中主体为砌体结构,设圈梁和构造柱,加强结构刚度;玻璃砖墙部分为钢筋混凝土框架结构,空间划分灵活;屋面为有檩体系轻钢结构,大大降低自重,最上层覆盖机制红瓦。
南向阳光间采用大面积空心玻璃砖和条形长窗,最大限度增加采光面积;客厅上部拆去局部原有楼板增设采光通风井,改善室内采光的同时可利用热压促进自然通风。外窗均采用断桥铝合金框料和 Low-E 中空玻璃,严格控制开启面积,夏季开启利于自然通风,冬季关闭抵挡外界风寒。
▼平面图
05.
HOUSE K 私宅
设计:那宅事务所
项目的宅基地位于厦门岛外城郊,村庄沿街大多被小型工厂占据,同大多数本地村庄一样,房屋密集,有些杂乱。设计团队从日照分析入手,在上午两个小时的宝贵阳光下,安放卧室;下午太阳绕至西侧,相应布置起居室;通过屋顶的不等坡处理,争取出了半层书房和一个屋顶花园。
为了对位阳光,房子整体向用地东侧偏移,于是西边腾出了一个庭院,可缓冲西晒和噪音。院子里再种上一棵能遮阳挡雨的大树,景观也有了重心。顺藤摸瓜,一切都显得顺理成章。
△ 冬至全天日照模拟
最终,只有线条成为唯一的中性语言,灰泥涂料、长虹玻璃、窗台石板、开槽大理石墙裙,通过水平向统一在一起,与直立锁边金属屋面、花园松木围墙的垂直线条,形成一种干练的对比。在村庄整体语境下,透过有节制的精细,也找到了可辨识的得体。
▼剖面图
项目地点:福建省厦门市集美区灌口镇
摄影:许晓东摄影工作室
06. 园宅
设计:度向建筑
如果把家宅设想为园林的扩大,园林是家宅的外延,那么建筑内部的空间格局会呈现出与园林同质的倾向。要达成这样的状态就需摧毁房子原有的空间格局,重铸新的生活场景。设计把原有功能规整推往两边,留出一片内部“花园”。这个“花园”中,遗留结构柱和加固柱围合形成虚空的中心,它就在原先天井位置,像是一个“光亭”。
通过布局的重新梳理,主要的生活空间都有了南向的采光,呈现出明亮温暖的气质。材料的搭配和质感趋于文人传统,服务空间深灰色面砖,房间白色涂料作为空间底色,深沉的胡桃木作为地板和家具的主材。长虹玻璃的肌理和半透性表达出家庭生活的距离感,塑造出了含蓄氛围。
面积:336 平方米
摄影:Runzi Zhu, Chaos
07.
跳墙之家
设计:察社办公室
弃置若干年后该院子被重建,设计师首先对已有建筑,坍塌的落架重建,倾倒和开裂的做结构加固。在地面上,设计通过加建和连接赋予新的秩序。在高处,老房子上附着新的建筑。
新建筑首层各自分离的区域变成“连贯的整体”。面向内庭院的立面被打开,大块玻璃代替了砖墙和细密的木格扇。设计试图建立一个埋伏在高墙下的新系统。全天变换的光线,通过连续的场所,在白墙间反射。带来更丰富的光影环境。即便头上的高墙依然存在,黑暗变成了可以变换的灰度,而明亮的大空间也随之而来。
在这连续变换的空间里,公共场所居其中。卧室安排在尽端安静的角落,或架空的阁楼之上。角落里的卧室享有独立庭院。架空的卧室翻过高墙,获得了充足的日照,和面向山川的景观。
08.
屋檐下
设计:过半儿
项目位于北京市中心以北约 60 公里,长城的山脚下,建筑师被要求为一座闲置的乡间房屋增加适当的扩建部分。建筑师没有拆除相当不起眼的现有建筑,而是通过利用现有结构来重新整合空间,从而避免过多新的建设所引发的能源浪费。连续的外部绝缘围护结构包裹着旧建筑,并延续到了新的扩建部分。
四个电动天窗使休闲区洒满了自然光,落地窗为从前没有窗户的北侧外墙提供了穿堂风。连续的坡屋顶结束在两米多一点的高度,使面向花园的九米宽的全开式玻璃窗拥有合适的人体高的尺度。室外的木地板以其路径构成了花园,并将房屋的两翼与起居区的室外平台连接起来。
▼平面图
09. 观自在
设计:天作空间设计
设计师为项目起名观自在,确是想把生命体验和思辨内观结合在一起。落在这栋城乡交汇处的自宅时,这种结合的基础是求真——对遥远的、自然的、人心的求真。假如它恰好为乡村振兴这类大问题做了注脚,那么是这一基础衍生的意外之喜。
顺势而为的处理贯穿整个设计过程,只有身在其中才能体会村庄远非静止。比如在设计师还沉浸在前后住宅老屋脊形成的组块风景时,前屋主人已经拆盖了附带不锈钢栏杆的二层小楼,而楼体间狭窄倾斜的排水缝隙也进一步推动了室内结构线的调整。
▼一层平面图
项目地点:北京市海淀区
项目面积:442㎡
影片:杜鹏
10. 山雀之家
设计:察社办公室
山雀之家位于北京西部太行山区深处,一个谷底村落中的低矮处。旧有房舍昏暗,院子窄小凌乱,设计任务是要建造一处良好体验的山中住处。
旧有建筑被迫放弃,在原位置上建造一个同样的体量,统一轻型建构体系。整体看起来,依然是在原有体量上叠加一个新的形状。这也就成为建筑最终的形态来源。
在院中,压迫感消除,只能感受到一层檐口的高度。这个大斜坡延伸到北侧立面,结合向西的坡面,形成一个高处的三角形。
▲设计生成
不同方向不同位置不同高度,在材料和构造的缝隙中,尽量形成透光的开口。例如山墙上部与坡屋面之间,来访者在室内不经意的抬头,也能看到窗外的远山。
项目地址:北京门头沟区斋堂镇白虎头村 22 号院
建筑面积:168㎡
摄影版权:朱雨蒙,成直
客服
消息
收藏
下载
最近

























































































































