查看完整案例

收藏

下载
小宅空间
营造出
舒适的室内空间。
采用
温暖的
赭色色调
深灰
色成为了第二个主要颜色,
出现在厨房外墙的设计中,并在纺织品中强化为黑色,沙发和装饰椅中。
因此,
得到了一个图形化且富有表现力的空间。
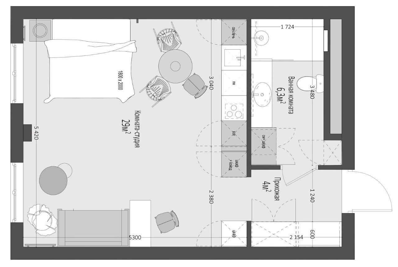
床的对面是沙发,选择了折叠沙发型号,以防公寓里有客人,需要多一张床。走廊设计了一个大型内置衣柜。厨房和衣柜系统是一个整体,沿着墙壁延伸,以保持内部的完整性。
该项目设法为一个实用的浴室分配空间,中心装饰是卡拉拉大理石悬浮顶,下面有一个放毛巾的架子,其翠绿色调与镜子镜框的颜色相呼应。
客服
消息
收藏
下载
最近















