查看完整案例

收藏

下载
古有云:木者,春生之性,万物之源。东方之行,冒地而生。
壹信柚木上海展厅
进行一次彻底的更新,
01 TALK TO NATURE 与自然对话
柚木做为万木之王,拥有丰富的多样性,我们的基因中,似乎总是有一种“木的本性”,以木为万物之源,以山林湖海为万物的情怀。
围绕“与自然的对话”的主题,空间以朴素的结构和线条建构展厅空间,意在打造真实简约的生活美学,唤醒人们对于质朴生活的向往。
P. 01
P. 02 从入口开始构建围合,以一片叶子立体折皱构成来体现在简洁的空间中,尊重木材的天性,保留木头的纹理与灵性。
P. 03
P. 04
02ARTISTIC
审美感官
会客区域尝试突破传统展厅严肃正统的空间叙事,打造一家适合现代居家的温暖氛围,迎合全球千禧一代和 Z 世代顾客群体的审美感官。
P. 05
P. 06 壁炉的设置成为整个空间温暖感受的点睛之笔,温润的质感佐以戏剧感的线条,使得整个空间呈流动的态势。
P. 07
P. 08
在不喧宾夺主的情况下,体现审美性的同时,运用弧形线条来增加空间的层次感和丰富度,利用柚木的温暖色彩对比布艺的舒适感来增加空间张力。
P. 09
P. 10
P. 11
• 03 DEPICT LIFE 刻画生活
强调设计的功能和质感,针对当下年轻人追求精致极简的主张,利用本土语境打造出充满活力的设计元素,赋予了室内空间独具魅力的风格。比如可移动的中岛台就餐区域,以木为墨,刻画生活。
P. 12
P. 13
P. 14
P. 15 以木造家具作为媒介,表达自己对生活的理解。依照自由的生活去做设计,建造环保、自然、健康的空间。只以木作营造空间,不施涂料,不敷颜色,返朴述真。
P. 16
P. 17 设计从空间的顶面、立面蔓延开来,让那些落满光阴的木料,在沉默空间里可以进行自由的对话。
P. 18
P. 19
P. 20
• 04 INGENUITY 执着匠心
展厅内茶空间部分以无主灯的光晕纹作为背景,体现茶道里禅宗的思想境界。细节之处,抽屉门板运用手凿纹,肌理斑驳,内蕴匠人琢磨的偏执。透过严苛标准的打磨,每处内容的求精,蕴含执着的匠心。
空间与时间,水与火候,器具与温度,构成茶的极致,便成了“茶道”。
P. 21
P. 22
P. 23
• 05
SOFT RELATIONSHIP
柔软关系
衣帽间的尺度感在寻求一个最佳的平衡点,兼纳光、影、声、色、风的感性抽象与时、地、人、物、景的具象写实。柚木是所有材料中最贴近自然的,从作为一棵树开始,静静生长,一呼一吸。一棵树奔向不同的形状,每一块木头都有各自的使命。希望用设计,在人与原木之间建立一份柔软的关系,传递原木的天然美。
P. 24
P. 25
P. 26
P. 27
以精湛之技,臻于毫厘之间对细节研磨的经年如新,始终将指向美好的新境;以精细之质,源于精益求精,对上乘材质的严苛甄选,重新组合构境,用柚木诠释新东方语言。
• 06
ANALYSIS
DIAGRAM
分析图
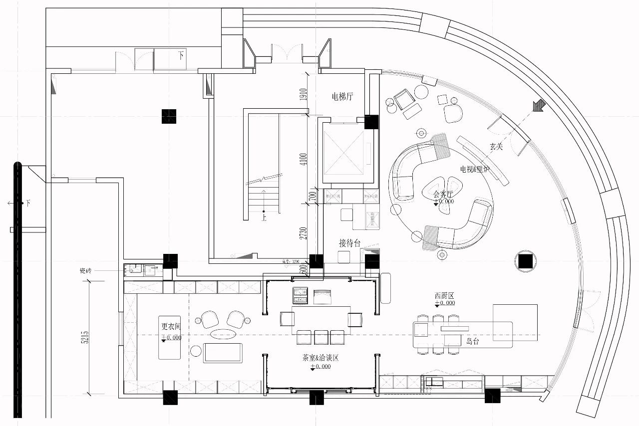
平面图 P.28
INFO
- 项目名称 - 壹信柚木展厅
- 设计机构 - 上海龙祉空间设计有限将公司
- 设计主创 - 崔龙
- 项目面积 - 189㎡
- 项目地址 - 上海
- 项目摄影 - 三像摄 张静
DESIGNER
崔龙
龙祉设计创始人 - 设计总监
高级室内建筑师
上海市优秀室内设计师
22 年设计行业工作经验
客服
消息
收藏
下载
最近
































