查看完整案例

收藏

下载
vivo公司的新总部建于东莞市长安镇的工业区,距原来的总部约3公里。不成文的,长安被一条公路一分为二,南侧是工业区,北侧为生活区。在城市面貌上,二者呈现出极大的反差。在工业区旧的、纷乱的、不那么让人喜欢的表象下面,却潜藏着巨大的活力,这也是我们在项目环境中捕捉到的第一个印象。
vivo新总部包括主办公楼、实验楼、综合楼、3栋塔楼公寓、接待中心和2栋停车楼等9栋建筑。中国建筑设计研究院有限公司负责了全部建筑设计和景观设计。在园区中,我们设计了一系列完整、纯粹的几何形体和空间,通过一套连廊系统将它们有机连为一体,每一个空间有自己的独特性,但并不孤立,紧密地联接于空间体系之中,塑造了丰富的室内空间、露台、庭院、广场、公园……
The new headquarter of vivo is located in the industrial zone of Chang’an Town, Dongguan City, about 3 kilometers from the former headquarters. Chang’an is naturally divided into two parts by a highway: the industrial area on the south side of highway and the living area on the north. In terms of urban-scape, the two present a great contrast. Under the timed, chaotic, and less-appealing appearances of the industrial area, there is tremendous active energy and vibe, which is the first impression we have captured in the project environment.
The new headquarter of vivo is composed of 9 buildings: main office building, laboratory building, multiple-use building, 3 apartment towers, reception center and 2 parking buildings. China Architecture Design and Research Institute Co., Ltd. is responsible for all architectural design and landscape design. In the campus, we introduced a series of complete and pure geometric shapes and spaces, which are connected through a bridge/ corridor system. Each space has its own uniqueness, though it is not isolated but closely connected to the whole space system. Therefore, varies interesting yet connected space sequences are created in the system, such as, active and flowing indoor spaces, terraces, courtyards, squares, and parks…
▼东北角鸟瞰图,bird-eye’s view of vivo from north east © vivo
让设计无限贴近生活 | Integrate design seamlessly with life
与一般的工业园或科技园区不同,《雅典宪章》提出的现代城市功能四要素——“工作,居住,游憩,交通”,都包含在vivo新总部之内,园区承载了几乎全部的生活场景。项目从投标伊始到落地建成历时6年,历经无数次讨论,而几乎每一次讨论都会围绕着或松或紧的效率和便利性、舒适度、美观、空间张力等方面权衡取舍,都在试图让设计无限地贴近生活。
Different from general industrial campus or normal Hi-tech campus, the four elements of the modern urban function proposed by the Athens Charter (Charte d’Athènes) – “work, residence, recreation, transportation” are included in this new headquarter of vivo, which carries almost all life scenes. The project process has been lasted for 6 years from design competition to construction completion. During the 6 years, there were numerous discussions, each and every one of which was to try to balance around the looseness or tightness of efficiency and convenience, comfort, aesthetics, space tension, etc. The ultimate goal is to integrate design seamlessly with life.
▼沿街透视,street view of vivo © 王洪跃
为了适应广东日照强烈、多雨的气候特点,我们采用一套连廊体系将全部建筑联系起来,在顶部种植绿化,除了遮阳挡雨,又创造了一个立体的线性公园。上班、下班、一日三餐、交流、办公、运动、会议、聚会、休闲、科研、生产、货运、垃圾、人行与车行……,园区类似一个小小的城市聚落,需要理顺数十条交通流线,也是在梳理更多种生活的可能性,做到宏观统筹和精细化设计相结合。
In order to adapt to the strong sunshine and rainy climate of Guangdong, we use a bridge/ corridor system to connect all the buildings, green roof, and creating a three-dimensional linear park while providing shade and shelter from sun and rain. Commute to work, three meals, communication, work, sports, conference, party, leisure, scientific research, production, freight, garbage, pedestrian and car circulations … are all happening in the campus. This makes the campus a small city settlement, within which we not only had to straighten out dozens of traffic flows, but also tried to explore and sort out varies possibilities of life, in order to combining macro-coordination with refined design in detail.
▼园区主入口,具有大片的绿化空间,the entrance with large green space © 王洪跃
▼从综合楼看公寓区,viewing the apartment towers from the multiple-use building © 王洪跃
▼从波浪庭院看实验楼,viewing the laboratory building from the waving courtyard © 王洪跃
秩序和节奏、空间的透明性 | Order and Rhythm, Transparency of space
我们设计了一系列完整、相对独立、多种尺度、各具性格的建筑和空间场所,每个场所都使人印象深刻而明确。简洁而优雅的椭圆形主楼围绕一个巨大的绿化庭院建造,营造出一种强烈的中心性和凝聚力,使用者可以清晰的感受到彼此,进而感受到一种整体的活力,鼓舞人们去交流与合作。
▼接待中心及主办公楼,办公楼采用椭圆的造型,the reception center and the main office building with an ellipse plan © 王洪跃
We have designed a series of complete, relatively independent, multi-scale, characteristic buildings and spaces, each of which is impressive and clear. The simple and elegant main building with an ellipse plan is built around a huge green courtyard, creating a strong sense of centrality and cohesiveness, where users can clearly feel each other and feel a general vitality, encouraging people to communicate and cooperate with each other.
▼办公楼的椭圆形绿化庭院,营造出一种强烈的中心性和凝聚力,the elliptic green courtyard that creates a strong sense of centrality and cohesiveness © 王洪跃
▼办公楼大堂,设有椭圆形的通高楼梯空间,the lobby of the office building with the elliptic double-height stairs space © 王洪跃
综合楼的方形中心庭院是一个极具舞台现场感的场所,人们在这里汇聚、停留、休憩、甚至表演……围绕中心庭院,组织起整个建筑的各种尺度的空间。
The square central courtyard of the multiple-use building is a place with a sense of live stage, where people gather, stay, rest, and even perform… Around the central courtyard, various spaces are organized in different scales throughout the building.
▼从办公楼大堂看综合楼,viewing the multiple-use building from the lobby of the office building © 王洪跃
▼综合楼外观及连廊,the exterior view of the multiple-use building and the bridge/ corridor system © 王洪跃
▼综合楼北侧外观,设有大片的水面景观,north exterior view of the multiple-use building with large water landscape © 王洪跃
▼综合楼的方形内庭院,是一个极具舞台现场感的场所,the square central courtyard of the multiple-use building that is a place with a sense of live stage © 王洪跃
▼综合楼内庭院,围绕庭院组织起整个建筑的各种尺度的空间,the square central courtyard of the multiple-use building, around the central courtyard, various spaces are organized in different scales throughout the building © 王洪跃
沿着园区的中轴线,是一系列各具特色的景观广场和连廊,直至尽端的vivo park,多彩的植被,和缓的流水,构成了优美的园区环境。这一系列空间场所共同组织成一个系统,它们各自保持一定的独立性,同时相互呼应,具有丰富而清晰的秩序感、富于张力的节奏感、以及可以被多层次、多角度感知和解读的空间透明性。
Along the central axis of the campus, it is a series of unique landscape plazas,bridges and corridors, leading to the west end of Vivo Campus. These spaces together with landscape elements such as colorful vegetation, gently flowing water, constitute a beautiful park environment in the campus. This series of space places are organized into a system and each place maintains a certain degree of independence, while echoing each other, with a rich and clear sense of order, a sense of rhythm with tension. Spatial transparency can be perceived and interpreted by multiple levels and multiple angles through this system.
▼空中连廊,结合植被和休息空间构成了优美的园区环境,the bridges and corridors, constituting a beautiful park environment in the campus together with landscape elements and rest areas © 王洪跃
轻与重 | Light and Heavy
总体上讲,我们在追求轻。清晰的秩序与逻辑,精确的体量,建筑、空间与景观之间的张力,都反映出一种“轻”的特性。整个园区不是沉重的“粘”在地上,而是仿佛可以轻松的脱离地面,像鸟一样轻盈。可以被风、光、雨穿透的金属穿孔板和U型玻璃百叶,使立面达到了真正的透明性,从而生发出“轻”的感觉。
清水混凝土是一种微妙的材料,密实而厚重,而当触摸到它裸露的(尽管涂刷了透明保护剂)、带有孔隙的表面,看到它随着一天中不同的光线、空气的湿度、晴雨所呈现出的多样表情、甚至是气味,穿孔板、玻璃百叶和树的影子投射在它的表面上,我们觉得它是可以被穿透的,让人呼吸通畅的,在厚重中产生出轻逸。
▼材料细节,白色金属穿孔板与清水混凝土,material details of the white metal perforated panels and the concrete © 李淼
▼材料细节,从综合楼透过金属穿孔板看办公楼,materials details, viewing the office building from the multiple-use building through the metal perforated panels © 李淼
▼白色金属穿孔板与清水混凝土夜景,night view of the white metal perforated panels and the concrete © 王洪跃
In general, we are pursuing lightness. Clear order and logic, precise volume, tension between architecture, space and landscape all reflect a “light” character. The entire campus is not heavily “sticking” to the ground, but floating as if it can easily get off the ground, light like a bird. Metal perforated panels and U-shaped glass louvers that can be penetrated by wind, light, and rain, give the facade a true transparency, where a feel of “lightness” is born.
Concrete as material is so sophisticated that though the material itself is dense and heavy, it may also create feels of lightness through the heavy body. People would get the impression that the material is breathing or even penetrable when touching its raw surface (coated with a clear protective agent) with pores, or seeing its various expressions with changing light, air humidity, weather conditions, or even smell throughout the day when perforated panels, glass louvers and trees are casting shadows on its surface. This is when the lightness is born from the heavy.
▼东北角夜景鸟瞰图,bird-eye’s view of vivo from the north east at night © vivo
▼综合楼夜景,night view of the multiple-use building © 王洪跃
▼总平面图,site plan
▼办公楼一层平面图,1F plan of the office building
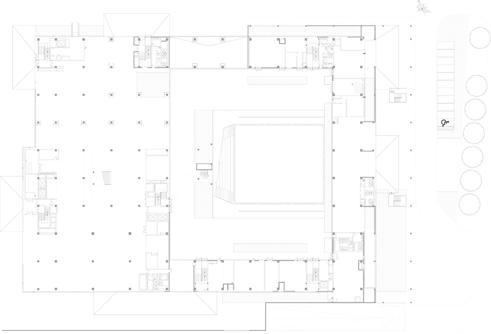
▼综合楼一层平面图,1F plan of the multiple-use building
▼办公楼南立面图,south elevation of the office building
▼综合楼南立面图,south elevation of the multiple-use building
▼办公楼1-1剖面图,1-1 section of the office building
▼综合楼1-1剖面图,1-1 section of the multiple-use building
▼综合楼2-2剖面图,2-2 section of the multiple-use building
项目名称:vivo总部
设计方:中国建筑设计研究院有限公司
项目设计 & 完成年份:2013-2019
设计主持人: 徐磊,李淼
项目经理:席志刚
建筑:孟海港,朱吟,孙婧,张华,史鑫辰
结构:任庆英,王奇,张付奎,张雄迪,刘福,张晓宇,伍敏
机电:董超(水),宋晶(水),高东茂(水),郭超(暖),许冬梅(电),李喆(电),孙泽人(电)
总图:郑爱龙
景观:关午军,王悦,朱燕辉,杨贺明,戴敏,管婕娅,李和谦,李飒,汤金润,郭玉京,王可,曹雷,魏华
项目地址:广东省东莞市长安镇滨海新区
建筑面积:18.9万平方米
摄影版权:王洪跃
室内:香港郑中设计事务所
幕墙顾问:深圳市三鑫科技发展有限公司
客户:维沃移动通信有限公司
材料:清水混凝土;铝合金穿孔板;U型玻璃
客服
消息
收藏
下载
最近













































