查看完整案例

收藏

下载
©tonatiuh armenta
随着建造技术的发展,在一定程度上而言打破了既有的思维边界,使想象与现实、功能及形式背后的精神文化成为诠释设计的核心方式之一。墨西哥当代建筑在20世纪的现代主义运动中曾受国际思潮的影响而短暂盛行“白盒子”式的混凝土建筑,但随着本土建筑师对于地域性的探索,与功能主义迥异的美洲传统艺术改变了千篇一律的建筑语言,使其呈现出与众不同的风格与色彩。
01
Los Durmientes
Bernardo Chavez Peón
墨西哥·巴耶-德布拉沃
©Fabian Martinez
巴耶-德布拉沃是一处气候温和的旅游胜地,业主购买了这块位于山丘之间的农业用地之后委托Bernardo Chavez Peón将其改建为适宜于家人周末度假的别墅。Bernardo Chavez Peón以场地周围生长着浓郁的常绿林地为切入点,追求环境与建筑的相互融合。
©Fabian Martinez
清晨的阳光伴随着薄雾营造出动态的光影效果,宽敞开放的起居室正对能够倒影云彩的深色泳池,构成了内外相接的景观视轴。室内所用的木材和墨西哥火山岩均为当地原产,混合了棕榈的编织物和赤土陶器丰富了空间的质感,以多层次的视觉变化回应了场地的特性。
©Fabian Martinez
02
Cortés sea research center
Tatiana Bilbao
墨西哥·马萨特兰
©tonatiuh armenta
Cortés sea research center是马萨特兰中央公园重建计划中的关键节点,其目的在于补充公共性文化空间的缺失,为公众提供重新认识科尔特斯海的海洋生态系统及其沿岸陆地生态系统的可能。设计团队将此视为自然与人类对话的重要场所,因此通过灵活的布局使建筑以渐进的方式与周边景观互动,利用模糊的边界创建友好的连接。
©tonatiuh armenta
为了丰富游客的参观体验,研究中心的动线自马萨特兰公园延伸至建筑物顶部的室外,再随着中心的圆柱形空间逐步下行,依次游览森林、陆地、海岸和海洋四个不同的生态系统景观,同时与公共实验室提供的一系列教育项目互为补充。
©tonatiuh armenta
左右滑动查看更多图片
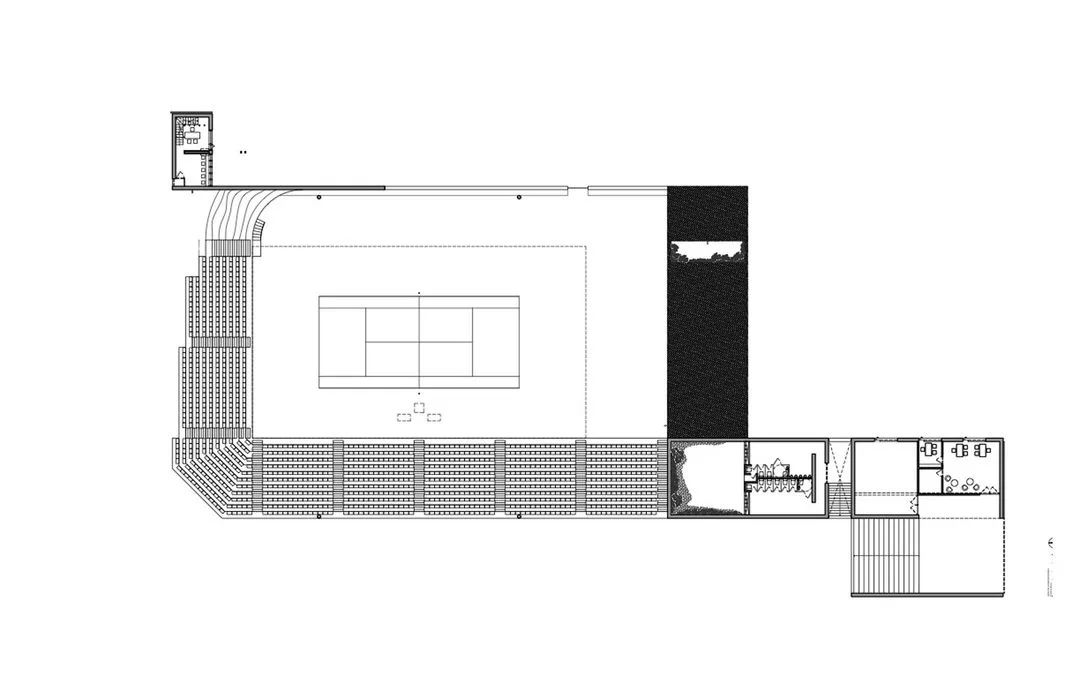
03
Cabo Sports Complex
Taller Héctor Barroso
墨西哥·洛斯卡沃斯
©César Béjar
Cabo体育中心位于南下加州的洛斯卡沃斯市,这座占地5000㎡的综合设施将在未来用于举办专业的网球锦标赛,并在休赛期作为私人体育俱乐部供会员使用。目前的综合体包含了一个下沉式的体育场、三个网球场、会所以及行政配套空间,未来还将增设额外的网球场、足球场和美食中心。
©César Béjar
作为综合体的核心,网球场的设计严格执行了赛用场地的设计标准,以南北走向的布局尽可能地减少了阳光对运动员产生的干扰。呈线性分布的室内空间由呼应沙漠背景的浅黄色夯土充当墙体,横梁、檐篷等木制元素选用了经过风化处理的松木,保留了自然且细腻的原始肌理。
©César Béjar
左右滑动查看更多图片
04
Centinela Chapel
Estudio ALA
墨西哥·哈利斯科州
©Víctor Orendain
Centinela Chapel是Estudio ALA接受委托为龙舌兰酒厂及附近的社区居民设计的一座教堂与文化活动中心,场地位于一处湖面的平台上,环植的龙舌兰以红色的砖材为背景,构建了入口处的视觉焦点。
Víctor Orendain
教堂的内部呈现上方封闭、底部开放的特殊形式,西南侧强烈的阳光与红砖墙相互作用,勾勒出强烈且神圣的光影效果。建造教堂所使用的砂岩和陶土砖均来源于项目当地,旨在通过与环境相呼应的氛围创造感官的互动,借以营造精神性的体验场所。
Víctor Orendain
客服
消息
收藏
下载
最近

























































