查看完整案例

收藏

下载
Chalk New Farm
住宅楼设计
从外面看好像一栋动感十足的别墅,其实却是一个小公寓。
Chalk New Farm 是位于澳大利亚昆士兰州新农场马里街 228 号的住宅项目,设计与开发皆是由开发商「GRAYA™」完成。
把精美的住宅与宁静的户外空间和便利设施完美地结合在一起,为居民创造了一种独特而舒适的生活方式。
△Graya TM 联合创始人 Andrew - Rob Gray
Chalk New Farm 内共有 10 套住宅,有二居室三居室可选,售价 270 万美元起(约 1924 万人民币),预计 2024 年 9 月竣工。
# 建筑设计 #
Chalk New Farm 共三层,整个建筑以白色调为主,给人一种清新、明亮的感觉。
楼身采用了曲线形态,赋予了建筑更多的动感和流动性,与直线和方形的传统设计形式形成鲜明对比。
这些曲线在建筑的外墙线条、阳台栏杆、窗户设计等方面都有体现。
立面上的立体线条装饰为建筑增添了层次感和丰富性,展示了设计师的艺术想法和创造力。
采用内凹结构设计,
雕塑般的墙面做曲面设计,与建筑形态相呼应,墙面上的「CHALK」字样,作为大楼的标识,也是入口的指引。
入口旁边是通往地下室的车道▽
为了打造一个与自然融合的宜居环境,设计师还在建筑周围和内部创造了丰富的绿化景观。既有装饰效果又能
改善空气质量,增加住户与自然互动的机会。
还为倒圆处创造了一种独特的光影效果。
# 室内设计 #
柔和的中性色调,营造出
起居空间将客厅、用餐区和厨房相互连接,形成一个开放、流畅的生活区域。
大型落地窗最大程度地引入自然光,使室内更加明亮。
厨房设计注重实用性和美观性,木质的橱柜门为整体设计增添了温暖和自然的氛围,同时结合曲线造型又营造出流畅和优雅的感觉。
内嵌的厨房电器与雅致的照明设计,进一步提升了厨房的功能性和美感。外侧的
岛台壁面选用立体的竖条纹理做造型,搭配上有雕塑感的高脚凳,整体看来与建筑立面十分呼应。
阳台与室内之间利用落地推拉门相隔,打开时能创造
无边界的开放空间体验。
卫生间挂壁式洗漱台结合镜柜,中间做内凹的曲线设计,呼应着整个项目的设计风格,一盏球形吊灯照明更是
营造出放松、舒适的氛围。
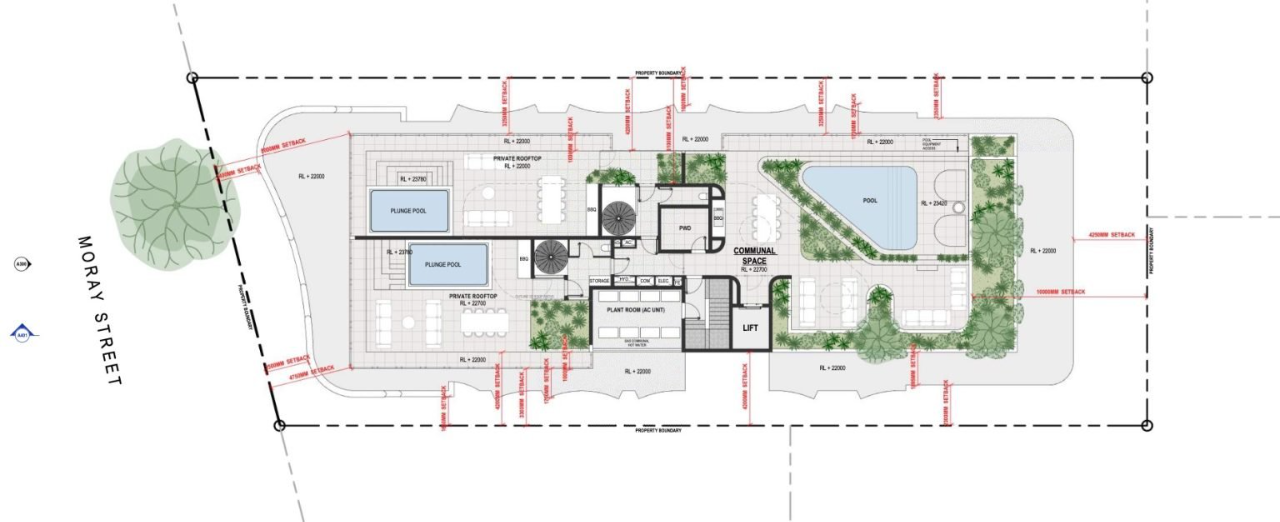
# 顶层区域 #
Chalk New Farm 的顶层是一个公共空间,这里能为住户
提供壮观的城市天际线和周围环境的全景视野。
在日落时分品味美食和美酒。
圆形泳池位于顶层露台的中央区域,
周围有石材和绿植衬托,还有舒适的躺椅和遮阳伞。
白色的
泳池底部镶嵌有项目的名称「CHALK」的字样▽
这样的圆形泳池设计,不仅仅是为了提供游泳的功能,更是为了在顶层创造一个令人愉悦的视觉焦点。
夜晚,打开泳池配备柔和的水下灯光,为顶层增添浪漫的氛围。
底层平面图▽
客服
消息
收藏
下载
最近

































