查看完整案例

收藏

下载
©Trieu Chien
作为东南亚中南半岛的热带国家,越南的文化及建筑虽在历史上曾受到了中国、印度和西方国家的殖民文化影响,但却因其地域性的特征转而发展出对气候因素的重视。不管是木材还是占婆文化中常用的红砖,均在现代主义进程中得到了完整保留,并重新定义越南本土的美学体系。
01
The NGÕ Alley House
D.O.G House
越南·河内
©Cao Xuan Hoa
“NGÕ”在意为“小巷或胡同”,此类狭窄冗长的交通体系如同毛细血管一般构成了城市的基本脉络,也成为了邻里之间联系的纽带。在城市化的进程中,NGÕ Alley House延续了越南本土的“管屋”结构,最大限度地利用庭院及屋顶绿化减少热辐射,通过被动冷却的恒温体系减少能源的消耗。
©Cao Xuan Hoa
住宅内部融合了三代人的生活空间,公共区域与户外花园交错对话,并补充了室内的自然光照。由D.O.G House改良后的橄榄土是住宅的主材料之一,其良好的气候适应性有助于确保恒温的同时吸收水汽,也在色彩上与绿植形成对比,激发空间的新生活力。
©Cao Xuan Hoa
02
Premier Office
Tropical Space
越南·胡志明市
©Trieu Chien
Premier Office位于胡志明市的一处办公区域内,团队希望能够在充分利用自然光的同时减少热辐射等负面效应,因而利用混凝土结构与砖墙的组合打造了一个有着良好通风且遮阴的空间体系,并通过中央通高的公共空间补充光照。
Trieu Chien
中央大厅的一侧串联着可出租的办公空间,另一边则容纳了厕所、储藏室、电梯和楼梯等配套设施与空间,并以开放式的走道相连。外立面的穿孔砖墙依靠45度的旋转角阻止阳光直射,在植被、微风甚至雨水的情景叠加下营造出富有生机的开放性氛围。
Trieu Chien
左右滑动查看更多图片
03
The Kaleidoscope
Inrestudio
越南·广平省
©Hiroyuki Oki
The Kaleidoscope是Inrestudio为广平省Hoang Long矿区的员工设计的办公及住宿场所,为了应对当地季节性的台风、洪水等极端天气,团队由万花筒中汲取灵感,利用镂空的外结构和大面积的通透玻璃提供多维度的视野,进而增加人与自然的亲密接触。
©Hiroyuki Oki
建筑的双层屋顶隔绝了午后直射的阳光,这种倾斜的不规则结构近似于越南农民常佩戴的传统遮帽,有利于快速排水的同时起到一定的荫蔽作用。大楼内部以7个等腰三角形的空间单元分隔办公与生活的区域,并将中心的开放空间作为交通枢纽,增强空间之间的流动。
©Hiroyuki Oki
04
Mix Restaurant
The Bloom
越南·林同省
©Hiroyuki Oki
Mix Restaurant是一家具有越南传统建筑色彩的餐厅,室内外的用餐区以低廉的波纹铁板和拱形的木结构为顶,并借助防水的聚乙烯透光层增加内部的采光。除了氛围的营造,设计团队还通过隐藏在屋顶中的喷雾系统养护植物、降低室温,提供亲近自然的用餐体验。
©Hiroyuki Oki
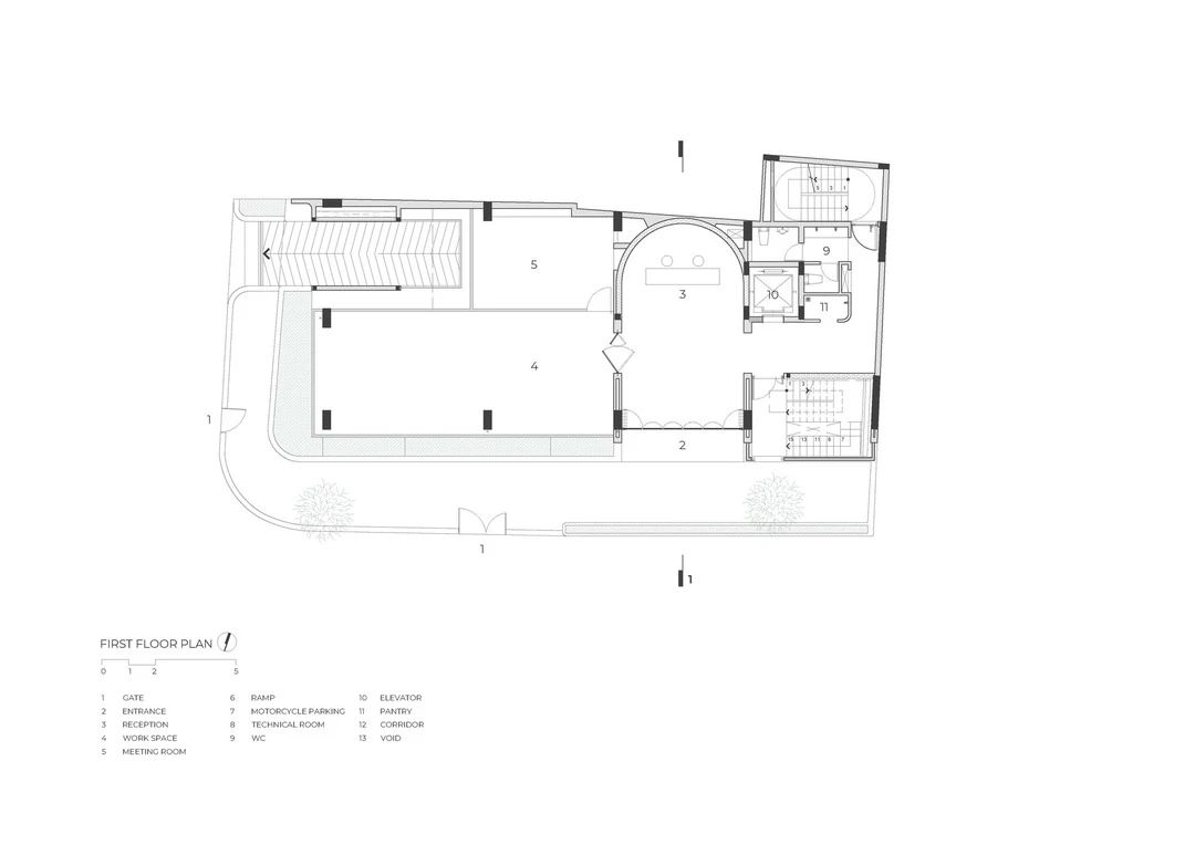
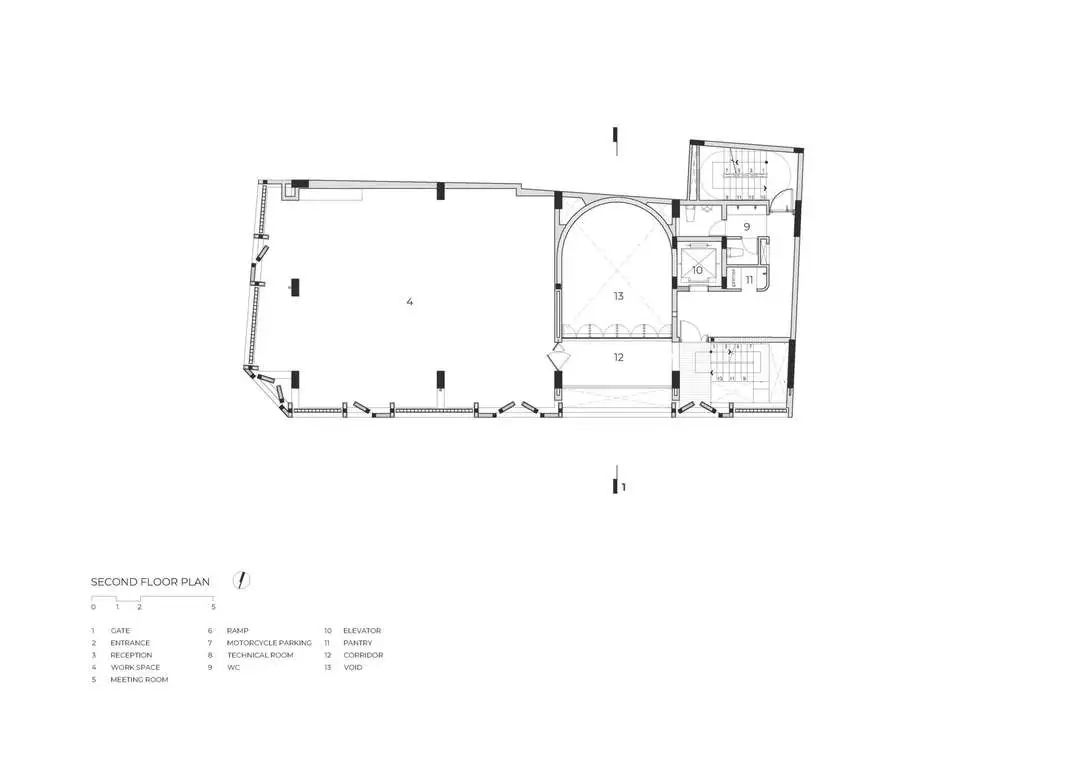
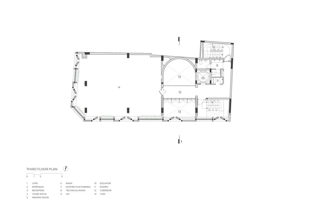
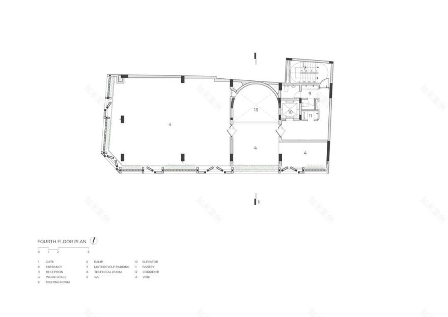
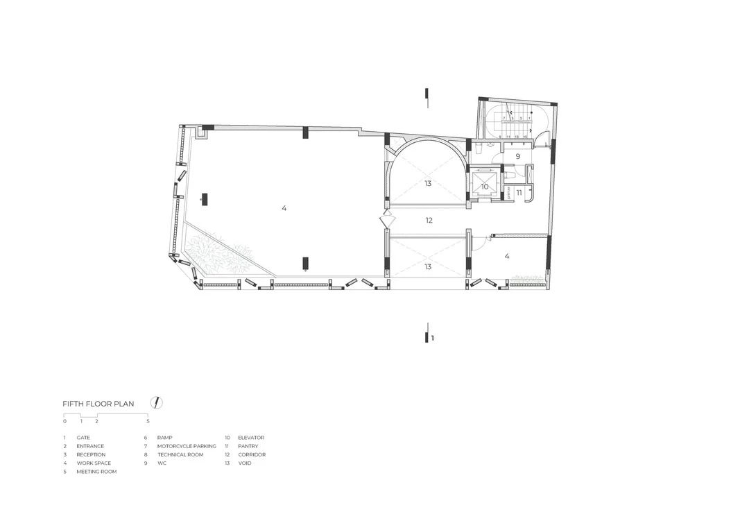
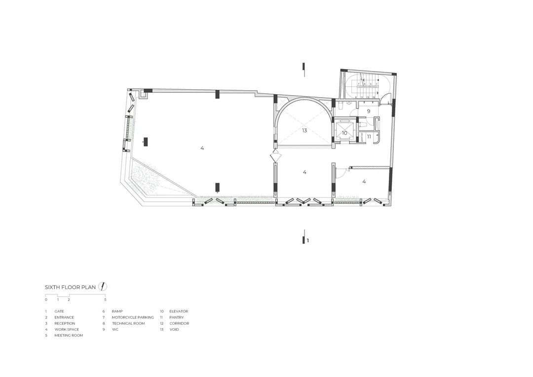
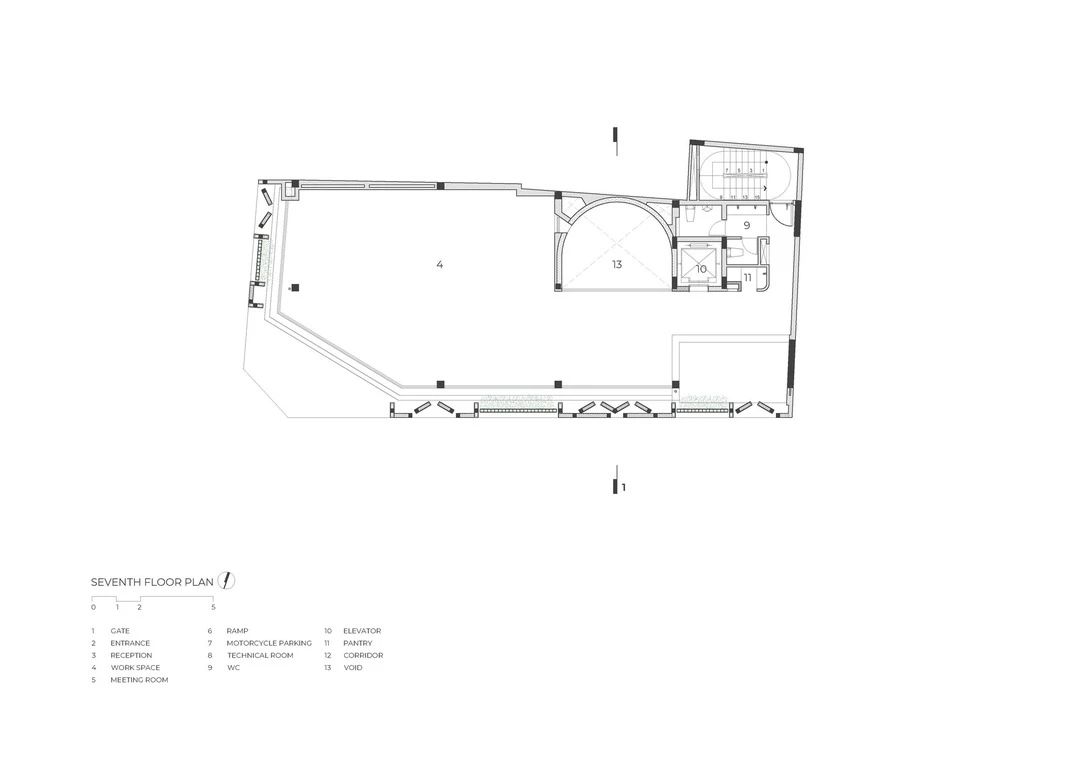
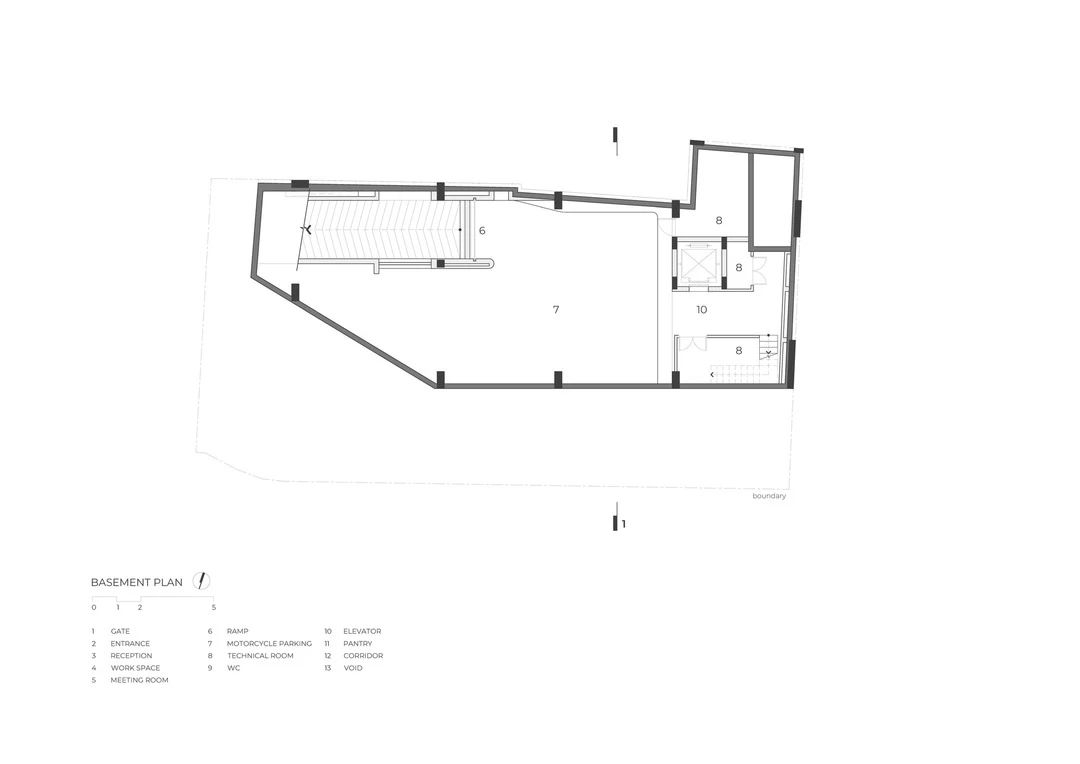
△平面图
05
Que Son House
BOW.atelier K.A.N Studio
越南
©Quang Dam
穿过种着金合欢树的小巷,Que Son House的屋体结构于郁郁葱葱的背景中若隐若现,其一体化的屋顶覆盖着整座建筑的室内外区域,通过压低的倾斜角度将人们的视线集中在横向的水平面。公共的起居室布局在住宅中心,与庭院相接的开口将几代人聚集在这片开放、幽静之地,生发出有关家庭的共同记忆。
©Quang Dam
平面图
客服
消息
收藏
下载
最近


















































































