查看完整案例

收藏

下载
© Masaaki Inoue / BOUILLON
由于这个原因,公司对办公室的布局需求是能够容纳不同办公类型的员工,让他们在各自的岗位实现最大的效益。
SAKUMAESHIMA
随着近些年来采用远程办公的公司数量大幅度增加,人们似乎对办公室的作用和性质产生了新的反思。
▲办公空间概览
© Masaaki Inoue / BOUILLON
本案是一个对L LINE办公室内部进行重新装修的项目,L LINE是一家从事建筑的建造、结构架设的公司。
▲咨询前台
© Masaaki Inoue / BOUILLON
设计者对办公室的改造以“改善同事们的工作场所”为出发点,公司里不仅有全天候在办公室工作的员工,也有下班后从施工现场直接回家、不再回到办公室的员工。由于这个原因,公司对办公室的布局需求是能够容纳不同办公类型的员工,让他们在各自的岗位实现最大的效益。此外,由于L LINE是一家不断成长的公司,该办公室的设计也需要确保能够实施新的创新,因此根据不同业务灵活改变的空间特质也是必要的。
▲不同类型的办公空间
© Masaaki Inoue / BOUILLON
▲办公桌椅细节
© Masaaki Inoue / BOUILLON
空间布局的颜色选择了公司标志性的紫色、原木色和黑色作为参照点,其余部分则尽量使用了中性调的浅灰色。不同高度的座椅也让员工们能够使用不同的方式进行办公。
▲紫色的推拉门
© Masaaki Inoue / BOUILLON
▲以中性的浅灰色为主的空间
© Masaaki Inoue / BOUILLON
▲收纳柜
© Masaaki Inoue / BOUILLON
设计者在空间中的一些区域还布置了该公司的logo。对这些元素的使用有助于打造这个宽敞的办公空间。
项目图纸
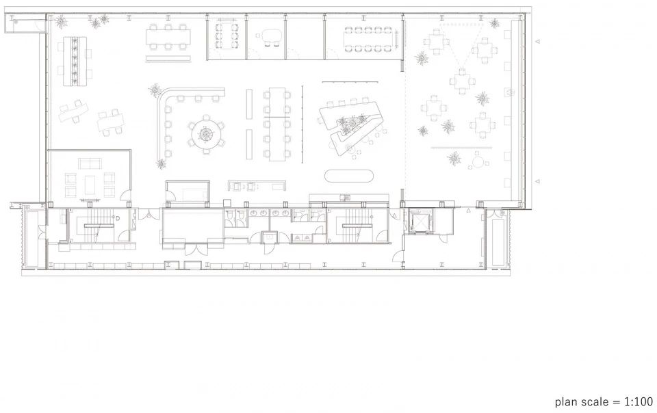
▲平面图
© SAKUMAESHIMA
Project Name: LLINE
Office Name: SAKUMAESHIMA
Social Media Accounts: instagram : @sakumaeshima_
Firm Location: 4F, 2-19-8 Jingumae,Shibuya-ku, Tokyo-to 150-0001, Japan
Completion Year: 2022
Gross Built Area (m2/ ft2): 775m2
Project location: Shinagawa – ku, Tokyo, Jpan
Program: Office
Photographer
Photo Credits: Masaaki Inoue / BOUILLON
客服
消息
收藏
下载
最近
















