查看完整案例

收藏

下载
©Enceladus Studio
现代主义的理论探索与实践于20世纪中期迎来了转折,世界范围的传播使不同地域的自然环境、风俗文化等因素改变了理性、模式化的设计语言,促进了多元化的发展。地处南半球的澳大利亚有着类型丰富且独特的地理环境,随着生态理念的传播,其地域性的现代主义思想展现出更顽强的生命力,促使建筑在文化与自然的影响下发生蜕变。
01
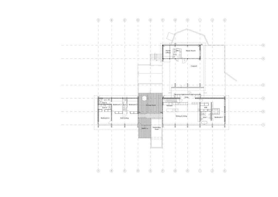
LPS Residence
Davidov Architects
澳大利亚·墨尔本
©Enceladus Studio
LPS Residence位于风景如画的莫宁顿半岛(Mornington Peninsula)内,旨在取代无法满足使用需求的原址住宅。新建建筑分为起居区、用餐区和休息睡眠区三个体块,一个独立于外环境的庭院将U字形排布的空间串联为相互联系的序列,并通过倾斜的skillion屋顶结构区分不同的体块及室内功能。
©Enceladus Studio
室内赭色的抹灰墙面为空间注入了朴实的质感与基调,而精细的木制屏风和家具则恰好通过光泽的表面肌理中和了立面的粗糙感,在色调统一的前提下增添了细腻的触感。厨房岛台、品酒桌等细部设计利用抛光混凝土与周边葡萄园的建筑元素相呼应,体现了乡村风格的适应性与融合性。
©Enceladus Studio
左右滑动查看更多图片
02
Wings Way
MRTN Architects
澳大利亚·墨尔本
©Tom Blachford
Wings Way位于墨尔本的大洋路沿线,由于原有的轻质纤维房屋(澳大利亚沿海地区常见的类型)因火灾被毁,因此新建的住宅不仅要与遗留的元素相结合,更要以弹性的形式应对未来潜在的风险,为生活于此的多代家庭成员提供一个安全、宁静的避风港。
©Tom Blachford
住宅入口位于陡坡高侧,设计团队充分考虑了山谷地区的风向,利用粗糙的混凝土结构开辟出一片有序的双层空间,并以适当的绝缘间隙与景观相隔,确保住宅的安全性与使用寿命。考虑到住宅的使用率,MRTN Architects首选低维护性的材料打造内部空间,欢迎家庭成员随时入住。
©Tom Blachford
03
Merricks House
Aktis Architects
澳大利亚·墨尔本
©Timothy Kaye
建筑与景观环境的交互关系是设计所要探讨的基础性问题之一,Merricks House的设计团队Aktis Architects平衡了地形、建造成本以及景观的先决条件,利用鲜明的结构体系使其成为地块内的视觉中心,在受灾区上方构建了一片视野开阔的安全区域。
©Timothy Kaye
住宅的两个体块被中心半露天的通道分隔在两侧,面向草坡的部分是主要的生活区域,半架空的结构和向外延伸的露台、泳池保证了良好的景观视野。虽然体块呈线性延伸,巧妙地利用半高的片墙和家具阻挡视线,增加了空间的流动性。
©Timothy Kaye
左右滑动查看更多图片
04
Alba Thermal Springs and Spa
Hayball
澳大利亚·墨尔本
©Willem Dirk Du Toit
Alba Thermal Springs and Spa是一个占地15公顷的水疗与旅游中心,项目团队借助莫宁顿半岛独特的地方性植物群落和四时变化的自然环境打造了沉浸式的体验氛围,其内部包含32个地热池、接待中心以及多个串联场地的景观节点。
©Willem Dirk Du Toit
主体建筑坐落于地势平缓的入口处,通过混凝土、金属等材料的组合凸显了形式的纯粹性。室内的部分延续了极简的设计风格,基础的曲线和圆形元素因手工制作的砖瓦、木材和光影而呈现出雕塑般的品质,依靠天然的基调增强了室内外的视觉联系。
©Willem Dirk Du Toit
客服
消息
收藏
下载
最近










































































