查看完整案例

收藏

下载
这是一个平面设计作品展的空间设计。 平面设计作品的信息传递主要附着于视觉,每件作品被观看的时间从几秒钟到几分钟。在这段时间里,观看者会集中接收来自内容、版式、字体、颜色、图形等的强烈信息。而空间传递的信息的方式依赖尺度、路径、围合、光线、材质等要素,体验者即使闭起眼睛这些信息依然会存在,它会以不易觉察但更为“沉浸”的方式影响人的体验。这两种不同的设计与人交互的不同方式启发了这次的展览空间设计。
This is an interior project for a graphic design exhibition. Graphic design conveys its meaning via visual perception. Each piece of work is viewed for duration of a few seconds to a few minutes; the viewer will gather information intently through its format, typeface, color and shape. On the other hand, spatial perception relies on scale, cir-culation, enclosure, lighting and material. It affects the viewer’s experience in a more subtle and “immersive” way. The design concept of this exhibition space was inspired by these two different ways design interacts with people.
▼展览空间概览,exhibition space overview
我们将展览空间分为有展品的“文献空间”和没有展品的“索引空间”,通过观展路径的设计让二者在整个观展过程的时间轴上交替出现。
“文献空间”是展览的主体,在其中高密度的布置平面设计作品。这里路径徜徉回环、围合感强烈、光线围绕展品布局。视觉信息以一种“目不暇接”的方式扑面而来,这里的空间设计则完全围绕增加“观看”的兴奋度、顺畅性和舒适感。
We treat the whole space in two distinct parts, a DATA SPACE, filled with exhibit, and an IN-DEX SPACE, with no exhibit in. Design of the circulation path would allow the two spaces to alternate for the viewers as they go through the exhibition.
DATA SPACE is the main part of the exhibition, graphic design works are displayed in a highly condensed manner. Here the path turns into a loop, creating a strong sense of immersion among the design works, further enhanced by the lighting that surrounds them. Visual infor-mation is designed to be displayed in such an “overwhelming” way to increase the excitement, fluidity and comfort of viewing.
▼路径徜徉回环、围合感强烈、光线围绕展品布局,the path turns into a loop, creating a strong sense of immersion among the design works, further enhanced by the lighting that surrounds them
▼文献空间,the DATA SPACE
而“索引空间”被设计为切开所有“文献空间”的一条斜线,它是在不同的“文献空间”之间切换的必经之路。这个空间里没有设置直接照明,而只靠所有被切开的“文献空间”中渗透出的光线形成明暗的交错。斜线空间本身带有强烈的指向性,而有节奏的灯光变化为这种指向性加入了速度感。
INDEX SPACE diagonally cuts through DATA SPACE. It is the only path where viewers switch between different DATA SPACES. This space is only lit indirectly by lighting coming through from the adjacent DATA SPACES. The diagonal gives a strong sense of direction, and alternating light and shadow adds rhythm to this directionality.
▼索引空间,the INDEX SPACE
所有的空间元素在“索引空间”里跳到“前景”,使参观者每次经过这里时会切换到“空间体验”模式,而暂时放松视觉的感知,参观者可以在这里做一个深呼吸并将刚才接收到的视觉信息进行归档;而当移步回到“文献空间”时,视觉中枢又再一次兴奋,空间则重新隐藏到背景之中。
Spatial experiences emerge into foreground in the INDEX SPACE. Each time they pass, view-ers have a choice to relieve temporarily the visual intensity. They could take a deep breath, sort the visual information of the exhibit into their brain before moving back to DATA SPACE, where their visual perception would be again stimulated, and the spatial perception fades into the background.
▼索引空间与文献空间之间的转换,transitional space between the INDEX SPACE and the DATA SPACE
▼轴测图,axon
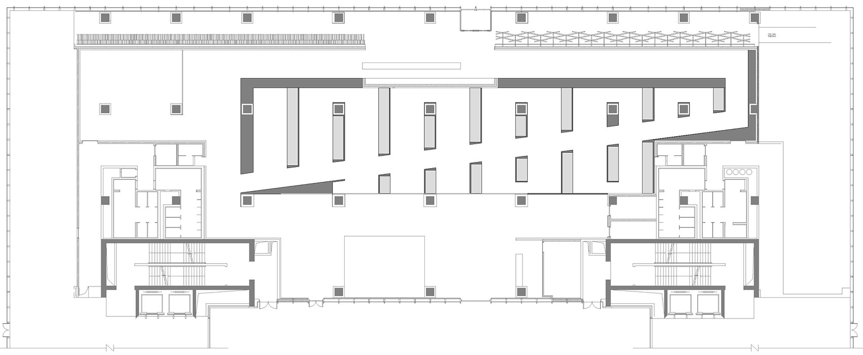
▼平面图,floor plan
客服
消息
收藏
下载
最近





















