查看完整案例

收藏

下载
今日我们关于园林的知识,来自于古典园林的体验,来自于古代文人品评标准的解读,来自于现代主义视角重新审视园林文本。积攒园林知识若干年后,我们有了这样一次机会,从建筑学角度将传统园林安顿在现实里。感谢甲方孙先生的提议,我们在北京的胡同里营造了一座不足200平米的茶室园林青鸥园。
我们认为,“园林”区别于那样一类实践方式——以追求极少主义倾向为目标,用一个概念或一个姿态来统领整个建筑设计;通常表现为单纯的白色、木皮、金属板等单一材料包裹整个空间,以得到一种“独石”效果。
延续传统体验的“园林”则不一样,需要通过材料和空间唤起古典记忆。即便是最简约的古典园林,也集合着各种各样的加法。造园是通过处理一系列构成要素的成组关系,梳理出园林的空间感。如果希望今日的造园不沦为堆砌古典符号的装饰空间,那就要重新发掘材料与形式的感觉。
▼项目概览,overview
空间:建筑感到园林感
任务书很简单,园林只为饮茶而设,不要网红风,不要博眼球,需要真实的园林感受。具体要求三点:1 不能改变原建筑平面位置,2要使用北京特产红色千层岩叠山,3有一棵青桐树。面积不到200平米的场地缺乏园林所期待的变化,进门是一眼望穿的天井院子,被三栋房子围合。可供园林施展的天井院子仅有57平米。两个木构建筑的屋檐被拆除了一半或更多,完全修复的代价,业主和房东都无法接受;此外街道外观管理严苛,院子的玻璃屋顶不允许丝毫改动。
▼天井院子里的青桐树,the phoenix tree in the courtyard
▼意向图,conceptual sketch
对比在苏州园林里,60平米仅仅为小的天井,可知我们需要某种“缩微”的方法。天井和园子也不一样,通常天井的核心仍然是聚焦在四壁之间,做的最好或许是接近冥想气质的庭园。但古典园林的思路则不一样,极力隐藏过于规整的边界,将天井视为更大范围内的山水延续至此。譬如网师园殿春簃用叠山异化围墙,譬如北半园在墙角挖池又抬高半亭,改变消极的对角线凹角,譬如环秀山庄的西北角叠山隐藏飞雪泉,是真“截溪断谷”。
▼60平米的小天井,60 sqm small courtyard
我们的改造策略是,将单一的大空间,转向若干景点连缀的游园空间,将原本建筑与庭院室内外含混不清的边界,转化为园林与建筑茶室、室外与室内交替互换的空间感。
从主入口侧向开辟一条小路进入天井;园林入口处设置云墙,弯折的月洞门扭转轴线,分隔小园“外”与“内”;天井中以峭壁山遮挡尽端高墙;于是得到一条新的路径,连缀起月洞门两侧、青桐树池、五处茶室、下沉小岛、峭壁山、屋顶两处平台等停歇之处。
▼庭院与半开放茶室,courtyard and half-open tea room
符号:转化与建造
云墙、太湖石在墙面的拓印、月洞门、小拱桥等等形式语言,如同园林中的经典材料,我们试图借鉴其在原空间的功能和体验,舍弃掉某种“原汁原味”的形式印记。
▼云墙和屋顶平台,cloud wall and roof terrace
▼墙面上的太湖石拓印,wall hollowed out with taihu stone shape
▼窗洞细部,detail of the opening
两折云墙和钢格栅小桥嫁接在一起,借鉴自耦园假山与云墙的咬合。钢格栅桥为云墙两侧叠石过滤出天光;云墙两侧粉墙适宜于造景,茶室墙上取自绉云峰的轮廓开洞,与千层岩叠石虚实配合。月洞门跨越折墙,减弱符号感,而希望从不同角度得到椭圆或月牙的观感。大骨料混凝土的小拱桥,借鉴自网师园里的引静桥,拱高度做高,为很窄的河道两侧创造分离感。园子的铺地,借鉴自艺圃浴鸥小园直线形铺地,使用黑色机制石与彩色鹅卵石、雨花石混用,湿润时,彩色卵石像落叶。峭壁山前下沉的瓦铺小岛里,使用常见10cm小青瓦竖砌在泥土里,这也是甲方孙先生的建议,希望未来此处随意种植花草。果然春天长出蒿类和爬藤,为生趣留出余地。卫生间选用了灰、黑、白搭配起来的小石子做干粘石,对应朴素的园林氛围。
这些材料使我们获得了朴素而真实的氛围,也变体为现代材料营造的语汇,唤起园林回忆与经验。
▼月洞门,moon door
▼月洞门跨越折墙,减弱符号感,the moon door crosses the folded wall
叠山:是石堪堆
如果有一种能够标记为中国式的风景,叠假山可能是最典型的想象和描绘。传统的叠山,使用太湖石或多孔窍石质如房山石,边角硬朗皴纹简洁的黄石等等。孙先生要求使用本地红色千层岩来叠山。这是一种很难叠的石头类型,经过反复效果图推敲、施工时不间断的现场监督,最终实现了如计成所言“是石堪堆”,获得了新的山意。
各种叠山书籍中都认为皴纹要统一并且连续,在实践中未必是这样,千层岩纹路重复,尤其忌讳把层叠的皴纹展现在外部,反而都尽量挑选不规则的一面,每一块石头叠放都要讲究上下的凹进与凸出,最关键的则是石头下方的刹石垫片,河北匠人称之为“影”,如果足够讲究刹石的形态,整体山势更为连续。叠山过程中理解,为何强调仰赖天机,因为全赖手头石材,偶然性极大,尽管效果图限定了基本轮廓造型,但山的气势则要凭现场组织,有一块气势轩昂的石头则添彩,缺一块恰到好处的石头则逊色。
▼叠山使用本地红色千层岩,red rock laminar stack
峭壁山的进深较浅,考虑功能性,特意在基座部位叠出可坐卧的石头凳子,山泉水口退后隐匿在山石峭壁间,可坐在石凳上把玩一脉飞瀑。
主体山石和水道岸边石基本完成之后,在院中观看,能体会到峭壁山的姿态与水渠两侧叠山形态之间,在传递着某种气息。或许这就是我们之前所理解的,园林中各种物体都以成组的关系出现,未必是一一对仗,更像是击鼓传花地发生关联。因此,虽然园子面积很小,也可以产生变化的观感。
▼叠山施工过程,the process of stacking the rocks
在《唐诗三论:诗歌的结构主义批评》(高友工/梅祖麟,商务印书馆,2013)一书里,作者引用语言学家与诗歌批评家罗曼·雅各布森的话来解释近体诗的奥妙,“诗的作用是把对等原则从选择过程带入组合过程”,这正是诗的重要构成原则,与《文心雕龙》中“反对者,理殊趣合者也;正对者,事异义同者也”可以一起用来解释自六朝开始,诗中对应关系的运用。但对应的关系并不是诗文的最终目的,因为“而在抒情诗中,对等原则所体现的物我同一起着绝对的支配作用。……运用对等原则的抒情诗代表了向天真、纯洁、和谐的复归,即使我们已明明知道世界是分裂的,我们仍然不时地渴望回到那个万物合一的理想世界,它曾是人类儿童时期的唯一世界。”大概如此,回到“万物合一”,这也是现代造园的目的吧。
▼夜景,night view
The owner rented a yard in the hutong and asked us to design a teahouse garden. It is hoped that the gardens will include the elements of traditional gardens and have the true feeling of traditional gardens. It is not allowed to change the plane position of the original building and hope to have a phoenix tree. The shortcomings of the base are similar courtyard structures, the courtyards that are seen at a glance, and the current state of the house being demolished. We used the folding wall and the moon door to change the internal space axis, and organized the new landscape order with small bridges, waterways and stacked mountains.We designed and directed the stack of red rock mountain. Several tea rooms with different views and feelings were made in less than 200 square meters.
We use the red rock laminar stack, the light-transparent bridge of the steel grille, the gray and colored cobblestone paving, and the 10cm small gray tile paving. These materials give the garden a simple and authentic atmosphere.
We transform the language of traditional gardens here to get a new garden conception, by dealing with a series of relationship between elements, such as the relationship between canals and clouds, the relationship between pavilion and the canal, the relationship between rocks and waterfalls. The relationship between these elements establishes the face of the garden. Some elements come from the reference to Suzhou classical gardens, such as the small arch bridge, borrowed from the static bridge in the net master garden, the stone paving on the ground borrowed from the linear stone paving of the bathing gull small garden. We designed and directed the stack of red rock mountain.
The design makes this small yard have the appearance of today’s architectural space, while also having the poetry of traditional gardens.
▼改造后轴测图,axon
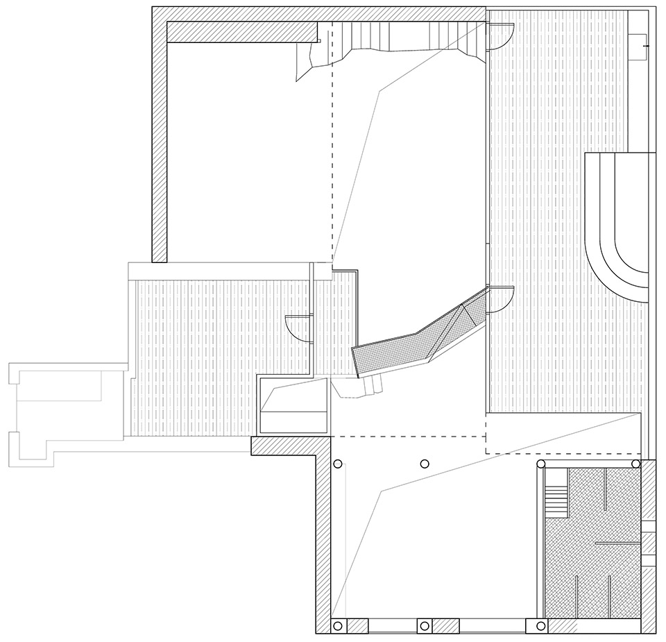
▼原建筑平面,plan of the original building
▼改造后建筑一层平面,first floor plan
▼改造后建筑二层平面,second floor plan
客服
消息
收藏
下载
最近





































