知末
知末
创作上传
VIP
收藏下载
登录 | 注册有礼
知末案例   /   家装空间   /   平层

退休夫妇的 78㎡功能空间设计丨arta Loguntsova

2023/06/01 21:59:00
查看完整案例
微信扫一扫
收藏
下载
退休夫妇的 78㎡功能空间设计丨arta Loguntsova-0
功能空间
arta Loguntsova
一对退休夫
,与成年儿子分开生活。在视觉上设计了严格且极其实用的空间,
有效地利用每一个平方厘米
退休夫妇的 78㎡功能空间设计丨arta Loguntsova-6
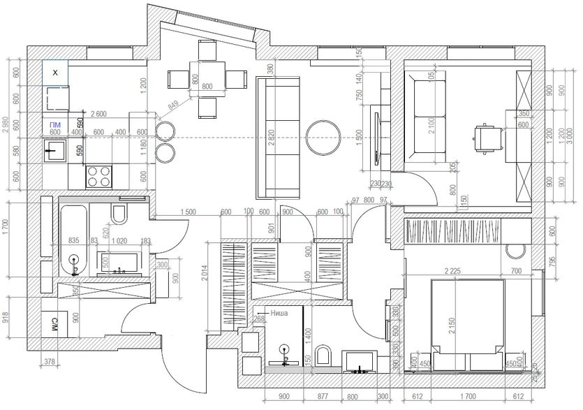
空间布局
退休夫妇的 78㎡功能空间设计丨arta Loguntsova-8
区域
个人空间是一间带自己浴室的卧室
和更衣室,
主要任务是创造最实用和舒适的空间。
退休夫妇的 78㎡功能空间设计丨arta Loguntsova-13
退休夫妇的 78㎡功能空间设计丨arta Loguntsova-14
退休夫妇的 78㎡功能空间设计丨arta Loguntsova-15
所有设计元素的功能性和方便性,视觉简单,舒适的日常居住空间
退休夫妇的 78㎡功能空间设计丨arta Loguntsova-17
退休夫妇的 78㎡功能空间设计丨arta Loguntsova-18
退休夫妇的 78㎡功能空间设计丨arta Loguntsova-19
退休夫妇的 78㎡功能空间设计丨arta Loguntsova-20
退休夫妇的 78㎡功能空间设计丨arta Loguntsova-21
退休夫妇的 78㎡功能空间设计丨arta Loguntsova-22
退休夫妇的 78㎡功能空间设计丨arta Loguntsova-23
退休夫妇的 78㎡功能空间设计丨arta Loguntsova-24
退休夫妇的 78㎡功能空间设计丨arta Loguntsova-25
退休夫妇的 78㎡功能空间设计丨arta Loguntsova-26
退休夫妇的 78㎡功能空间设计丨arta Loguntsova-27
退休夫妇的 78㎡功能空间设计丨arta Loguntsova-28
退休夫妇的 78㎡功能空间设计丨arta Loguntsova-29
南京喵熊网络科技有限公司 苏ICP备18050492号-4知末 © 2018—2020 . All photos and trademark graphics are copyrighted by their owners.增值电信业务经营许可证(ICP)苏B2-20201444苏公网安备 32011302321234号
客服
消息
收藏
下载
最近