查看完整案例

收藏

下载
酒店坐落于通往Guiones沙滩(一个小而热门的冲浪地点)主路前的一小片场地中。业主希望打造一个能够将年轻冲浪者聚集于此的空间,客人们可以坐在一起,分享他们的经历和享受彼此的陪伴,但客房却能够保证足够的私密性,项目需要让人们感到欢迎感和熟悉感,让客人一步入酒店就有足够的距离和私密性,隔绝道路喧闹,
The hotel is located on a small property in front of a main road to the beach of Guiones, a small but popular surf destiny. The owners wanted to create a space to gather young surfer travellers, where guests would seat together, share their experiences and enjoy of each others company, but would offer enough privacy in the bedrooms. The project would need to feel welcoming and familiar, but once you are inside, you’d have privacy and distance from what happens on the road.
▼酒店及周边环境鸟瞰,aerial view of the hotel and its surroundings ©Andres Garcia Lachner
▼酒店场地位于通往冲浪沙滩主路前, hotel is located on a small property in front of a main road to the surf beach ©Andres Garcia Lachner
建筑平面呈U字型,朝向后部空间和树林开敞,中央设有泳池和种植美丽植物的庭院,大面积的泳池是公共空间的肺和主要景观点。
The floor plan has an U shape open to the back and forest, and having the pool in the center, the central patio created with beautiful plants and a big pool is the lung and main view of every public space.
▼建筑平面呈U字型,朝向后部空间和树林开敞,the floor plan has an U shape open to the back and forest ©Andres Garcia Lachner
▼庭院鸟瞰,aerial view of the patio ©Andres Garcia Lachner
▼设有泳池和种植美丽植物的庭院,patio with beautiful plants and a big pool ©Andres Garcia Lachner
场地狭窄的一面临近道路,设计有三个不同的入口。充满吸引力的主入口抬升半层高度,引导客人到达二层的接待区和公共生活空间,所有的公共生活空间都朝向自然开放,拥有绝佳的景观与自由流通的风。在社交区域,人们拥有朝向后部临近自然保护区、树冠和俯瞰道路的更开阔视角。通过比道路高出半层和使用坚固的围栏,酒店中的客人能够俯视道路而站在道路上的人们却看不到私密性良好的酒店。同样的概念也用于首层以上客房的设计。
The property has its narrow side to the road where three different entrances where designed, the main and attractive entrance is elevated about half level, this entrance leads to reception and living areas that are located on the second floor, the areas have the best views and catch more wind, as all this spaces are open to natural air. From the social area, people have a more open view to the back of the neighbor property that is a natural reserve, the canopy and a higher view over the road. Being half level over the road and with solid railings, people from the hotel can look down to the road but people standing on the road can’t look in the privacy of the hotel. This same concept was used for the bedrooms that where not located on the ground floor.
▼主要道路一侧主入口,main entrance at the main road side ©Andres Garcia Lachner
▼充满吸引力的主入口抬升半层高度,引导客人到达二层的接待区和公共生活空间,the main and attractive entrance is elevated about half level, this entrance leads to reception and living area ©Andres Garcia Lachner
▼楼梯铺装及墙面绘画,staircase pavement and wall painting ©Andres Garcia Lachner
▼二层入口连廊,second floor entrance corridor ©Andres Garcia Lachner
▼紧邻入口的开放休闲区,open leisure area near the entrance ©Andres Garcia Lachner
▼继续前行,抵达更开阔的室外、半室外公共生活空间,continue walking to a wider outdoor and semi-outdoor living space ©Andres Garcia Lachner
▼自然材料搭建户外凉亭,outdoor pavilion with natural material ©Andres Garcia Lachner
▼露台尽头回望入口及中央庭院,look back to the entrance area and the central patio ©Andres Garcia Lachner
建筑采用当地最普遍的建造工艺——砖石砌筑,所有的角落和每一个边缘都是圆弧形的,对比性的木材以自然简洁的方式使用,增添了柔软的颜色和自然纹理,大多数木材工作都是由当地工匠完成的。其他材料如藤条、瓷砖和石材用于强调装饰。设计将坚固的几何形体与充满吸引力的小开洞或木窗结合起来,与坚固的建筑形体周边或上部形成交通和公共生活区域的开阔空间形成对比。建筑的美感和吸引力存在于平衡形态的艺术性操作手法、建筑元素的简洁性和精心制作的木工部件之中。
It was build in masonry that is the most common construction method in the area, all corners and every edge was rounded and the contrast material is wood managed on a very natural and simple way, the wood adds also a soft color and a natural texture, most of the wood work was done by the local artesans. Some other materials such as cane, tiles and stone where used for accents. The design is a simple composition of solid geometric forms with small and attractive openings or wood windows, in contrast with wide open spaces that create circulations and living areas over and around the solid forms, its beauty and attractive is in the art of putting the forms in balance, the simplicity of the architectonic elements, and the handcrafted wood work.
▼入口左侧公共生活空间-建筑采用当地最普遍的建造工艺——砖石砌筑,所有的角落和每一个边缘都是圆弧形的,living area on the left of the entrance-it was build in masonry that is the most common construction method in the area, all corners and every edge was rounded ©Andres Garcia Lachner
▼藤条、瓷砖和石材用于强调装饰,cane, tiles and stone are used for accents ©Andres Garcia Lachner
▼对比性的木材以自然简洁的方式使用,增添了柔软的颜色和自然纹理,the contrast material is wood managed on a very natural and simple way, the wood adds also a soft color and a natural texture ©Andres Garcia Lachner
第二个入口更加隐蔽谨慎,比道路低几级台阶,供沙滩回来的客人冲洗、存放他们的冲浪板、直接跳入泳池或从这里回到泳池附近的客房中。服务入口是建筑中最隐蔽的入口,它位于一条小巷中,通向服务空间和私人公寓。
A secondary entrance is some steps lower than the road, it is a lot more discreet and is used for clients coming from beach to rinse, storage their boards and jump straight in the pool or go directly to their bedrooms located along the pool. And the service entrance is the less visible entrance to the building, located on an alley that was kept to give access to service and private apartment.
▼第二个入口专门供沙滩回来的客人使用,服务入口则是最为隐蔽的入口,a secondary entrance is a lot more discreet and is used for clients coming from beach; the service entrance is the less visible entrance to the building ©Andres Garcia Lachner
酒店为不同住宿预算的客人提供合适的房型选择。
It needed to combine sleeping options for different budgets.
▼双床房-酒店拥有多种房型供顾客选择,twin-bed room, the hotel has different bedrooms for guests ©Andres Garcia Lachner
▼双人大床房,double room ©Andres Garcia Lachner
▼双人大床房的独立洗手间,bathroom in double room ©Andres Garcia Lachner
▼多人间及公共洗手间,room for multi-people and shared bathroom ©Andres Garcia Lachner
▼入口夜景,entrance night view ©Andres Garcia Lachner
▼庭院坡道夜景,night view of the ramp ©Andres Garcia Lachner
▼庭院夜景,central patio night view ©Andres Garcia Lachner
▼入口右侧公共生活空间夜景,night view of the living area on the right side of the entrance ©Andres Garcia Lachner
▼左侧露台夜景,night view of the terrace on the left ©Andres Garcia Lachner
▼一层平面图,first floor plan
▼二层平面图,second floor plan
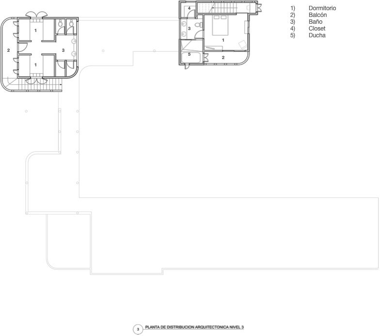
▼三层平面图,third floor plan
▼立面图,facades
▼剖面图,sections
客服
消息
收藏
下载
最近












































































