查看完整案例

收藏

下载
Atelier d’More
我们在庭院中引入一条主轴,以曲线的形式勾勒出几条岔路,分割出四个不同尺度的内部庭院。在视觉上营造出空间层次感,也在功能上实现了灵活性和可变性。红色火山石铺就的景观区为建筑增添了一抹别致的色彩,而水泥路面则流向各个客房空间,引导着客人行走的方向和空间范围。
多么工作室
项目概况
项目位于北京市通州区唐大庄村,一个保存着北方传统平房建筑形态的村庄。这里的房子由红砖砌成,具有中国古建筑的元素,彩绘图案,木结构的坡屋顶等传统特征。对这些传统建筑特色的提取与重构,是一项富有挑战性的设计任务。多么工作室受委托将原本总面积只有 80 平米的平房和小院改造成了一个精品民宿酒店,意在原始建筑和场地的特色条件下,以现代几何元素注入全新的内核,重塑建筑脉络,实践对传统建筑的重新想象。
▲院落外观
© Atelier d’More
重构
在这次改造中,我们希望保留传统建筑的痕迹,并在现代语境下赋予新的意义。保留屋檐的经典元素,同时简化彩绘,使传统元素在整个建筑中成为抽象的表现形式。
▲改造前
© Atelier d’More
▲西厢房立面
© Atelier d’More
▲东厢房立面
© Atelier d’More
▲东厢房入口
© Atelier d’More
为了给空间注入灵魂,我们提取了原始建筑中的红色,并进行了色度的调整,将其定义为此项目的主调,颜色从此不再是视觉体验,而是精神性的表达。在建筑的外立面和室内家具中,以适当的比例贯穿其中,就像一个微妙的音符,为整个项目带来了一种诗意的氛围。
▲彩绘屋檐下建筑的延续
© Atelier d’More
© Atelier d’More
我们在庭院中引入一条主轴,以曲线的形式勾勒出几条岔路,分割出四个不同尺度的内部庭院。在视觉上营造出空间层次感,也在功能上实现了灵活性和可变性。红色火山石铺就的景观区为建筑增添了一抹别致的色彩,而水泥路面则流向各个客房空间,引导着客人行走的方向和空间范围。此外,我们用具有张力的几何形状构建了客房入口,使其具有一种新京味儿的入场仪式。室内原本面向院子的墙体被拆除后,大面积的落地玻璃代替了相对封闭的窗墙体系,室外庭院与室内空间就此成为交替的风景。
▲分解轴测图
© Atelier d’More
▲弧形走道流向入口
© Atelier d’More
▲院子入口区域
© Atelier d’More
▲屋檐下看向大门
© Atelier d’More
我们试图在现代的脉络里展现古老的韵律,用空间让时间的记忆共生。在旧有建筑的坡屋顶下,将屋脊部分打开,展露出原有的木梁,又在屋顶剖面关系上做出变化,用曲面勾勒出传统的坡屋顶形象,将古老的建筑语言融入现代的空间里,让历史在现代里得以传承。
在这个 4.1 米挑高的空间下,我们设计了柔和的间接照明,每一条光线都在勾勒空间的轮廓,给人以具有精神性的空间体验。
▲西厢房的人字坡顶
© Atelier d’More
▲由西厢房看向院子
© Atelier d’More
▲室内外的和谐统一
© Atelier d’More
设计手段化解施工困局
这个项目是我们迄今为止最具挑战性的小项目之一。一个令人困扰的问题是业主没有请专业的施工单位,而是雇佣了散工来进行施工。这导致工人的水平和责任心难以掌控,对于项目的完成度造成了很大的困扰。在经历了一系列施工错误之后,我们做出了一个决定:通过设计的手段深入介入施工,尽可能地减少施工方的犯错机会。
▲传统建筑下的新内核
© Atelier d’More
▲人字吊顶与自然光
© Atelier d’More
▲东厢房客房概览
© Atelier d’More
▲山墙上的条形窗
© Atelier d’More
我们将室内所有的家具、柜体等都设计成了预制拼装形式,无论是明显可见的构件还是隐藏在内部的龙骨,每一块木板都被精确地定位在特定的位置上。通过这种方式来解放施工师傅的大脑,只要师傅按照我们提供的拼装图纸进行操作,最终的效果就能与设计图纸契合。这种设计策略不仅减少了施工过程中的错误和不确定性,还提高了施工效率。这也源自于工作室多年来的实践经验和设计手法,将传统榫卯节点简化并应用于家具组装中,不仅仅是为了实现功能性,也是美观和艺术性的表达,以符合项目自身的风格和理念。
▲家具拼装轴测动图
© Atelier d’More
人字顶的光影效果
© Atelier d’More
▲窗外的躺椅
© Atelier d’More
▲客房玄关
© Atelier d’More
▲为项目设计的挂钩与衣架
© Atelier d’More
项目图纸
▲区位图
© Atelier d’More
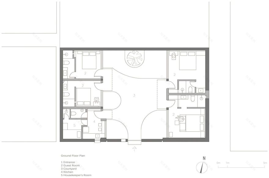
▲平面图
© Atelier d’More
项目名称: 寸二民宿
建筑、室内及景观设计: 多么工作室
项目设计 - 完成年份: 设计时间 2021 年,建成时间 2023 年
主创建筑师: 盛乐、王维
设计团队: 周腾、豆会会、王春浩、赵丁一
家具设计: 多么工作室
项目地址: 北京,中国
建筑面积: 88㎡
用地面积: 150㎡
摄影版权: 多么工作室
客服
消息
收藏
下载
最近




























