查看完整案例

收藏

下载
Powerhouse Arts
厂房改造
城市中的工业旧址都逃脱不掉被拆掉的命运,或者转换成其他的功能。
赫尔佐格德梅隆事务所刚刚完成的Powerhouse Arts是一个特例,被保留为艺术家的聚集体。
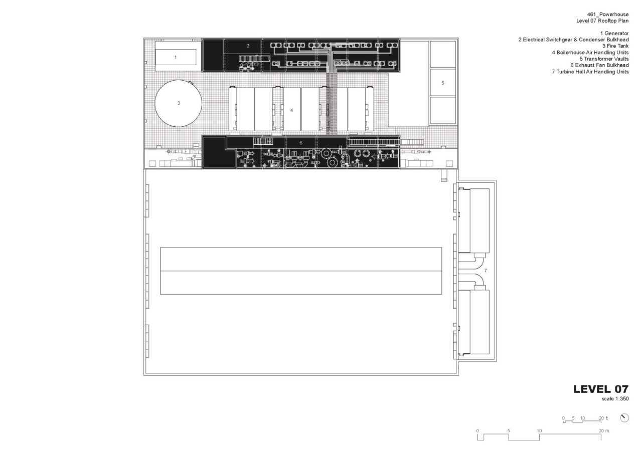
项目原来是一座发电厂,建于1904年,随着时间的推移和技术的进步逐渐被停用,废弃后发电厂的一部分被拆除,只有锅炉房这一部分保留下来。
唯独剩下的部分则吸引了当地的涂鸦艺术家们,他们将这座废弃的建筑作为一个创作空间和艺术表达的平台,因此该地区得到了「蝙蝠洞」的称号。
# 设计故事 #
这个发电站原名为环境问题和发展限制等
在过去的十年里1.8 亿美元
在购买发电站后,Rechnitz 立即成立了 Powerhouse Environmental Arts Foundation(后来更名为 Powerhouse Arts)。
Powerhouse Arts 总裁 Eric Shiner 在大堂,建筑内所有的原始涂鸦都被保存▽
# 建筑设计 #
年。
△Herzog - de Meuron公司的建筑师 Ascan Mergenthaler(左)和 Phil Schmerbeck(右)
在重建的过程中,设计师进行了详细调研和评估工作,充分了解了原有建筑的状况和潜在问题,并根据掌握的数据,制定了全面的重建计划,包括结构修复、环境整治、空间设计等方面。
从外面看,翻新后的 Powerhouse Arts 拥有红色的立面,拱形的开窗,这一设计不仅保留了原有的红砖结构,还突显了建筑的工业历史背景。
原始的
采用了定制的砖块。这些砖块都是根据设计师的要求进行定制,以达到特定的形状、颜色和纹理与整体建筑相协调。
左右滑动浏览项目图片
拱形的大窗户采用了现代的玻璃幕墙和金属框架设计,与红砖墙面形成对比,增加了建筑的现代感和透明度。同时这些玻璃窗也能为内部空间提供了充足的自然光线,创造出明亮、开放的环境。
此外,立面上保留的艺术涂鸦也为建筑增添了独特的艺术氛围。
建筑模型▽
左右滑动浏览项目户图片
施工过程▽
左右滑动浏览项目图片
# 室内设计 #
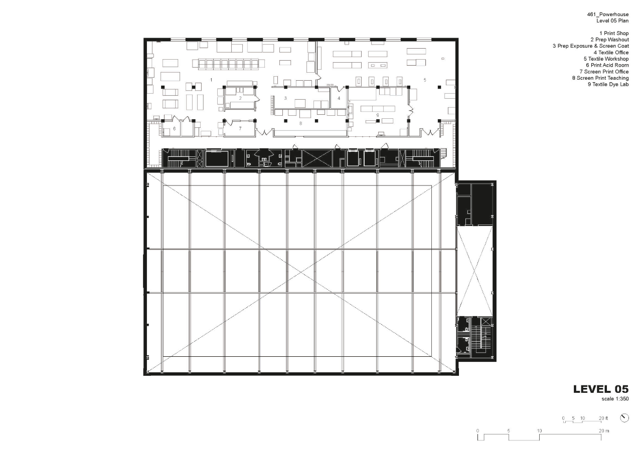
在室内改造设计过程中,设计团队致力于最大限度地减少对现有结构的干扰,以及保持建筑的工业特征。他们将重点放在恢复锅炉房,并与现有的涡轮机大厅建立联系。通过精心的设计与修复,涡轮机大厅得以保留完好,并成功地整合到新的空间场景中。
施工照片▽
左右滑动浏览项目图片
大礼堂是容纳 1000 多人,
该场地还带有升降系统和可承受 1,500 磅的重量限制,因此大礼堂也是举办汽车赛事的绝佳选择。
此外,Powerhouse Arts 还拥有一个 100 个停车位的大型停车场,可满足活动时的停车需求。
礼堂内墙上的涂鸦也是室内空间的一个独特亮点,不仅保留了原有的作品,还由艺术家或团队根据特定的设计和主题重新创作。
通过绘画、喷绘或其他手工技术,展现在大礼堂的墙壁上,以创造视觉上的吸引力和独特性。
埃勒里·尼恩 (Ellery Neon) 的新艺术作品▽
艺术家 Ellery Neon 的涂鸦作品▽
陶瓷工作室是一个专门用于陶艺创作的区域,这里会提供齐全的制作工具与材料,旨在满足陶艺家们的创作需求。
工作室还配备了陶轮、烧窑的设备,艺术家可以充分利用这些设备和工具,发挥他们的创造力和技巧,创作出独特而精美的陶艺作品。
Biata Roytburd 在陶艺工作室的陶轮场景▽
印刷厂是一个专门用于印刷艺术创作的区域,能够满足不同类型的印刷需求,包括平版印刷、丝网印刷、凸版印刷和其他印刷技术的设备和工具。
还会提供各种规格的印刷台、印版、油墨和纸张等材料,以满足艺术家们的不同需求。
艺术家们可以使用这些设备来制作艺术作品、插图、海报、艺术品印刷品等。
Zaire Anderson 在印刷车间为艺术家 Julia Wachtel 制作丝网印刷▽
目前 Powerhouse Arts 项目已经全部改造完成,它以其独特的设计和多功能的艺术空间向公众开放,为艺术家、制造商和技术工人创造了一个创意的聚集地,也为布鲁克林社区带来了文化和经济的推动力。
项目立面图-剖面图
游学上海:创意园区
新商业空间
改造酒店
客服
消息
收藏
下载
最近



































































